Найти в Дзене
Elipsgeo

Исполнительная документация

Любое здание и сооружение строится по чертежам. Они могут быть детально проработанными проектами, либо небольшими набросками на ряде листов, если речь о загородном жилищном строительстве. При этом логично, что возводимое сооружение должно соответствовать задуманному проекту. Если это правило не соблюдается, то это может серьезно подорвать строительный процесс.

Любое здание и сооружение строится по чертежам. Они могут быть детально проработанными проектами, либо небольшими набросками на ряде листов, если речь о загородном жилищном строительстве. При этом логично, что возводимое сооружение должно соответствовать задуманному проекту. Если это правило не соблюдается, то это может серьезно подорвать строительный процесс.

Предположим, вы решили построить простой загородный дом. Наняли строительную бригаду, заложили и забетонировали фундамент. Теперь радостно ждёте, когда Вам привезут дом из бруса. Привезли дом, начинается сборка сооружения: дом не подходит к фундаменту. Радость сменяется разочарованием. Теперь у Вас много больших и интересных проблем: как переделать фундамент, кто будет переделывать фундамент, как быть со строителями, которые собираются собирать этот дом. Кто будет платить за простои, как сдвинутся сроки строительства, не подорвут ли лишние материальные расходы возможность осуществления всего строительства в целом.

Все эти вопросы являются серьезными рисками, которые исключать или по возможности минимизировать. Для минимизации рисков и подобных сюрпризов и придумана исполнительная геодезическая съемка. Она контролирует геометрические параметры каждого цикла производства строительных работ и определяет его влияние на последующие возводимые участки. Ранее исполнительная съемка велась достаточно редко и в основном на «серьезных» строительных объектах. На данный момент требования к качеству строительства существенно возросли. Увеличился объем исполнительных съемок, уменьшилась их цена.

В современных условиях исполнительная съемка доступна очень широкому кругу заказчиков. Компания Elipsgeo и Sanush (Санюш) проводит исполнительные съемки различной категории сложности на самых разнообразных объектах: индивидуально жилищное строительство, дорожное строительство, высотное монолитное железобетонное строительство, уникальные роботизированные складские комплексы. Как правило, исполнительная съемка проводится непосредственно организациями, осуществляющими геодезическое сопровождение строительства.

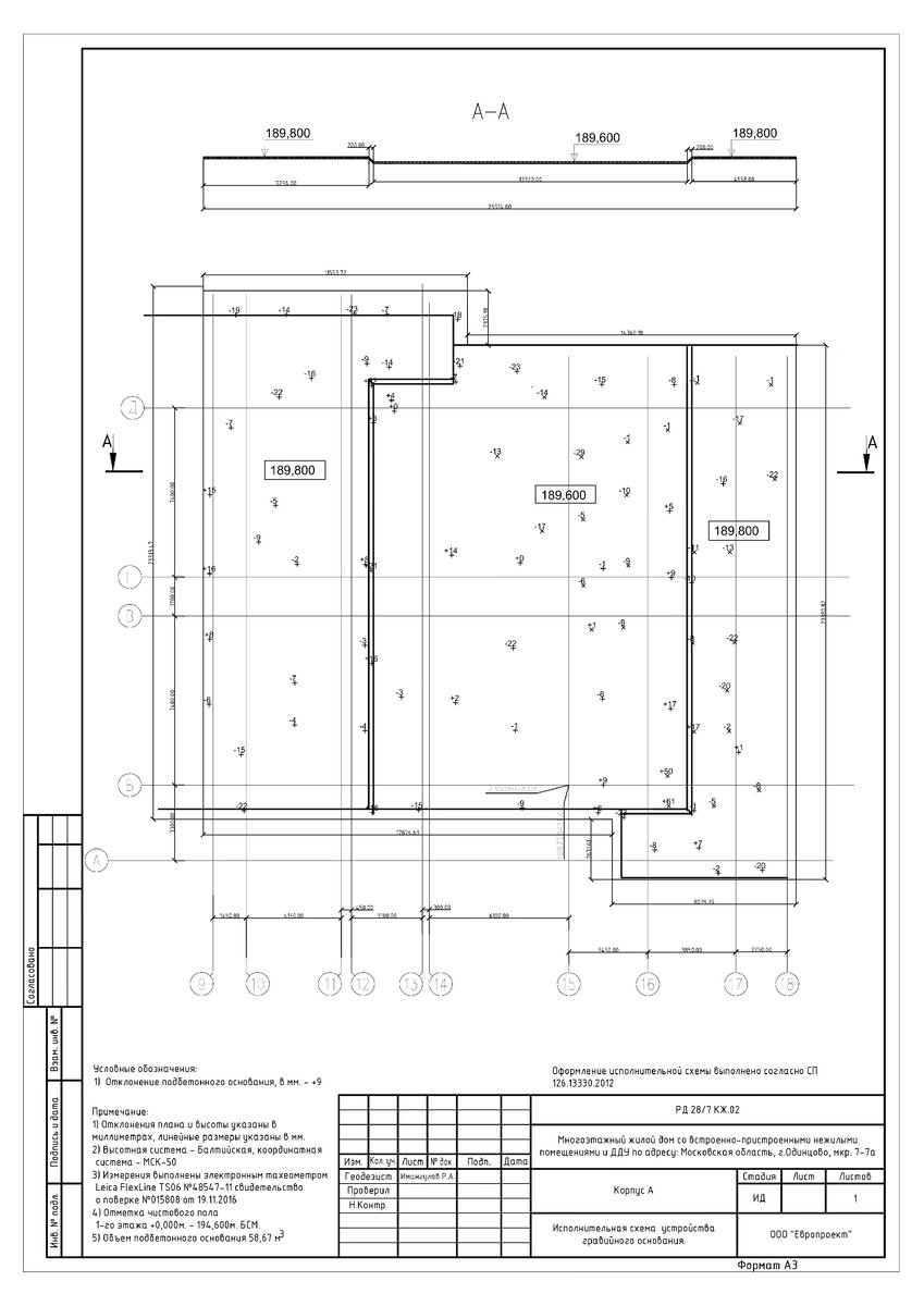
Возвращаясь к примеру того же загородного дома, о серьезной ошибке вы узнаете в момент проведения земляных работ по устройству фундамента. Рабочие выкопали котлован и вы сразу же можете проверить его соответствие задуманному проекту и наличие соответствующих отклонений. Вопрос допустимости отклонений один из самых важных при проведении исполнительных съемок. Как правило, любая конструкция имеет заранее определенные проектные отклонения. Величины этих отклонений не влияют на качество последующих возводимых конструкций. Например, при земляных работах, допустимыми являются отклонения в 10 см, при сооружении монолитных железобетонные сооружений – 2 см, сборных металлических – 5 мм. Как правило, проектировщиками закладывается запас на несоответствие допуску. Такой запас в соответствии с законом нормального распределения и теории погрешности равен 3-м. То есть только трехкратное превышение допуска уже значительно снижает прочность возводимой конструкции. После его превышения необходимо принятие соответствующих проектных решений изменяющих конструкцию и усиливающих ее. Такие превышающие отклонения, безусловно, должны быть согласованы с проектирующей и организацией. На основе исполнительной съемки она принимает такое решение.

Для этих целей и ведется исполнительная геодезическая съемка. По своему объему она занимает 40% геодезического обеспечения строительства. Геодезисты, ведущие исполнительную съемку, как правило, непрерывно находятся на объекте или регулярно посещают его несколько раз в неделю. Они же ведут разбивку осей и рихтовку конструкций. Компания Elipsgeo и Sanush (Санюш) имеет большое опыт геодезического сопровождения строительства. Мы ведем разбивку, рихтовку и выполняем исполнительные съемки. Все исполнительная документация оформляется в соответствии с требованиями ГОСТ и техническим регламентом заказчика.

Так на любом строительном объекте существует большое количество исполнительной документации: на земляные работы, устройство щебеночной и бетонной подготовки, монолитных железобетонных конструкция. При этом съемка ведется в два этапа: исполнительная съемка арматуры и опалубки, а затем бетона. Первоначальная съемка очень важна: от нее зависит качество застывшей бетонной конструкции. После раскрытия опалубки проводится исполнительная съемка застывшего железобетона. Если работала квалифицированная строительная бригада, то исполнительная съемка бетона должна мало отличаться от исполнительной съемки опалубки. Если такие отклонения имеются, и они существенные это значит, что допущены серьезные ошибки при раскреплении опалубки. Периодически такая проблема возникает при заливке больших и сложных перекрытий, высоких колонн с малым количеством растяжек, длинный и высоких стен.

В настоящий момент на геодезическом обеспечении строительства работают большое количество подрядных организаций. Они ведут большое количество исполнительных съемок. Они наглядны и подробны, зачастую излишне подробны, чтобы взглянуть на весь объект в целом. Так заказчику нужно иметь представление о качестве объекта в целом, не отвлекаясь на малосущественные детали. В этом случае так же имеет смысл обратиться в компанию Elipsgeo и Sanush (Санюш). Мы качественно проводим итоговые исполнительные съемки с необходимой степенью детализации.

-2