Добавить в корзинуПозвонить
Найти в Дзене

Дом с мезонином 130 кв.м.

Мезонин - надстройка над средней частью жилого дома, часто имеет балкон.
Вид дома с мезонином 130 кв.м.
Вид дома с мезонином 130 кв.м.

Основные характеристики сборного дома (основной элемент: сэндвич-панель (СП)):

Площадь 130 кв. м.

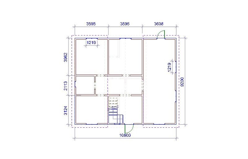
План первого этажа
План первого этажа



Срок сборки 7 дней.

Мезонин - надстройка над средней частью жилого дома, часто имеет балкон.

План мезонина.
План мезонина.

Фотографии построенного дома в поселке Выселки.

Построенный дом с мезонином
Построенный дом с мезонином

Стоит отметить, что все работы связанные с постройкой такого дома не требуют привлечения спецтехники или большого количества рабочей силы. Панели имеют достаточно легкий вес, что облегчает работу по установке и креплению материала.

Вид дома с мезонином
Вид дома с мезонином

Все коммуникации к дому такого типа подводятся без особых проблем. Благодаря большому слою утеплителя готовый дом не нуждается в дополнительном утеплении. Отопление такого дома будет экономным, поскольку практически все тепло сохраняется внутри жилья.

Кроме этого материал имеет ровную поверхность, что позволяет не использовать дополнительные меры по выравниванию стен и потолка, что также значительно снижает расходуемые средства.

Смотрите другие Проекты в Яндекс Дзен

Производство комплектов сборных домов в Краснодаре

Смотрите стоимость нескольких проектов без транспортировки, фундамента и монтажа.

Расчет стоимости домокомплекта из сэндвич-панелей

ВОЗМОЖНО изготовление комплекта сборного дома по вашему эскизу (проекту).