Найти в Дзене

13-09 - Проект современного одноэтажного дома из бруса с односкатной крышей

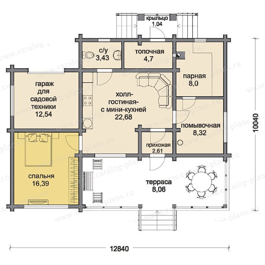
Общая площадь: 88 м²
Габариты: 12.84x10.04 м
Наружные стены: брус
Фундамент: ленточный ж/б

Общая площадь: 88 м²

Габариты: 12.84x10.04 м

Наружные стены: брус

Фундамент: ленточный ж/б

Перекрытия: по деревянным балкам

Крыша: односкатная

Кровля: битумная черепица

Наружная отделка: тонировка

Цоколь: нет

Архитектурный стиль: скандинавский

-2
Подробнее о проекте:
https://catalog-dom.ru/catalog/13-09