Найти в Дзене
Sergey Osipov

Покупка квартиры в Твери. 2 часть.

Все осмотрели, долго совещались, несколько раз встретились с представителем Застройщика. Представитель представился юристом компании, было видно ушлый, верткий и не совсем честный человек. Видимо на такой должности такой и нужен. На тот момент не знали, что он один из учредителей компании Застройщика. Было обещано много, и устранение недостатков в строительстве, и полное сопровождение документов
-2

Все осмотрели, долго совещались, несколько раз встретились с представителем Застройщика. Представитель представился юристом компании, было видно ушлый, верткий и не совсем честный человек. Видимо на такой должности такой и нужен. На тот момент не знали, что он один из учредителей компании Застройщика. Было обещано много, и устранение недостатков в строительстве, и полное сопровождение документов по оформлению квартиры в собственность. В общем «золотые горы», все как всегда. Еще раз посовещались и купили квартиру по договору «долевки». Запомним данный персонаж под номером 1, в конце этой истории напишем поименно всех лиц, которые в этой истории будут учавствовать.

Ребенок рос, суды шли своим чередом, квартира стояла, ждала своей очереди для заселения подрастающего чада. Периодически приходили, проверяли, так длилось до 2008 года.

А дальше начался праздник на нашей улице. Очередная проверка квартиры. Все колясочные закрыты металлическими дверями. Решили, это нормально. Колясочная на этаж, для 3 квартир. Дверь хорошо, сохраннее будет. Правда ключей никому от дверей не выдали, но стало не до этого. Ситуация с судами накалилась до такой степени, что стал вопрос о сносе возведенного жилого дома.

Появляется наш юрист. Предлагает следующее решение. Всем срочно оформить квартиры в собственность. Тогда суд будет иметь дело не с Застройщиком, а с владельцами квартир, а это меняет всю ситуацию. Мозги так всем, мягко говоря «засрал», что люди повелись. Взрослые все люди, а повелись. Под это дело пообещал помощь в оформлении необходимых документов, так еще и со всех собрал по 5000 руб, за квартиру. Ситуацию, которую создали сами вывернул так, что люди еще дополнительно оплатили, чтобы ее решить. Красавец!!! Этот персонаж очень интересный в нашей истории, будет постоянно маячить около этого дома. Помните: Призрак Коммунизма по Европе бродит. Что то подобное. Только постоянно этот персонаж оставался с деньгами, а люди нет.

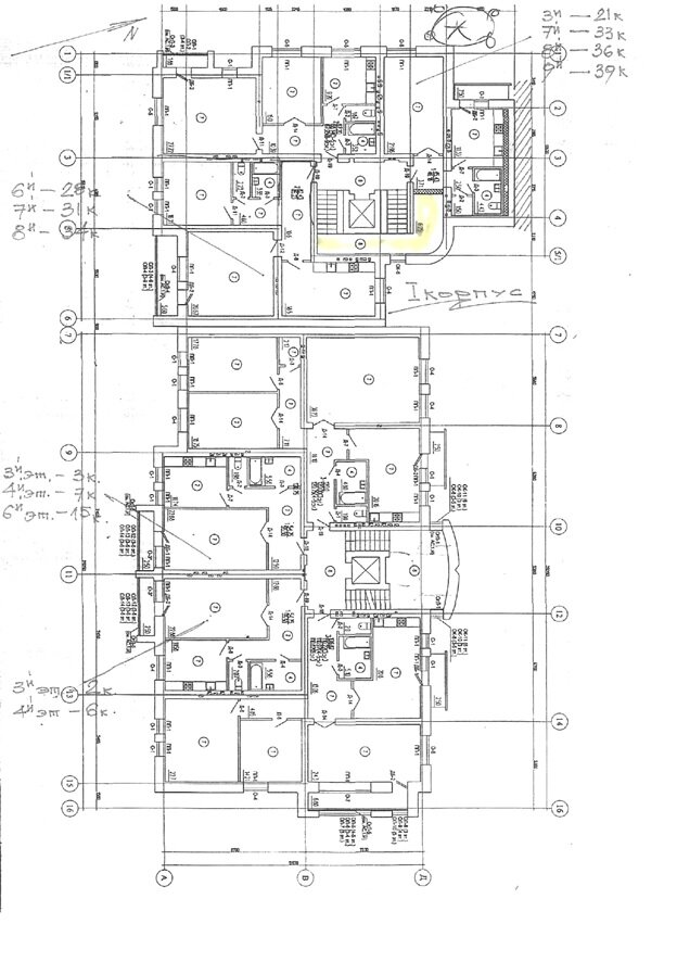
Документы подписаны, квартиры в собственности у дольщиков. Суд чудесным образом выносит решение в пользу дольщиков. Судья, вынесший это решение - персонаж 2. А недостатки строительства устранять никто не собирается. Документы то подписаны, и акты приемо-передачи квартир тоже. Красиво получилось. И в довершение истории, на первом этаже, у лифта, колясочную тоже перегородила металлическая дверь. Планы этажа в двух вариантах прилагаем. По ним ясно видно, что данные помещения являются обще домовыми, да и при продаже квартиры это выяснялось.

В данной ситуации всем было не до колясочных, с квартирами бы разобраться. Тем более с такими недостатками ремонты влетали «в копеечку». Так время пролетело до 2011 г.

Где то в это время в России прокатилась волна взрывов с гексогеном или чем то подобным. Как то днем хозяин квартиры вернулся домой днем. Ключи забыл от офиса. О, колясочная на этаже открыта. Захотел выяснить у кого ключи, и почему ключей нет у него. А там люди, не совсем славянской национальности. Мешки с чем то сыпучим перекладывают. То ли цемент, то ли смеси непонятно. На вопрос: А кто вы ребята, откуда у вас ключи? Тем более подъезд на домофон закрыт, и вроде, ремонты уже в подъезде все сделали. Без ответа ребята испарились. О как! Дверь открыта, ключей не оставили. А через стенку квартира этого человека. Выяснять нет времени, вызвал слесаря. Заплатил 1500 руб, поставил замок. закрыл дверь. На двери оставил наклейку с телефоном. Мол, отзовитесь, чьи люди были, что делали. И вообще почему общедомовым имуществом пользуется не понятно кто!

Ваш Сергей Осипов.

Продолжение следует.