Добавить в корзинуПозвонить
Найти в Дзене
ЭлектроПомощник

Глубинные насосы для скважины и дачь

Для того чтобы эффективно решать такие задачи, как откачка с большой глубины и подача в систему автономного водоснабжения воды, необходимо разбираться в устройстве погружного насоса для скважины. Использование таких насосов позволяет откачивать воду из скважин, глубина которых достигает 80 метров. В данной статье рассмотрим, как работает погружной насос, на какие категории делится и как правильно
Оглавление

Для того чтобы эффективно решать такие задачи, как откачка с большой глубины и подача в систему автономного водоснабжения воды, необходимо разбираться в устройстве погружного насоса для скважины. Использование таких насосов позволяет откачивать воду из скважин, глубина которых достигает 80 метров. В данной статье рассмотрим, как работает погружной насос, на какие категории делится и как правильно выбирать такое устройство.

Насос для скважины подбирается с учетом определенных особенностей его будущей эксплуатации
Насос для скважины подбирается с учетом определенных особенностей его будущей эксплуатации

Виды насосного оборудования для откачивания жидких сред из скважин

Основным назначением глубинных насосов является откачивание жидкой среды из подземного источника и ее дальнейшая транспортировка по трубопроводной системе под определенным напором. Гидромашинами данного типа оснащаются различные системы, к которым, в частности, относятся системы автономного водоснабжения и водоотведения, системы орошения и др.

В зависимости от сферы применения глубинные насосы могут относиться к:

  • устройствам промышленного назначения, которые за счет высокой мощности способны поднимать перекачиваемую ими жидкость с глубины, доходящей до 1000 метров (такое оборудование отличается значительными размерами и используется в различных отраслях промышленности);
  • погружным насосам бытового назначения, применяемым для обеспечения эффективной работы систем автономного водоснабжения загородных домов и дач, а также для функционирования оросительных систем (погружные насосы этого типа отличаются компактными размерами и достаточно высокой мощностью).
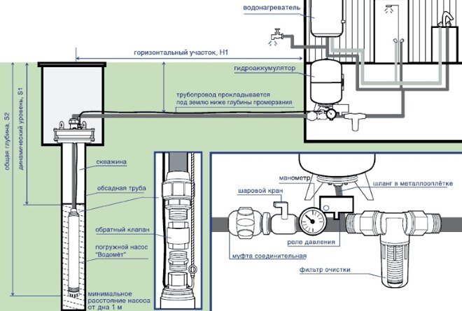
Схема подключения погружного скважинного насоса
Схема подключения погружного скважинного насоса

По схеме установки в скважине выделяют штанговый и бесштанговый погружные насосы. К устройствам второго типа, в частности, относятся насосные установки с электрическими центробежными насосами (УЭЦН).

Штанговый насос – это гидромашина, приводной двигатель которой располагается на поверхности земли, вне скважины, при этом в перекачиваемую жидкую среду погружается только его заборная часть. Штанги, присутствующие в конструкции такого устройства, предназначены для того, чтобы передать тягу, создаваемую приводным электродвигателем, к заборной части.

Скважинные штанговые насосы
Скважинные штанговые насосы

Приводной электродвигатель бесштанговых насосов располагается в одном корпусе с заборным механизмом и погружается в перекачиваемую жидкую среду вместе с ним. Такие погружные устройства получили наибольшее распространение, так как они являются более удобными и в монтаже, и в эксплуатации.

На различные типы погружное насосное оборудование разделяется также по конструктивному исполнению и принципу действия. Так, в зависимости от данных параметров различают глубинные насосы центробежного и вихревого, или вибрационного, типа.

Погружной центробежный насос – это устройство, основным рабочим органом которого является колесо с лопатками, закрепленное на валу, вращающемся при помощи электродвигателя. При вращении такого колеса (крыльчатки) перекачиваемая жидкость, находящаяся во внутренней камере, под действием оказываемой на нее центробежной силы отбрасывается к стенкам камеры, что и способствует выталкиванию жидкой среды в напорный патрубок. В то же время в центральной части камеры создается разрежение воздуха, за счет чего новая порция перекачиваемой жидкости всасывается из находящейся в скважине трубы.

Скважинный погружной насос «Джилекс»
Скважинный погружной насос «Джилекс»

Для того чтобы не допустить попадания во внутреннюю часть центробежного погружного насоса твердых включений, содержащихся в перекачиваемой жидкости, использовать такие устройства следует в комплекте с фильтрами грубой очистки, устанавливаемыми на подающей трубе. Наиболее значимым недостатком центробежных насосов, которые могут эксплуатироваться в круглогодичном режиме, является их достаточно высокая стоимость, если сравнивать ее с ценой на оборудование вихревого типа.

Вихревые (или вибрационные) глубинные насосы используются в тех случаях, когда откачать воду требуется из скважины небольшой глубины. Принцип работы устройств данного типа заключается в том, что в их внутренней части создаются высокочастотные колебания, которые приводят в движение механический поршень. Последний и обеспечивает всасывание перекачиваемой среды из подающей трубы.

Устройство скважинного насоса вихревого типа
Устройство скважинного насоса вихревого типа

К наиболее значимым достоинствам рассматриваемых насосов следует отнести:

  • компактные размеры;
  • невысокую стоимость (по сравнению с ценой на центробежные насосы);
  • минимальное потребление электроэнергии.

Среди минусов погружных насосов вихревого типа обычно выделяют:

  • разрушение стенок скважины от вибраций (минимизировать вибрационное воздействие вихревого насоса на стенки скважины можно, если надеть на его корпус резиновые кольца);
  • невысокую мощность;
  • достаточно низкую производительность перекачивания жидкой среды.
Вибрационный насос для скважины «Малыш»
Вибрационный насос для скважины «Малыш»

Конструктивные особенности глубинных насосов

Устройство глубинного насоса и его конструктивные особенности во многом определяются принципом действия и типом приводного электродвигателя этой гидромашины. Забор перекачиваемой жидкой среды при использовании таких насосов осуществляется по специальной трубе, помещаемой в шахту обслуживаемой скважины или в колодец. За электропитание приводного электродвигателя, располагаемого на определенной глубине, отвечает электрический кабель, помещенный в защитную оболочку.

В устройстве скважинного насоса центробежного типа можно выделить две основные части:

  • приводной электродвигатель, который может быть встроенным или наружным;
  • непосредственно саму насосную часть оборудования.
Устройство центробежного скважинного насоса
Устройство центробежного скважинного насоса

Если приводной двигатель насоса является встроенным, его, как правило, размещают в нижней части устройства. Забор воды при использовании насосов данного типа может осуществляться как через верхнюю, так и через нижнюю часть их корпуса. Предпочтение в данном случае отдают забору перекачиваемой жидкости через нижнюю часть корпуса, так как это позволяет прочистить глубинную часть скважины от скапливающихся в ней ила и песка. Погружные насосные устройства, что очень удобно, охлаждаются жидкой средой, в которую они помещены. Это позволяет защитить такие устройства от перегрева, способного быстро привести их в негодность. Глубинные насосы центробежного типа, хотя и являются более сложными по конструкции, чем вибрационные устройства, отличаются более высокой надежностью, производительностью и более длительным эксплуатационным сроком.

Подвес насоса должен выдерживать нагрузку, превышающую вес насоса в 5–10 раз
Подвес насоса должен выдерживать нагрузку, превышающую вес насоса в 5–10 раз

Основными элементами конструкции вихревых погружных насосов являются корпус, специальный стакан, приводной электродвигатель и вибратор. Вибратор в данных устройствах является самым сложным конструктивным элементом, состоящим из якоря, резинового амортизатора и регулирующих шайб. Необходимые условия для забора жидкости из скважины, осуществляемого вибрационным насосом, создает его резиновый амортизатор, который в процессе работы такого устройства сжимается и разжимается.

Обязательным элементом оснащения погружного насосного оборудования является фильтр грубой очистки, защищающий внутреннюю часть таких устройств от попадания в нее твердых включений, содержащихся в перекачиваемой среде. Для обеспечения более эффективной работы погружного насосного оборудования и обеспечения его защиты от негативных факторов используются различные датчики, автоматически останавливающие насос при возникновении внештатных ситуаций (слишком высоком содержании в составе перекачиваемой жидкости ила и песка, снижении уровня воды в скважине и др.).

Рекомендации по выбору насоса для скважины

Среди различных видов насосного оборудования, используемого для откачивания воды из скважины или колодца, наибольшей популярностью пользуются именно погружные устройства. Объясняется такая популярность целым рядом достоинств погружных насосов, к числу которых следует отнести:

  • отсутствие шума при работе;
  • возможность обеспечения бесперебойной подачи воды из обслуживаемой скважины;
  • легкость монтажа;
  • возможность обеспечить подачу воды из скважин значительной глубины;
  • компактные габариты;
  • отсутствие необходимости в дополнительном охлаждении приводного двигателя;
  • антикоррозионные свойства материалов, из которых изготавливается корпус.
Без глубинного насоса практически не обойтись в том случае, если глубина скважины, из которой предстоит откачивать жидкую среду, превышает 10 метров

Выбирая такое устройство, следует обращать внимание на такие параметры, как:

  • суммарная потребность точек водозабора в воде, которую должен обеспечить подбираемый насос;
  • характеристики скважины, из которой предстоит откачивать воду (диаметр и глубина);
  • геологические данные участка, на котором выполнено бурение скважины (глубина, на которой располагаются подземные воды, тип почвы и др.);
  • наличие на участке, на котором планируется установить насосное оборудование, источника электропитания.

К основным техническим характеристикам, по которым осуществляется выбор насосного оборудования, являются:

  • производительность устройства, которая характеризует, какое количество жидкости оно способно перекачать за единицу времени;
  • напор (данный параметр, измеряемый в метрах водяного столба, указывает на то, на какую высоту и на какое расстояние насос способен транспортировать жидкость по трубопроводной системе).
Приобретая погружной насос для скважины, лучше сразу остановить свой выбор на модели, мощность которой несколько превышает требуемое значение.