Добавить в корзинуПозвонить
Найти в Дзене
Мøнøмир 🌒

Сам себе проектировщик

Определились с организацией пространства, занялись согласованием перепланировки и заказали дизайн проект.
Если хочешь сделать что-то хорошо, сделай это сам.

Только вот знаниями я не обладал, в голове были примерные пожелания, например: шкаф у нас будет тут, а зеркало повесим тут, хм... а куда бы поставить входную дверь?) Естественно проектировщик, который посвятил всю жизнь профессии знает все нюансы. Какие отступы брать, какие двери ставятся, какие размеры нужны с учётом чистовой отделки и т.д. и т.п.
Ладно, глаза бояться, руки делают.

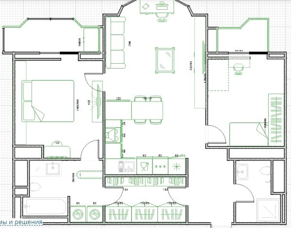
Итоговый вариант. Именно это мы сейчас и строим.
Итоговый вариант. Именно это мы сейчас и строим.

Что мы имеем в итоговом варианте?

  • Полноценный санузел, в котором удалось уместить всё
  • Большую кухню гостиную
  • Отдельные спальня и детская
  • Небольшой гостевой туалет, в которой из потребителей только инсталляция, небольшая раковина и гигиенический душ
  • Небольшой гардероб, для хранения сезонной одежды
  • Вполне удобный коридор, с длинными, большими шкафами
  • Балкон в спальне будет моим рабочим местом
  • Эрекрная зона гостиной будет рабочей зоной Наташи

В то же время я общался с ребятами из #Rewedo . Это как раз контора, которую посоветовал мой клиент. Но проблема была в том, что они просто не хотели понимать чего я от них хочу. Рассчитали смету, в которой монтаж сантехники стоил 5к рублей. И я то только рад таким ценам, даже за один комплект. Но даже не разбираясь в ценах, я понимал что что то тут не то. У нас кухонная раковина в четырёх метрах от стояка, соответственно нужно делать подводы к ней, слив вообще будет идти по потолку. К тому же коллекторная система, фильтры и прочие плюшки, куча потребителей... в общем в моей голове это никак не укладывалось в 5000 рублей.

-5

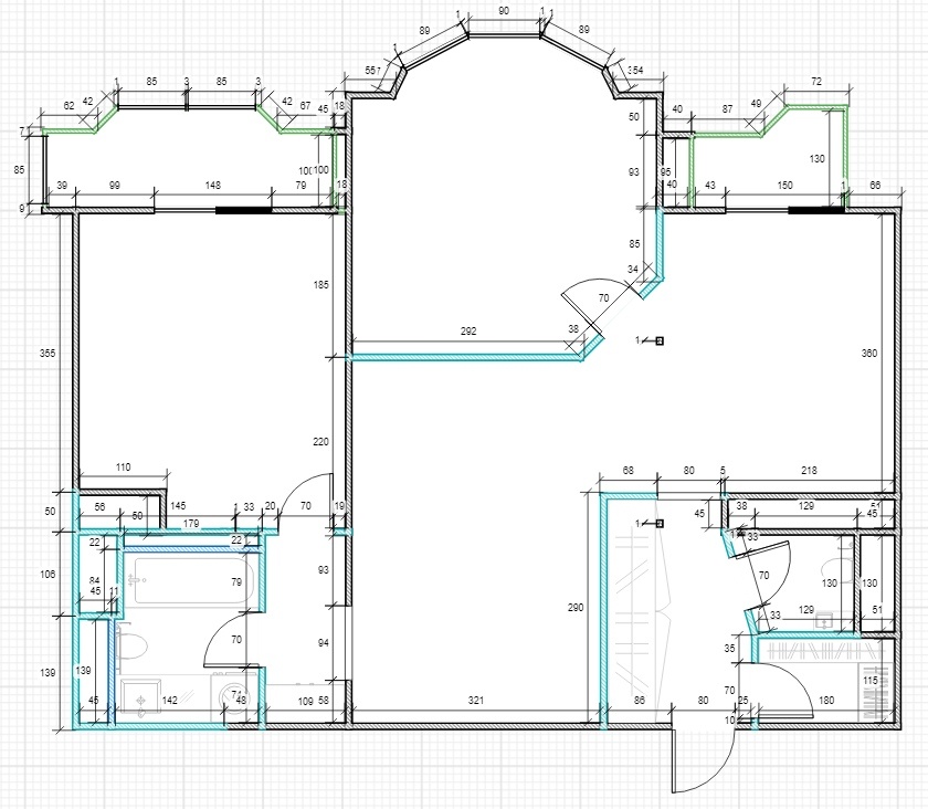
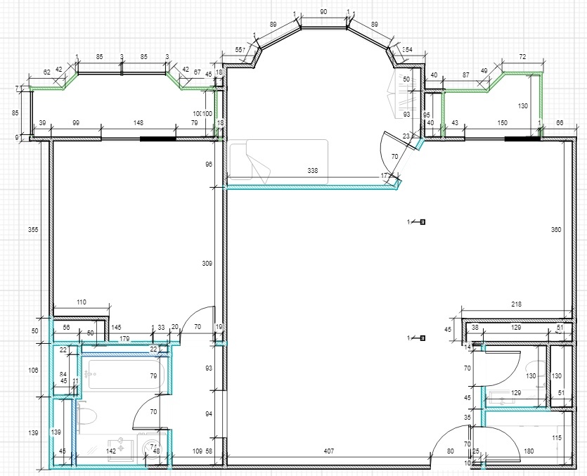
Тогда же мы наняли человека, который займется согласованием перепланировки. Вроде собрать пакет документов не так уж и сложно... Но. Стратегия такая. Вы собираете документы, бегаете по разным конторам, приносите, а вам говорят что вы конечно молодец большой, но дом другой серии. Вы в шоке, ок. Повторяете первое действие. А в ответ, всё ок, дом тот, серия та, но нужно подтверждение от проектировщика, ибо дом авторский проект, единственный такой в России. Автор где? А шут его знает, СУ-155 обанкротились, теперь поди его найти...

Авторский проект заключается только в том, что общий балкон с соседом, у нас не 50\50, а 70\30. И эти 30% балкона как раз таки у нас. На плане выше вы можете увидеть его в детской. И да, это по всему дому такая несправедливость. Поэтому мы решили нанять человека, который займётся всеми этими вопросами.

Через несколько месяцев вопрос с согласованием был решен.

Менеджер из rewedo объяснила, что если мы хотим полный просчёт, что бы в смете были указаны и сантехника, и электрика, то без проекта не обойтись. Стоит около 50к, что вполне адекватный ценник на данном рынке. Занимаются проектированием их партнёры из #rereooms 

666 рублей за квадратный метр) Как мило) Немного промониторив цены, понял что выгодно, ибо цены в среднем от 1200. Внесли предоплату и стали ждать.