Добавить в корзинуПозвонить
Найти в Дзене
Проекты Коттеджей

40-20G - Проект дома квадратной формы с мансардной крышей и тремя спальнями

Обратите внимание на стильную наружную отделку штукатуркой и декоративными элементами, она прекрасно сочетается с мансардной крышей, покрытой металлочерепицей.
В качестве материала для наружных стен архитекторы отдали предпочтение газобетону толщиной 400 миллиметров.

Обратите внимание на стильную наружную отделку штукатуркой и декоративными элементами, она прекрасно сочетается с мансардной крышей, покрытой металлочерепицей.

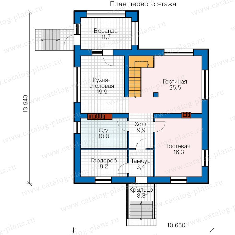
В качестве материала для наружных стен архитекторы отдали предпочтение газобетону толщиной 400 миллиметров. Этот материал является одним из наиболее часто используемых в современном строительстве, благодаря своим функциональным свойствам и невысокой цене. В качестве фундамента проекта была выбрана монолитная железобетонная плита. Перекрытия проекта – монолитный железобетон. На общей площадь в 305 квадратных метров расположились все необходимые для комфортной жизни большой семьи помещения. Размеры дома: 10х13 метров. Половина цокольного этажа дома используется в качестве удобного места для хранения.

Здесь в двух просторных кладовых вы сможете хранить сезонные вещи, запасы продуктов и различный технический инвентарь для ухода за домом и садом. Рядом с ними располагается тренажерная комната, где вы сможете заняться собственным здоровьем и заниматься спортом каждый день.

Часть цокольного этажа используется под котельную, таким образом, экономится место на первом этаже. На первый этаж из цокольного этажа можно подняться по небольшой лестнице. Функционально этаж разделен на гостевую зону, зону хозяйственно-бытовых помещении и зону для отдыха. Гостевая зона представлены просторной гостиной и гостевой комнатой, в хозяйственно бытовой зоне присутствуют такие помещения, как: тамбур, санузел и гардеробная комната, а зона отдыха представлена верандой и кухней-столовой. На втором этаже находятся три уютные спальные комнаты. Здесь же мы видим такие пространства, как: ванная, санузел и гардероб.

Большим преимуществом проекта является наличие санузла на каждом этаже. Из-за своих стилистических особенностей такой дом будет более уместно смотреться в черте города, чем за его пределами. Он прекрасно подойдет для постоянного проживания небольшой семьи из четырех человек. При желании максимальное количество жильцов может быть увеличено до пяти, если вы решите переоборудовать гостевую комнату в спальную.

Подробнее о проекте:
https://catalog-plans.ru/catalog/40-20G

Дома в европейском стиле:
https://catalog-plans.ru/catalog/evropeyskiy-style

Проекты домов с мансардой:
https://catalog-plans.ru/catalog/mansarda