Найти в Дзене
The Bykov

Сколько нужно газобетона на дом?!

Если вы приобрели земельный участок или только думаете о том что бы построить дом, но при этом возникает вопрос, во сколько же станет построить коробу? Как рассчитать стоимость материала, что бы примерно знать во сколько вам обойдётся материал и работа?
В этой статье речь пойдет о газобетоне. Предположим вы новичок в строительстве и что бы узнать сколько вам понадобится материала на коробку, вам

Если вы приобрели земельный участок или только думаете о том что бы построить дом, но при этом возникает вопрос, во сколько же станет построить коробу? Как рассчитать стоимость материала, что бы примерно знать во сколько вам обойдётся материал и работа?

В этой статье речь пойдет о газобетоне. Предположим вы новичок в строительстве и что бы узнать сколько вам понадобится материала на коробку, вам придётся либо заплатить за информацию, либо вы сможете сделать это самостоятельно прочитав данную статью.

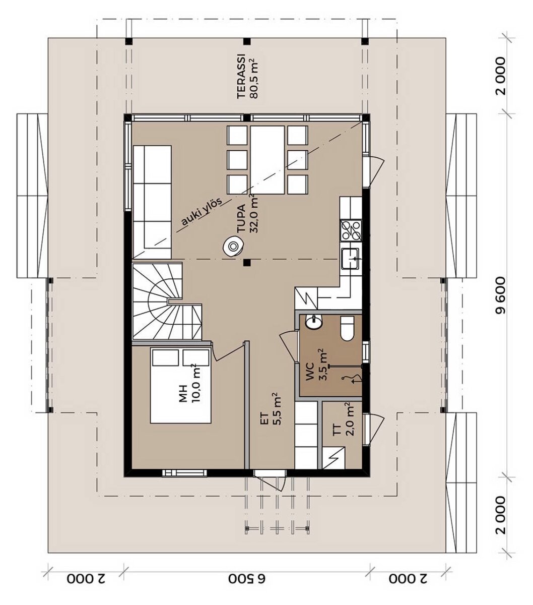
Итак, предположим что размеры нашего дома, а именно фундамента составляют 6500*9600

Размер газобетона длина: 625мм высота: 250мм а ширина: 375мм

-2

Далее нам нужно посчитать сколько нам нужно м3 на один ряд.

Берём ширину нашего участка 6500м и делим на длину газобетона (625мм) получаем примерно 10шт. Газобетона, тоже самое делаем с шириной, 9600 делим на 625мм и получаем 15шт. Газобетона.

Так как стены у нас четыре, нам нужно ширину, где у нас вышло 10шт. Газобетона, умножить на два, получаем 20шт. И тоже самое делаем с шириной и получаем 30шт. Газобетона. В итоге мы посчитали сколько штук нам нужно на четыре стены, в один ряд по кругу газобетона, у нас получилось 50шт. Газобетона.

Теперь посчитаем во сколько выходит нам один ряд газобетона. В м3 получается 17шт. И стоимость одного м3 3200₽

-3

В итоге делим 3200 на количество штук, тоесть 17 и получаем стоимость одного блока (188₽) и умножаем на наши 50 блоков. Получаем 9400₽

Столько и выходит один ряд по кругу (9400₽) теперь осталось посчитать сколько же нам нужно таких рядов, то-есть нам нужно посчитать высоту нашего дома. 

Высота блока 250мм, а высота нашего дома допустим 2.8м. Высоту 2800 делим на высоту блока (250мм) получается 11шт. Тоесть 11 рядов! И так как один ряд обошёлся нам в 9400₽ то умножаем эту сумму на нашу высоту и получаем 103400₽ 

Остаётся только учесть, сколько у вас будет в доме окон и дверей, таким же методом можно вычесть, ну и соответственно перегородок (а там нам нужен соответственно уже блок других размеров)

Вот так легко и просто можно самому высчитать стоимость материала.