Найти в Дзене

Z440 Проект компактного уютного дома со вторым светом

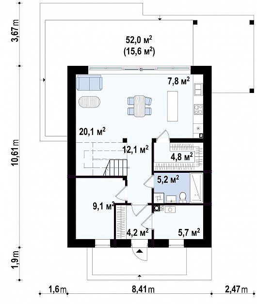
Z440 представляет собой проект компактного уютного дома со вторым светом. Данный проект отличный пример того как может быть использовано небольшое пространство для создания уникальной планировки.

Достоинства проекта Z440:

  • Кабинет на первом этаже, размещенный слева от входа, может быть адаптирован под комнату для гостей или дополнительную спальню.
  • Благодаря второму свету уютная дневная зона небольшой площади визуально выглядит просторнее.
-2

  • Кухня отделена от дневной зоны только столешницей, за счет чего также кажется просторнее. Хозяек порадует наличие большой кладовой около кухни.
  • Из гостиной предусмотрен выход на террасу с видом на сад. Здесь все члены семьи могут отдыхать в теплые дни.
-3

  • Нестандартным решением является использование ступеней, которые становятся декоративным элементом гостиной.
  • На мансарде расположены 3 комнаты и ванная комната.

Проект Z440 пригоден для строительства на узких участках.

Понравился проект? Пишите комментарии.

  • Заказать проект можно ЗДЕСЬ!
  • Все подробности о данном проекте Вы найдете ЗДЕСЬ!

Посмотреть другие проекты вы можете на сайте.