Благодаря тому, что гараж совмещен с домом распаковка и перенос с машины покупок становится значительно приятнее, удобнее и быстрее.
На фасадах деревянные панели идеально сочетаются с белой штукатуркой.
Благодаря тому, что гараж совмещен с домом распаковка и перенос с машины покупок становится значительно приятнее, удобнее и быстрее.
На фасадах деревянные панели идеально сочетаются с белой штукатуркой.
...Читать далее
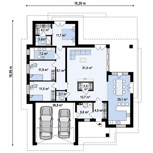
Z423 представляет собой современный одноэтажный дом с многоскатной крышей и гаражом на две машины.
Достоинства проекта Z423:
- Благодаря тому, что гараж совмещен с домом распаковка и перенос с машины покупок становится значительно приятнее, удобнее и быстрее.
- На фасадах деревянные панели идеально сочетаются с белой штукатуркой. В целом внешний облик дома стильный, респектабельный и элегантный. Такой дом хорошо смотрится как в городском пейзаже, так и загородном.
- Сердцем дома является просторная гостиная с панорамными окнами и выходом на крытую террасу.
- Выход на террасу предусмотрен и из обеденной зоны, что позволяет хозяйке быстро накрывать стол на свежем воздухе.
- Ночная часть состоит из трех уютных комнат и общей ванной комнаты. Собственный выход на террасу, личный гардероб и ванная – преимущества спальни хозяев.
Проект Z423 – хороший вариант просторного и функционального дома для семьи с двумя детьми.
Понравился проект? Пишите комментарии.
- Заказать проект можно ЗДЕСЬ!
Посмотреть другие проекты вы можете на сайте.