Добавить в корзинуПозвонить
Найти в Дзене

Какой могла быть конюшня в парке Екатерингоф. Проект, который остался на бумаге

Продолжаем тему Екатерингофского парка на Лифляндской улице.
Проектной документации в соответствии с заданием заказчика СПб ГКУ "ЦКБ" предусматривалась реконструкция хозяйственного двора, на территории которого еще на момент разработки проекта в 2012 году располагалась конюшня.
Сейчас конюшня закрыта, лошадей в парке нет. А тогда, на момент проектирования, предусматривалось устройство и

Продолжаем тему Екатерингофского парка на Лифляндской улице.

Проектной документации в соответствии с заданием заказчика СПб ГКУ "ЦКБ" предусматривалась реконструкция хозяйственного двора, на территории которого еще на момент разработки проекта в 2012 году располагалась конюшня.

Сейчас конюшня закрыта, лошадей в парке нет. А тогда, на момент проектирования, предусматривалось устройство и конкурного поля для тренировок, и малый крытый манеж.

Проектируемое здание конюшни в желтом контуре, примыкает к существующему зданию мастерских, входящего к комплекс и являющегося памятником
Проектируемое здание конюшни в желтом контуре, примыкает к существующему зданию мастерских, входящего к комплекс и являющегося памятником

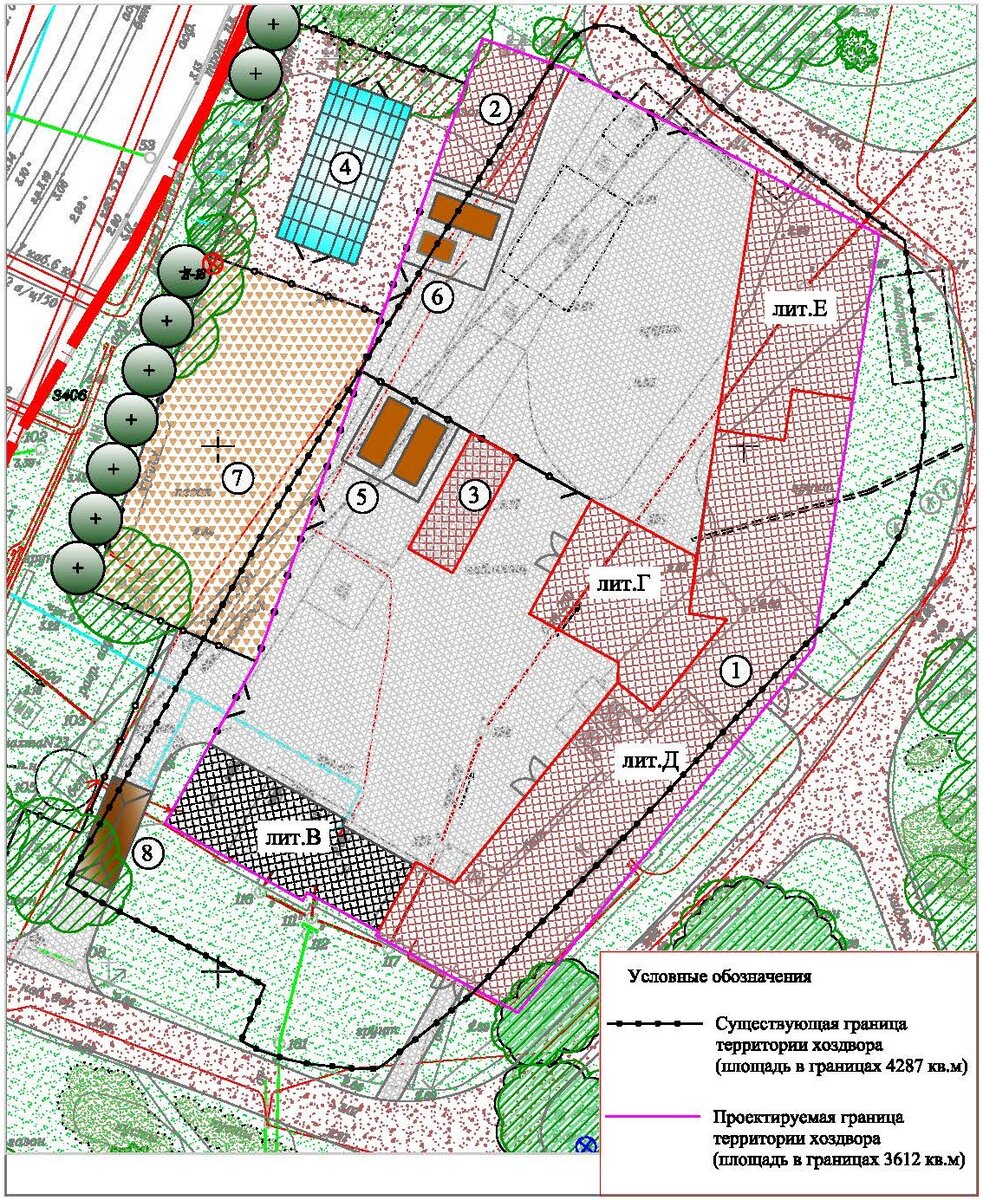
Территория хозяйственного двора подлежала перепланировки с сокращением площади. На месте существующего хозяйственного двора с гаражами, конюшней, расположенных в приспособленных для этой цели временных сараях и сарайчиках, по заданию заказчика запроектирован хозяйственный двор с увязкой стилистического решения с объемно-пространственной композицией парка Екатерингоф, с устройством асфальтированной площадки, конюшни, временных хозяйственно-бытовых помещений для хранения малой механизации, автомашин, раздевалок для садовых рабочих. Устройство открытого манежа для выгула лошадей и сезонной теплицы для овощей предусматривалось к западу от границы хозяйственного двора, дезбарьер – на въезде на территорию.

1- Здание конюшни (лит. В - существующий корпус, лит. Г - бытовой корпус, лит. Д - конюшня, лит. Е - гаражи), 2- Гаражи, 3- Сенник, 4- Теплица, 5- Контейнерная площадка (навозник), 6- Контейнерная площадка (ТБО), 7- Площадка для выгула лошадей, 8 - дезбарьер.
1- Здание конюшни (лит. В - существующий корпус, лит. Г - бытовой корпус, лит. Д - конюшня, лит. Е - гаражи), 2- Гаражи, 3- Сенник, 4- Теплица, 5- Контейнерная площадка (навозник), 6- Контейнерная площадка (ТБО), 7- Площадка для выгула лошадей, 8 - дезбарьер.

Здание конюшни, бытового корпуса и гаража проектировалось из стеновых панелей фирмы «Петропанель» с вертикальной схемой монтажа. Принятая толщина панелей -150мм. Стеновые панели в виде сэндвич-конструкций из двух листов стали имели утеплитель из базальтовой минеральной ваты между ними. Панели стандартного типа с покрытием Пурал. Кровля из кровельных панелей толщиной 200мм с верхним гофрированным листом с покрытием Пурал. Цвет стеновых панелей – светло-желтый, цвет кровельных панелей – «под патину».

Архитектурное решение фасадов
Архитектурное решение фасадов

Здание предполагалось построить из трех корпусов, отделенных друг от друга кирпичными перегородками толщиной 250мм. Бытовой корпус и конюшня соединялись между собой через дверной проем в кирпичной перегородке. Отметка конька кровли здания +5880 мм. Фундаменты комбинированные: ленточные совместно с общей плитой под всем зданием. Несущие элементы каркаса здания – стальные колонны и поверх них фермы с пролетом 10900 мм.

План конюшенного комплекса Екатериноф. Литер В: 1а - ковочная, 2а - оператор, 3а - техническое помещение, 4а - холл, 5а - столярная, 6а - санузел, 7а и 9а - тамбур, 8а - коридор, 10а и 11а - мастерские; Литер Г: 1 - тамбур, 2 - зав. сектором аттракционов и зав.  сектором конно-верх. проката, 3 - кабинет инж. электрика и нач. АХЧ, 4 - раздевалка мужская, 5 - коридор, 6 - тренер-преподаватель и мастер  садово-паркового хозяйства, 7 - раздевалка женская, 8 - вет. врач и склад мед-тов, 9 - инвентарная, 10 - душевая, 11 - кладовая МОП, 12 - пом. дежурного, 13 и 14 - санузлы; Литер Д: 15 - фуражная, 16-18 - денники, 19 и 23 - тамбуры, 20 и 21 - денники, 22 - коридор, 24 - хоз.помещение, 25 - мойка для лошадей, 26 и 27 - денники, 28 - седельно-инвентарная, 29 и 30 - тамбуры; Литер Е: 31 и 33 - гаражи для тракторов, 32 - кладовая-инструментальная, 34 - каб.механика автохозяйства, 35 - гараж для а/м Газель, 36 - ремонтный бокс.
План конюшенного комплекса Екатериноф. Литер В: 1а - ковочная, 2а - оператор, 3а - техническое помещение, 4а - холл, 5а - столярная, 6а - санузел, 7а и 9а - тамбур, 8а - коридор, 10а и 11а - мастерские; Литер Г: 1 - тамбур, 2 - зав. сектором аттракционов и зав. сектором конно-верх. проката, 3 - кабинет инж. электрика и нач. АХЧ, 4 - раздевалка мужская, 5 - коридор, 6 - тренер-преподаватель и мастер садово-паркового хозяйства, 7 - раздевалка женская, 8 - вет. врач и склад мед-тов, 9 - инвентарная, 10 - душевая, 11 - кладовая МОП, 12 - пом. дежурного, 13 и 14 - санузлы; Литер Д: 15 - фуражная, 16-18 - денники, 19 и 23 - тамбуры, 20 и 21 - денники, 22 - коридор, 24 - хоз.помещение, 25 - мойка для лошадей, 26 и 27 - денники, 28 - седельно-инвентарная, 29 и 30 - тамбуры; Литер Е: 31 и 33 - гаражи для тракторов, 32 - кладовая-инструментальная, 34 - каб.механика автохозяйства, 35 - гараж для а/м Газель, 36 - ремонтный бокс.

Освещение корпусов – комбинированное: естественное наружное через двустворчатые открывающиеся окна с открывающимися решетками и искусственное с внутренними светильниками.

Корпус конюшни (лит.Д) по проекту был разделен специальными перегородками фирмы ООО «Каркас-Технология» на денники. Перегородки для денников хотели выполниить из стали с деревянным заполнением, по верху от высоты 1200мм от пола металлическая решетка, двери – с раздельно открывающимися верхней и нижней частями двери. Стеновые панели в денниках обшивались деревянными брусками 100х100мм из лиственницы, обработанными «Огнебиозащитой» фирмы «Тэкс». Кирпичные стены в денниках должны были белиться известкой в два слоя. Карантинное помещение, мойка для лошадей, хозяйственное помещение и тамбуры отделены кирпичными перегородками толщиной 250мм. Хозяйственное помещение обшивается ГКЛО, которое окрашивается акриловой краской бежевого цвета. В фуражной стены обшиваются от проникновения грызунов листовой сталью и окрашиваются акриловой краской бежевого цвета.

Для полов в конюшне запроектировано специальное покрытие «Эквестримат». Напольное покрытие укладывалось на подстилающий слой по двум слоям обмазочной гидроизоляции Nafuflex 2K, которая лежит на плите фундамента. Между слоями гидроизоляции укладывалась армирующая сетка MC-Spezialgewebe 25NF. По стыку пол-стена для укладки гидроизоляции устраивалось штрабление и, затем, галтель из материала Oxal SPM. Галтель проклеивалась лентой Nafuflex DB. Такое решение было применено ко всем помещениям.

Административно-бытовой корпус (Лит.Г) был разделен на помещения гипрочными перегородками. Толщина гипрочных перегородок – 100мм. Перегородки в душевой и санузлах выполнены из влагостойкого гипрока. В душевой стены полностью обшивались керамической плиткой, в санузлах керамическая плитка выполнялась на высоту 1м, выше плитки стены окрашивались акриловой краской бежевого цвета. В прочих помещениях стены целиком окрашивались акриловой краской бежевого цвета. Во всех помещениях запроектирован подвесной потолок типа «Armstrong».

Напольное покрытие укладывалось на подстилающий слой по двум слоям обмазочной гидроизоляции Nafuflex 2K, которая должна была лежать на плите фундамента. Между слоями гидроизоляции укладывается армирующая сетка MC-Spezialgewebe 25NF. В качестве напольного покрытия применены керамическая плитка и линолеум.

Гараж (Лит.Е) в проекте разделялся на помещения кирпичными перегородками толщиной 250мм. Перегородки обшивались ГКЛО и окрашивались акриловой краской бежевого цвета.

Бетонный пол запроектирован из сталефибробетона с армированием сеткой из арматуры Вр-1 диаметром 5 мм150х150мм. Пол покрывался по э пропиткой Монолит 20М.

Почему закрыли конно-спортивный клуб "Екатерингоф" и не стали реализовывать проект реконструкции здания конюшни читайте здесь, а чтобы не пропустить новые публикации - подписывайтесь на канал.