Добавить в корзинуПозвонить
Найти в Дзене

Проект одноэтажного дома 324М-2 «Калипсо», 4 спальни, 186м2

Проект одноэтажного дома 324М-2 «Калипсо», ©Владимир Тарасов
Проект одноэтажного дома 324М-2 «Калипсо» - большой дом, с комнатами оптимальной площади. В доме 3 спальни, и кабинет, который, при необходимости, также можно использовать как спальню (гостевую). Общая площадь загородного одноэтажного дома 186м2.
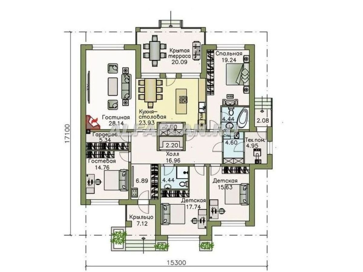
Планировка дома организована с прицелом на красивый, современный интерьер в дальнейшем.

Проект одноэтажного дома 324М-2 «Калипсо» - большой дом, с комнатами оптимальной площади. В доме 3 спальни, и кабинет, который, при необходимости, также можно использовать как спальню (гостевую). Общая площадь загородного одноэтажного дома 186м2.

Планировка дома организована с прицелом на красивый, современный интерьер в дальнейшем. Кухня имеет островную часть, из столовой-кухни есть выход на крытую террасу. В гостиной камин расположен таким образом, что хорошо виден также из столовой. Перед диваном в гостиной по плану дома — домашний кинотеатр.

4 жилых комнаты расположены вокруг просторного холла. В доме под ключ — три санузла.

Планировка одноэтажного дома 324М-2 «Калипсо», © Владимир Тарасов
Планировка одноэтажного дома 324М-2 «Калипсо», © Владимир Тарасов
Планировка одноэтажного дома 324М-2 «Калипсо», © Владимир Тарасов
Планировка одноэтажного дома 324М-2 «Калипсо», © Владимир Тарасов

Красивый фасад дома под ключ облицован кирпичами и кfмнем, со вставками из дерева.

Проект разработан архитектурно-дизайнерской студией ®«Альфаплан» недавно, в настоящее время по нему строятся первые дома.

Архитектурный проект дома является охраняемым объектом авторского права. Воспроизведение визуализаций проекта и/или его частей разрешается с обязательным указанием имени автора и активной гиперссылки на источник.

Дом по проекту под ключ может быть построен в любом регионе России. Готовые проекты домов требуют ПРИВЯЗКИ к участку строительства.

Проект дома цена: архитектурно-строительная документация (АС): 36100руб, инженерные разделы проекта (внутренние отопление, водопровод, канализация, электрооборудование): 8700руб

Ставьте лайки, подписывайтесь на наш канал Яндекс ДЗЕН. Стройте дома по проектам ® Альфаплан! У нас – только уникальные авторские проекты домов.

Вы бы хотели жить в одноэтажном доме?

#загородный дом #одноэтажный дом #проект под ключ #планировка дома #строительство домов