Добавить в корзинуПозвонить
Найти в Дзене
Ошибки ремонта

Угадайте какой вид открывается из окна студии за 16,6 млн рублей в центре Москвы

Оглавление

Привет! Меня зовут Никита. Я агент по недвижимости из Москвы. По работе мне приходится отсматривать десятки объявлений о продаже квартир в день. Иногда встречаются ТАКИЕ варианты, что глаза на лоб лезут!

Сегодня мне попались шикарные апартаменты в центре Москвы.

Думаете такой вид на Москву открывается?   Фото автора
Думаете такой вид на Москву открывается? Фото автора

Искал небольшую квартиру в самом центре Москвы под стильную холостяцкую студию. Нашел отличные апартаменты в новостройке на Маяковской, 38 квадратных метров, 6 этаж, 16 600 000 рублей. Дороговато, конечно, но торг (даже с застройщиком) никто не отменял.

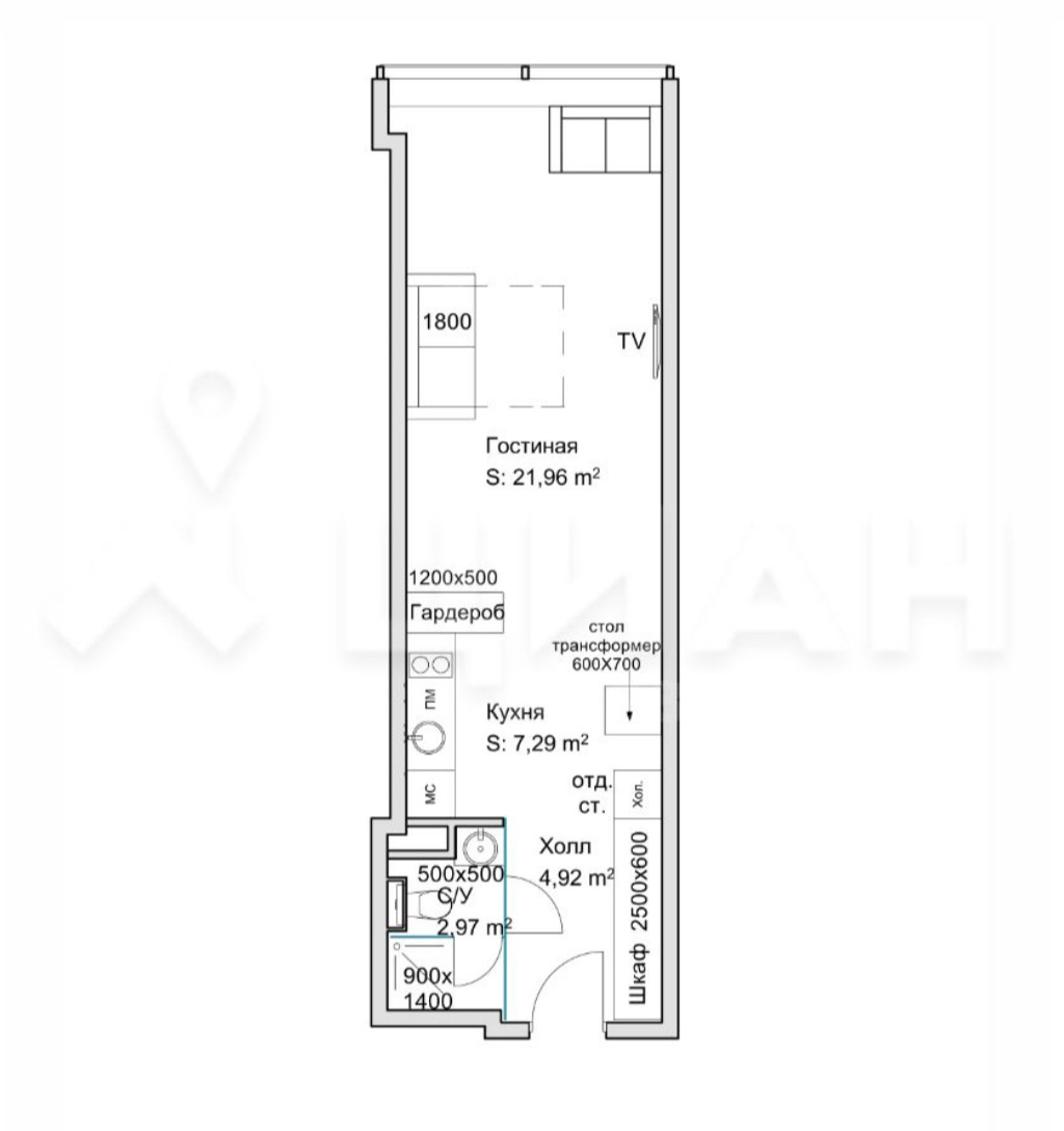
Планировка - так называемый «пенал» - длинная квартира со входом на одном конце и большим окном или даже панорамным остеклением на другом. Не идеальная планировка для студии, но и не худшая, всегда можно обыграть вытянутое пространство, зонировать его. А окно во всю стену обычно шикарно выглядит. К тому же в центре Москвы 6 этаж должен быть с весьма неплохим видом, подумал я.

Вот такая планировка у этих апартаментов. Фото с сайта cian.ru
Вот такая планировка у этих апартаментов. Фото с сайта cian.ru

Вот такой вид на самом деле открывается из окна апартаментов за 16 600 000 рублей в Центре Москвы.

Вид из окна апартаментов в центре Москвы. Фото с сайта cian.ru
Вид из окна апартаментов в центре Москвы. Фото с сайта cian.ru

Окно действительно большое, с остеклением от пола до потолка. Но есть нюанс. Это остекление позволяет видеть голого тебя после душа не только с 7 этажа офиса напротив, но еще и с шестого тоже.

Планировка типа «пенал» и панорамное остекление открывают офисным сотрудникам из здания напротив всю твою жизнь на всех ее стадиях: они уже на работе - а ты спишь в своей кроватке, у них кофе брейк – а ты встал и чистишь зубы, любуясь видами утренней Москвы, они завтракают на рабочем месте – а ты в спешке гладишь себе носки, но они все равно тебя видят (планировка пенал, стен-то нету). Ты вернулся домой – и снова здрасьте – офисный планктон дорабатывает сверхурочные и с завистью смотрит на мажора, который только что вернулся в свои апартаменты.

Законно ли строить такие апартаменты?

К сожалению, законно. Но лично я бы наказывал за такое.

Выводы

1) Жить в центре Москвы не всегда хорошо

2) Апартаменты за 16 миллионов рублей – не всегда хорошо

3) Застройщики, используйте здравый смысл, ПОЖАЛУЙСТА!!

Благодарю за лайк и подписку 👍🏻