Найти в Дзене
Комфорт Ремонт

Дизайн-проект для фудфотографа: наш взгляд

Мы часто знакомим вас с нашими уже реализованными объектами, для которых мы разрабатывали дизайн-проекты. В этот раз мы решили поступить по-другому: сначала познакомим вас с самим дизайн-проектом, а уже после реализации – с тем, что получилось в итоге.
Наша заказчица работает фотографом. Основную часть работы она выполняет на дому, потому что фотографирует она…еду.  У нашей клиентки огромное
Оглавление

Мы часто знакомим вас с нашими уже реализованными объектами, для которых мы разрабатывали дизайн-проекты. В этот раз мы решили поступить по-другому: сначала познакомим вас с самим дизайн-проектом, а уже после реализации – с тем, что получилось в итоге.

Наша заказчица работает фотографом. Основную часть работы она выполняет на дому, потому что фотографирует она…еду.  У нашей клиентки огромное количество разной фототехники, фонов и атрибутов, поэтому главным желанием было вместить в её небольшую по площади квартиру (47м2) много систем хранения.

За основу наша заказчица выбрала Скандинавский стиль. Весь дизайн выполнен в бело-серой цветовой гамме с использованием разных оттенков этих цветов.

Мы подошли к вопросу основательно и начали с разработки проекта перепланировки. Первоначальная планировка квартиры не позволяла нам воплотить желания нашей клиентки в реальность, поэтому  перепланировка была важным шагом на пути к исполнению мечты.

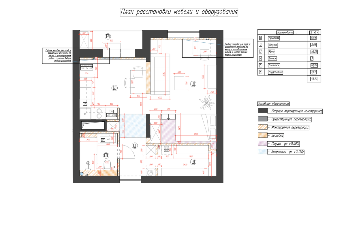
план расстановки мебели
план расстановки мебели

Что сделали?

  • Объединили кухню и гостиную для создания более объёмного пространства.
  • Разделили квартиру на функциональные зоны: спальную, рабочую, зону отдыха, кухню и место для релакса (балкон).
  • Убрали остекление между балконом и комнатой, не трогая при этом подоконный блок
  • Возвели новые перегородки и выделили ещё одно место для установки системы хранения
  • Благодаря новому удачному и продуманному планировочному решению, мы смогли выделить место для хранения всей профессиональной техники нашей заказчицы.

Прихожая

В прихожей мы поставили большой встроенный шкаф со скрытой дверью в гардеробную комнату и с полками открытого и закрытого типа. Наличие полок разного типа хорошо вписывается в концепцию квартиры и завершает интерьер прихожей.

Для хранения фототехники мы решили сделать антресоль под потолком. Она визуально разделяет прихожую и кухню-гостиную (от дверей мы, естественно, решили отказаться). Размер антресоли мы сделали под размеры фонов: это позволит нашей заказчице хранить всё технику в одном месте.

Из-за возведения новых перегородок, около вентиляционного короба появилось свободное пространство, в которое мы встроили ещё один шкаф.

-3

Санузел

У нашей заказчицы совмещенный санузел. Для сохранения  максимально возможного свободного пространства, мы решили установить унитаз с инсталляцией и душевую кабину с дверцами из стекла и сливом «в пол».

В шкафу над инсталляцией мы спрятали узкий водонагреватель и все инженерные коммуникации: так они скрыты от глаз, но к ним сохранен прямой доступ. Рядом со шкафом расположили полки открытого типа.

Особое внимание мы уделили встроенной стиральной машине под раковиной. Стиральная машина довольно высокая, но это сыграло нам на руку, потому что наша заказчица – высокого роста. Оптимально подобранная высота тумбы будет удобна в использовании: нашей клиентке не придётся нагибаться, для того чтобы умыться.

Кухня-гостиная

Для кухонной зоны у нашей заказчицы был особый запрос. На ней должно быть достаточно места для размещения разной техники: мультиварки, пароварки, тостера, кофемашины и тд. Благодаря смещению стены со стороны прихожей, нам удалось разместить выполненный на заказ Г-образный кухонный гарнитур, на котором точно хватит места для всего.

Также по пожеланию заказчика мы поставили холодильник  типа side by side: он гармонично вписался в интерьер и дополнил его.

Перегородка, разделяющая кухонную зону от гостиной тоже служит местом хранения: в ней разместиться бутылочница.

Визуально разделив кухню и гостиную, нам удалось создать функциональное пространство с рабочей зоной и зоной отдыха.

Спальная зона

Спальную зоны мы отделили от гостиной при помощи подиума с углублением для матраса. В качестве перегородки мы использовали шторы. Наша клиента не хотела четкой границы между спальным местом, поэтому штора стала идеальным вариантом, который хорошо выполняет свою функцию и придает воздушности + экономит бюджет.

Под подиумом мы расположили 4 выдвижных ящика - это дополнительно место хранения для вещей и фототехники.

Рядом со спальным местом мы сделали небольную нишу с полками открытого типа, а напротив разместили небольшие тумбы с ящиками и ТВ.

-6

Балкон

За счет объединения балкона и жилой зоны, мы смогли установить на балконе небольшой откидной столик и шкаф.

-7

Гардеробная

Гардеробную мы разрабатывали специально для гардеробной системы из ИКЕА «Боаксель». В будущем наша клиентка сможет спокойно докупать полки и кронштейны и наполнять гардеробную по своему вкусу и необходимости.

-8

В итоге нам удалось создать уютное пространство в скандинавском стиле и удовлетворить все пожелания вашей заказчицы. Мы вписали в небольшую квартиру довольно много элементов хранения. Девиз этой квартиры: «Много полок и шкафов не бывает».

Оцените дизайн-проект от 1 до 10 в комментариях😊👇🏼