Найти в Дзене
Мечтаево

Хронии Нарвы: типовой проект в нетипичных условиях.

Дом выполнен  по типовому проекту «Нарва»
Дом на винтовых сваях, каркасный.
7,5*7,5 м, площадью 88 м.кв.+ терраса 12,5 м.кв.
Оглавление
Если Нарва - это город в Эстонии с богатой историей и большим политико-экономическим значением, то наша Нарва в каркасном исполнении - достопримечательность Домодедовского округа.

Дом выполнен  по типовому проекту «Нарва»

ссылка на проект →

Дом на Винтовых сваях Ø108мм, L=2500мм, толщ. 4мм, забуренных на глубину промерзания грунта (1.5-1.6м). Металлические гильзы  заполнены пескобетоном.

-2

🌲Технология дома - каркасная - «базовый каркас»: стойки сечением 50х150 мм из древесины хвойных пород камерной сушки. Наружная обшивка стен каркаса выполнена листом OSB-3, толщиной 9 мм, по бруску 40х40 мм. Инновационный базальтовый плитный (50х600х1200 мм) утеплитель «PAROC eXtra» толщиной -150мм.

-3

-4
-5

🏡Лестница из клееной древесины хвойных пород (со ступенями без подступенок, тетива, точеные балясины по одной на ступени, перила, покрыто бесцветным лаком в три слоя.) Ширина одного марша до 1 м.
🔨Внешняя отделка дома и цоколя - фасадной плиткой КАНЬОН «СЛАНЕЦ» ЦВЕТ С 74, выполнена на обрешетку 40х100мм, шаг 150 - 200 мм. Включены крепежные элементы из металлического уголка 75х75мм и 40х40мм. Углы - Малый сколотый камень МКС ЦВЕТ №20.
‼Его можно монтировать в любое время года, он долговечный и прочный, устойчив к перепадам температур, имеет разнообразную фактуру и варианты укладки.

Ищите больше проектов с такой отделкой →→→

-6
-7

Терраса 12,5 м2 из клееного бруса 100х100мм; пол и ступени - доска террасная гладкая из древесины хвойных пород толщ. 36мм; поручень и ограждения - сухая строганная доска. Потолок подшит софитами белого цвета.

Внутренняя отделка – классика жанра - деревянные панели, имитирующие брус 16х135 мм из древесины хвойных пород.

7,5*7,5 м, площадью 88 м.кв.+ терраса 12,5 м.кв.

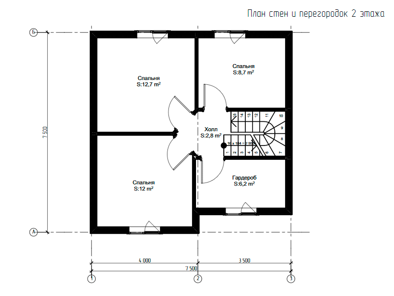
1 этаж - Терраса, прихожая, кладовая, холл, кухня – гостиная, санузел.

2 этаж – три спальни, гардероб, холл.

-8
-9

В доме все коммуникации скрытым и отрытым способом без установки сантехнических и электроприборов приборов. Смонтирован и запущен септик «Топаз 5пр».

Подробнее о проекте "Нарва" - здесь!

Подписывайтесь на наш дзен-канал! Есть вопросы по строительству? Звоните: +7-495-660-83-34