Добавить в корзинуПозвонить
Найти в Дзене
4living

Джакарта: квартира 45 кв.м

Архитектор Христофорус Джаухари

Даже если тебе достались совсем плохие карты, не стоит сдаваться с самого начала. Возможно, совсем победить ужасную планировку не удастся, но несколько занятных фокусов показать можно всегда. 

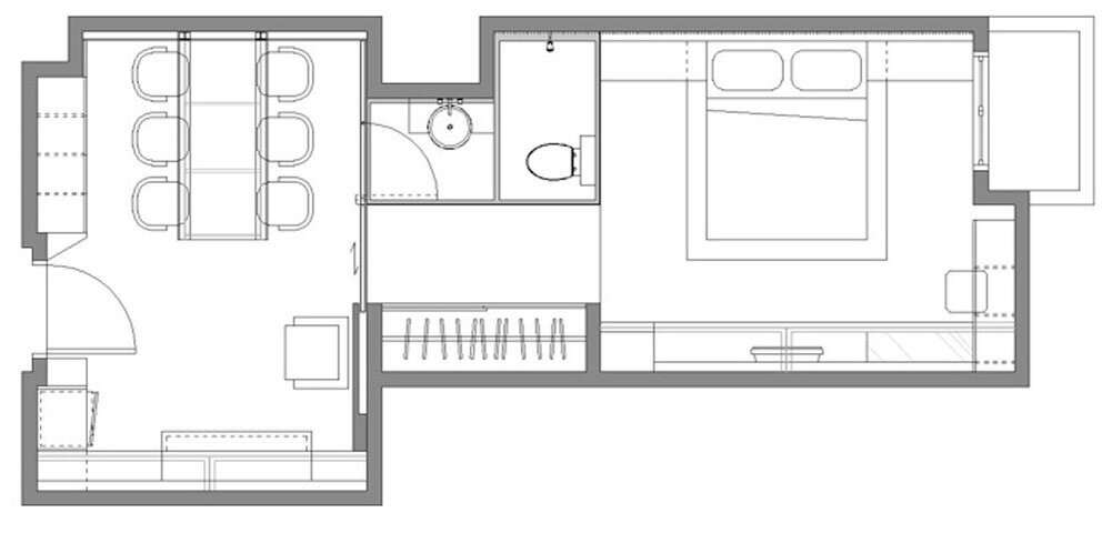
Если честно, то ничего путного из узкой длиной квартиры с одним небольшим окном в торце и ванной комнатой ровно посередине этого «тоннеля» сделать было невозможно. Но архитектор Христофорус Джаухари все-таки принял вызов и попытался сделать эту безнадежную квартиру по-современному изящной и предельно удобной. Вышло неожиданно и здорово. Хотя дневного света в ней все-таки маловато. 

-2

План. Здесь хорошо видны все недостатки пространства, по мере сил сглаженные архитекторами из Chrystalline Artchitect. Квартира — одно глубокое помещение с окном только в торце. В передней части квартиры — у входной двери — дневного освещения почти нет, хотя бы потому, что в центре квартиры громоздится объем ванной комнаты, перекрывающий поток света. Архитекторы минимизировали объем санузла, сделав его прозрачным. В проходе между кухней-гостиной и спальней — в нише — расположены шкафы. 

-3

Для визуального увлечения пространства столовой были установлены зеркальная стена и необычный обеденный стол. Зеркальную стену и стол связывает прочная стальная конструкция. Она спрятана так искусно, что, глядя на это фото интерьера квартиры, может показаться, будто стол парит в воздухе. 

-4

Небольшая кухня, отраженная в зеркале выглядит вполне солидно.

-5

Когда раздвижная дверь раскрыта, вся небольшая квартира просматривается насквозь.

-6

В кухне-столовой предусмотрена и диванная зона для гостей.

-7

Подвесной потолок сделан в два уровня: используется классический черно-белый контраст, вдоль идет флуоресцентная подсветка.

-8

Душевая кабина, превратившаяся в стеклянный куб с красивой подсветкой, не только позволила визуально несколько расширить объем, но, как ни странно, стала и главным украшением спальни. Особенно этому способствует изящный узор из бамбуковых листьев, нанесенный на стекло.