Найти в Дзене
Лесстрой Портал

Каркасный дом для большой семьи

Сегодня рассматриваем каркасный дом "Мраморный" от строительной компании "Светлый Град".

Общая площадь дома 162 м2. В качестве древесины используется сосна.

Как заявляет подрядчик, цены разные в зависимости от комплектации:

  • Дом под ключ с утеплением в 100мм - 1,550,000 руб
  • Дом под ключ с утеплением в 150мм - 1,740,000 руб
  • Дом под ключ с утеплением в 200мм - 1,900,000 руб

В дом устанавливаются окна ПВХ, деревянные филенчатые двери, лестница с перилами и балясинами под ключ, полы из сухой половой доски. Предлагается на выбор два вида фундамента: ленточный мелкозаглубленный или свайно-винтовой. Чаще всего используют ленточный фундамент, свайный есть смысл применять на неустойчивых почвах, слабых, заболоченных грунтах.

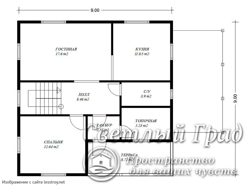
На первом этаже находится терраса, кухня, гостиная в 17 м2, санузел и спальня в 12 м2. На втором этаже над террасой располагается балкон, также есть санузел и три спальни по 12, 13 и 15 м2. Таким образом дом подходит для проживания четырех семей. Конечно, можно перепланировать дом и использовать спальни, как кабинет, детскую, тренажерную или комнату отдыха. Тогда можно использовать его для проживания и меньшего количества людей, но зато с бОльшим комфортом.