Добавить в корзинуПозвонить
Найти в Дзене

"Сибирьноморье" или интерьер, созданный для счастья

Дизайн: Татьяна Лейтан
КОНЦЕПЦИЯ
Изначально квартира расположена в прекрасном месте Сибири: на берегу Оби. Квартира угловая, светлая, с видом на реку и сосновый бор. Сам комплекс «Флора и Фауна» очень европейский, а Европа у меня ассоциируется с теплым морем.
Мне хотелось объединить теплую атмосферу путешествий по Европе и Сибирский характер. Так родился этот интерьер, который стал первым
Оглавление

Дизайн: Татьяна Лейтан
Дизайн: Татьяна Лейтан

КОНЦЕПЦИЯ


Изначально квартира расположена в прекрасном месте Сибири: на берегу Оби. Квартира угловая, светлая, с видом на реку и сосновый бор. Сам комплекс «Флора и Фауна» очень европейский, а Европа у меня ассоциируется с теплым морем.
Мне хотелось объединить теплую атмосферу путешествий по Европе и Сибирский характер. Так родился этот интерьер, который стал первым интерьером в моей коллекции: «Линии Эмоций» (посмотреть все коллекции).


Функциональное решение


Изначально при всех плюсах расположения, квартира не выглядит слишком удобной: мало мест хранения, не организованы приватные зоны, гостиная очень раздроблена и не приглашает к общению, более того, не задействовано самое главное: вид.

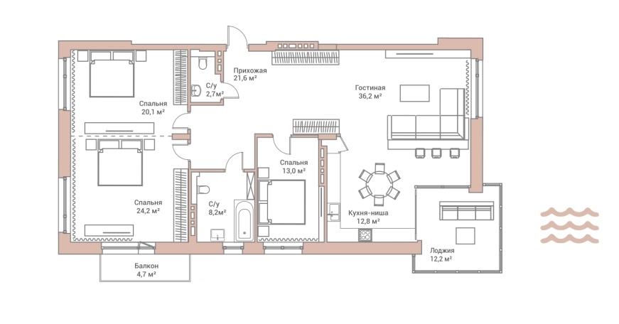
Планировка ДО
Планировка ДО

ПЛАНИРОВОЧНОЕ РЕШЕНИЕ
В планировочном решении от нашей студии мы исправили это:

Планировка от LEYTAN DESIGN
Планировка от LEYTAN DESIGN

  • Добавили гардеробных
  • Обособили входную зону, она перестала быть транзитной.
  • Полностью ре-организовали пространство гостиной: теперь зона дивана и кухни со-направлены, а это значит, что общаться в этой гостиной будет удобно.

Вид из окна: обратите внимание, как теперь из каждой точки квартиры можно наблюдать небо: нет препятствия взгляду. А это значит, что квартира стала более воздушной, просторной, уникальной


Стилистическое решение

Спальня от студии LEYTAN DESIGN
Спальня от студии LEYTAN DESIGN


Эмоция теплоты и уюта с сочетанием основательности и практичности мебель. Теплые тона, яркие акценты.Материалы: дерево, штукатурка, цветное стекло, аккуратное включение оттенков теплого золота, как лучи закатного солнца.Спальня: родительская спальня выполнена в более приглушенных тонах. Цветные акценты в виде ценных пород дерева добавляют аутентичности и атмосферы.

Создавая незримое – атмосфера вашего дома

Кабинет
Кабинет

Leytan design: создаём атмосферные интерьеры

ванная от LEYTAN DESIGN
ванная от LEYTAN DESIGN