Найти в Дзене
Благоустройство.рф

Сколько стоит ленточный фундамент?Смета материал+работа // Благоустройство.рф

Всем привет!В этой статье расчет строительства ленточного фундамента на примере проекта деревянного дома. Ленточный фундамент общей длинной ленты 62м.п Высота 900мм; Ширина 300мм; Рабочая арматура Ф12А500С; Конструктивная арматура Ф10А240; Бетон В25 М350; План производства работ: Этап первый: разметка пятна застройки и выемка грунта. Это самый важный этап строительства фундамента.Заранее продумайте места хранения материалов,места складирования грунта,пути подъездов,размещение канализационных и ливневых колодцев. Сделайте выноски размеров в натуру,проверьте размеры и диагонали.Определите нулевую отметку (репер) путем вынесения ее на неподвижный предмет (столб забора или другие строения),разместите ее таким образом,что бы был к ней визуальный доступ нивелира. Далее загоняйте экскаватор и контролируйте его работу по заранее продуманному плану. Этап второй: подготовка основания фундамента и устройство закладных инженерных сетей. После того как сделали выемку грунта,можно приступать к ус
Оглавление

Всем привет!В этой статье расчет строительства ленточного фундамента на примере проекта деревянного дома.

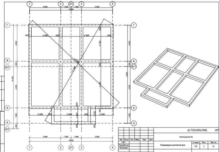
План строительства ленточного фундамента
План строительства ленточного фундамента

Ленточный фундамент общей длинной ленты 62м.п

Высота 900мм;

Ширина 300мм;

Рабочая арматура Ф12А500С;

Конструктивная арматура Ф10А240;

Бетон В25 М350;

ленточный фундамент
ленточный фундамент

План производства работ:

  1. вынос осей в натуру,определение нулевой точки строительства;
  2. выемка траншей под ленту и плодородного слоя грунта;
  3. устройство закладных инженерных сетей;
  4. подготовка песчаного основания фундамента 300мм;
  5. изготовление и монтаж опалубки;
  6. изготовление и монтаж армированного каркаса фундамента;
  7. укладка бетонной смеси с уплотнением глубинным вибратором;
  8. уход за бетоном;
  9. демонтаж опалубки;

Этап первый: разметка пятна застройки и выемка грунта.

Это самый важный этап строительства фундамента.Заранее продумайте места хранения материалов,места складирования грунта,пути подъездов,размещение канализационных и ливневых колодцев.

Сделайте выноски размеров в натуру,проверьте размеры и диагонали.Определите нулевую отметку (репер) путем вынесения ее на неподвижный предмет (столб забора или другие строения),разместите ее таким образом,что бы был к ней визуальный доступ нивелира.

Далее загоняйте экскаватор и контролируйте его работу по заранее продуманному плану.

Этап второй: подготовка основания фундамента и устройство закладных инженерных сетей.

После того как сделали выемку грунта,можно приступать к устройству основания фундамента.В данном проекте основание песчаное высотой 300мм.

Под ленту шириной 300мм необходимо сделать основание шириной 500мм.

Что бы слои грунта и песка со временем не смешивались необходимо проложить между ними геотекстиль.

Далее песок нужно утрамбовать трамбовкой и довести его до проектной плотности, обычно достаточно коэффициента 0.94.

Смотрите видео как замереть плотность песка:

Так же не забудьте про устройство закладных футляров инженерных сетей (вода, канализация, электричество).

Этап третий: изготовление и монтаж опалубки.

Для устройства опалубки можно использовать материал:

  • доска (сосна,осина) 1,2 сорт;
  • фанера ламинированная 1.8мм;
  • опалубка щитовая (инвентарная);

Каждый из этих вариантов имеет свои преимущества и недостатки.

В данном случае рассмотрим вариант с доской.Если после монтажа щитов ее бережно обмотать пленкой,то в дальнейшем ее можно будет использовать при строительстве дома (леса,черновые полы,опалубка для перемычек и армопоясов).

Для того,что бы сделать щит высотой 900мм надо сколотить 6шт досок 150*50*6000мм,ну это если Вы взяли в идеале такую доску,на практике обычно на рынках продают "армянский ваоиант" 140*40*6000мм.

Ниже таблица кол-ва досок в 1м3:

сколько досок в 1м3
сколько досок в 1м3

Не забудьте,что помимо доски на щиты,Вам еще понадобиться доска на упоры опалубки.

К крепежу опалубки уделите особое внимание,крепите ее как можно крепче,что бы потом при выгрузке бетона не разлетелась опалубка и не была нарушена геометрия фундамента.

Исходя из длинны и высоты ленту сюда уйдет порядка 7.5м3 дерева 140*40*6000мм.

При монтаже опалубки,не забудьте уложить пленку на песчаное основание,для того,что бы не ушло бетонное молочко и конструкция набрала свою проектную прочность.

Этап четвертый: изготовление и монтаж армированного каркаса.

Для изготовления армокаркаса используется рабочая арматура
Ф12 А500С.

Для изготовления конструктивных хомутов арматура гладкая Ф10А240.

изготовление армокаркаса ленточного фундамента
изготовление армокаркаса ленточного фундамента

По армокаркасу продольно идет 6шт прутов рабочей арматуры Ф12 и хомуты шагом 200мм.

Итого для данного проекта нужно:

Арматура Ф12 380м.п:

Арматура Ф10 750м.п;

Так же помните про усиление углов и усиление мест наивысшей нагрузки.

Этап пятый:укладка бетонной смеси.

Перед покупкой бетона изучите ближайшие РБУ (бетоно-раздаточный узел).Как это делать я уже писал в статье:

"Как правильно купить бетон и не быть обманутым?"

Укладка бетона идет непрерывно,если есть пути подъезда миксера,то можно выгружать из него,если нет,то используйте бетононасос.

Бетон,при укладке,уплотняется глубинным вибратором.

Далее выравнивается по нулевой отметки и оставляется для набора проектной прочности.

Необходимое кол-во бетона 17м3

При твердении бетона необходимо обеспечить правильный уход:

обеспечить правильный температурный режим (не допустить промерзание);

предотвратить быстрое высыхание бетона (необходимо накрыть пленкой и поливать);

Через несколько дней, после того как бетон встанет, можно снимать опалубку.

Смотрите как построить фундамент👇

Смотрите видео как правильно заливать и ухаживать за бетоном:

Спасибо,что дочитали статью до конца,в знак благодарность даю ссылку для скачивания этого проекта деревянного дома:

"Проект строительства деревянного дома скачать"

Как и обещал подробная смета на материал и строительство фундамента по ссылке ниже:

"Смета на строительство ленточного фундамента скачать"

смета на строительство ленточного фундамента
смета на строительство ленточного фундамента

Итого вышло 5645 руб/п.м конструкции под ключ.

Всего: 350 000р.

Подписывайтесь на наш канал,оставляйте комментарии и ставьте лайки.

Если хотите узнать больше о загородном строительстве, то переходите на канал ютюб благоустройство.рф или посетите сайт благоустройство.рф.

Удачной стройки🤞