Найти в Дзене
Дом у озера

Гардеробная для дачи за 3 тысячи рублей

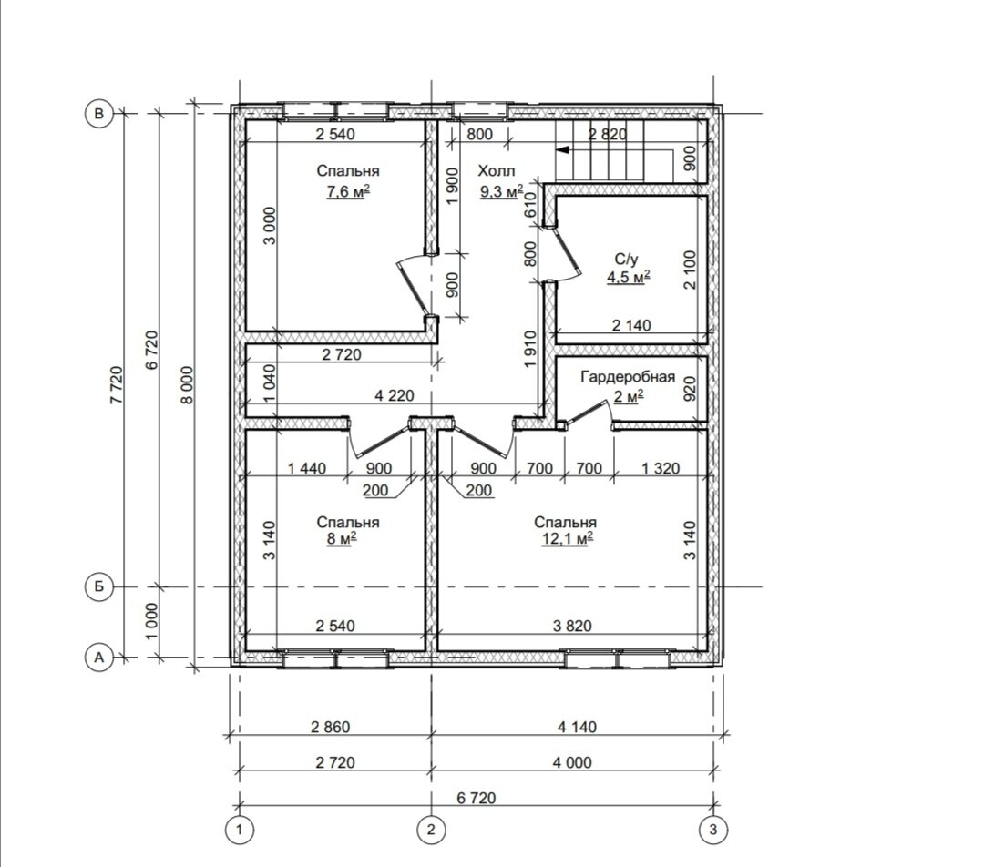
Когда мы только проектировали дом, то решили не городить шкафов в спальне, а сделать небольшую гардеробную. Во-первых, это дешевле. Во-вторых, здесь ты волен делать все, что душе угодно, исходя из своих потребностей и, при желании, можно всегда изменить наполнение. Гардеробная у нас небольшая 2140*920.
План дома. 2 этаж
Сначала мы собирались покупать для гардеробной готовые полки и корзины,

Когда мы только проектировали дом, то решили не городить шкафов в спальне, а сделать небольшую гардеробную. Во-первых, это дешевле. Во-вторых, здесь ты волен делать все, что душе угодно, исходя из своих потребностей и, при желании, можно всегда изменить наполнение. Гардеробная у нас небольшая 2140*920.

План дома. 2 этаж
План дома. 2 этаж

Сначала мы собирались покупать для гардеробной готовые полки и корзины, но посчитав во сколько нам это встанет, немного офигели от цен. Если по отдельности все эти направляющие и кронштейны стоят недорого, то сложив все вместе выходило не меньше 10 тысяч рублей. И это самый минимум, что нам был нужен.

В итоге решили сэкономить и сделать обычные деревянные полки. Купили мебельные щиты, саморезы и кронштейн для вешалки.

3 мебельных шита 800*400 по 433 р.
4 мебельных щита 800*300 по 328 р.
3 бруска по 150 р.
Кронштейн 150 р.
Итого: 3211 р.

Полки нарезали электролобзиком в размер, сделали держатели, покрасили оставшимся от лестницы эко-лаком Bioteks.

В гардеробной установили стойки для кронштейна под вешалки, полки закрепили при помощи саморезов. Гардеробная готова.

-3
-4

Дверь в гардеробную у нас самая обычная жалюзийная из хвои. Покупали в Леруа Мерлен. Покрыта лаком на водной основе Pinorex Lacker Aqua для мебели и стен.

-5

Мы довольны. Получилось быстро, дешёво и удобно.

Подписаться на канал можно здесь

Заглядывайте в наш Instagram

Читайте также:

Как сделать стильные светильники своими руками
Дровница для дачи из старой бочки