Добавить в корзинуПозвонить
Найти в Дзене
Планировка

Небольшой домик бруса. Типовой проект из СССР 1987г.

Представляю простой и компактный дачный проект типового дома из бруса общей площадью 48м.кв. Архитектурно-строительный и электротехнический комплекты. Разработчик ВИПО "Стандарт" 1987г. На мой взгляд, главная особенность данного проекта - простота, а наличие проверенных временем чертежей, дополнительный плюс данного проекта. В проекте есть чертежи фундаментов, поэтажные планы, конструкции стен, кровли. Общий вид. Проект очень детальный. С использованием современной отделки и качественного материала данный проект может стать основой бюджетного дачного строения. Скачать проект можно здесь: https://yadi.sk/d/dtDNOz_P_ocoXQ Понравилось - подписывайся на канал! Вам могут быть так же интересны: Одноэтажный трехкомнатный жилой дом. Типовой проект Красивые типовые садовые домики Проект одноэтажного дома 9 х 9м 1981г Небольшой домик бруса. Типовой проект из СССР 1987г. Типовой проект из СССР. Дом 6х6 м со стенами из кирпича Где скачать проект дома бесплатно? Типовой проект каркасного о
Оглавление

Представляю простой и компактный дачный проект типового дома из бруса общей площадью 48м.кв. Архитектурно-строительный и электротехнический комплекты. Разработчик ВИПО "Стандарт" 1987г.

На мой взгляд, главная особенность данного проекта - простота, а наличие проверенных временем чертежей, дополнительный плюс данного проекта. В проекте есть чертежи фундаментов, поэтажные планы, конструкции стен, кровли.

Общий вид.

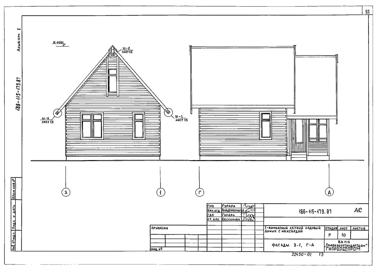
Фасады.
Фасады.
Фасады
Фасады
Поэтажные планы.
Поэтажные планы.
Детали
Детали
-6
Конструкции стропил кровли
Конструкции стропил кровли
Разрез
Разрез
Порядовки стен (побревенка)
Порядовки стен (побревенка)
Конструкции мансарды
Конструкции мансарды
Конструкции лестницы
Конструкции лестницы
-12
Электротехническая часть
Электротехническая часть
Разрезы
Разрезы
Монтажный план
Монтажный план
Деталировка конструкций фронтонов
Деталировка конструкций фронтонов
-17
Деталировка конструкций
Деталировка конструкций
Деталировка конструкций
Деталировка конструкций
Деталировка конструкций
Деталировка конструкций
Расчет расхода материалов
Расчет расхода материалов
Фундаменты. Узлы.
Фундаменты. Узлы.
План фундамента.
План фундамента.
Общие описание
Общие описание
Конструкции кровли.
Конструкции кровли.

Общий вид.
Общий вид.

Проект очень детальный. С использованием современной отделки и качественного материала данный проект может стать основой бюджетного дачного строения.

Скачать проект можно здесь: https://yadi.sk/d/dtDNOz_P_ocoXQ

Понравилось - подписывайся на канал!

Вам могут быть так же интересны:

Одноэтажный трехкомнатный жилой дом. Типовой проект

Красивые типовые садовые домики

Проект одноэтажного дома 9 х 9м 1981г

Небольшой домик бруса. Типовой проект из СССР 1987г.

Типовой проект из СССР. Дом 6х6 м со стенами из кирпича

Где скачать проект дома бесплатно?

Типовой проект каркасного одноэтажного садового домика 1986г

Ваше мнение в комментариях Важно для развития канала.

Спасибо, что читаете мой канал!