Найти в Дзене
Мечтаево

Каркасный дом с 7 спальнями: меняй каждый день!

Мы привыкли к тому, что каркасный дом - это чаще всего маленькая загородная дача.
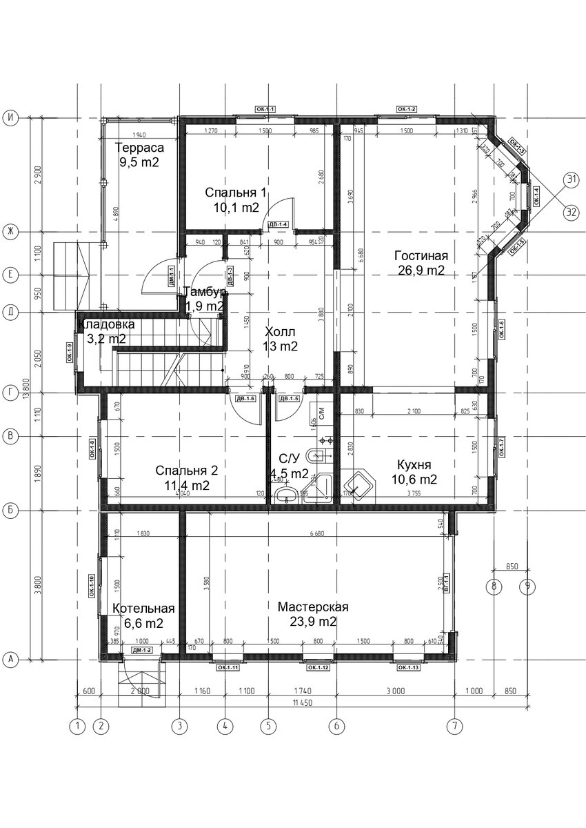
Хотим показать вам каркасный дом по типовому проекту "Борисов". Не огромный, но большой и удобный, 13,8*11 м, 198 кв.м. площади. Эркер для гостиной и место для лестницы делает возможным на небольшой площади разместить 7 спален.
Оглавление
Мы привыкли к тому, что каркасный дом - это чаще всего маленькая загородная дача. И даже если это не дача , а полноценный дом, он все равно будет маленький.

Хотим показать вам каркасный дом по типовому проекту "Борисов".

Ссылка на проект здесь →→→

По интересному стечению обстоятельств фамилия клиента Борисов, но проект выбран по другим причинам. Разбираемся в плюсах.

Фасад
Фасад

Планировки

Дом, размером 13,8*11,4 м, с террасой 9,5 кв.м. Площадь - 197.7 м.кв. не такая уж и большая, но планировка поражает компактностью. Тамбур, ведущий в холл, открывает первый этаж. Здесь гостевая спальня, гостиная-кухня, разделенная визуальным порталом, спальня, с/у 1-го этажа. Очень удобная лестница с кладовой расположена идеально – во входной группе. Она не занимает много места и не режет площадь холла и гостиной. Также предусмотрен гараж с котельной. Второй этаж насыщен спальнями – здесь их пять, причем площадь достаточна, и есть общее пространство холла. Всего 7 спален на дом: на каждый день недели😂

Рассмотрите подробную спецификацию "Борисова" на сайте →→→

1 этаж
1 этаж
2 этаж
2 этаж

Именно расположение лестницы и наличие эркера делают возможным простор при таком количестве комнат.

-4
-5

Технология

Дом в классическом стиле, с утеплением 200 мм, в двойном каркасе на свайно-забивном фундаменте. Внешняя отделка - виниловый сайдинг. Крыша металлочерепица – цвет шоколад. В цвет кровли и торцевые планки, углы и коммуникации. А также откосы окон и наличники. Внутренняя отделка – комбинированная: вагонка по потолкам, шпунтованная доска по полам,а также листы ЦСП с гидроизоляцией. Стены частично в имитации бруса, частично " под обои". В "мокрых местах" - гипсоволокнистый лист влагостойкий под будущую плитку.

-6

Широкий участок и большая семья даже из нескольких поколений - необходимое условие для проекта такого масштаба. Если конечно, вы просто не захотите иметь спальни на каждый день недели.

Смотреть проект на сайте →→→

-7

Подписывайтесь на наш дзен-канал! Есть вопросы по строительству? Звоните: +7-495-660-83-34