Добавить в корзинуПозвонить
Найти в Дзене
4living

Однушка с зимним садом. Вариант 2

Первый вариант перепланировки, предложенный дизайнером Татьяной Клемье опубликован в предыдущей нашей статье. Предлагаем второй вариант перепланировки той же самой квартиры. Зимний сад Подготовка балкона. Для того чтобы создать на балконе зимний сад, нужно провести три фундаментальные операции: остеклить его, утеплить и оформить соответствующий интерьер. Желательно также приобрести кондиционер, чтобы поддерживать в зимнем саду постоянный климат.  Варианты создания зимнего сада: Очень важно, чтобы место, где вы хотите создать зимний сад, было хорошо освещено, было теплым и защищено от сквозняков. Сложность композиции и объем зимнего сада будет зависеть от площади, которую вы сможете выделить для балконных прерий. И, конечно, от ваших финансовых возможностей. 
Оглавление
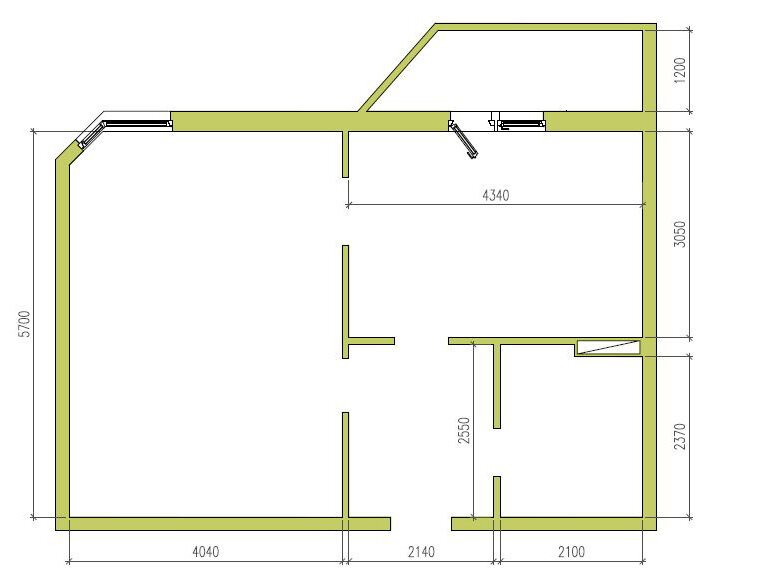
Исходная планировка однокомнатной квартиры.
Исходная планировка однокомнатной квартиры.

Первый вариант перепланировки, предложенный дизайнером Татьяной Клемье опубликован в предыдущей нашей статье.

Предлагаем второй вариант перепланировки той же самой квартиры.

2 вариант дизайн-проекта однокомнатной квартиры: в гостиной появляется место для рабочего столика.
2 вариант дизайн-проекта однокомнатной квартиры: в гостиной появляется место для рабочего столика.

Зимний сад

Подготовка балкона. Для того чтобы создать на балконе зимний сад, нужно провести три фундаментальные операции: остеклить его, утеплить и оформить соответствующий интерьер. Желательно также приобрести кондиционер, чтобы поддерживать в зимнем саду постоянный климат. 

На балконе можно устроить зону отдыха в виде кованой скамьи с мягкими подушками. Не забудьте дополнить ее журнальным столиком и продумать освещение.
На балконе можно устроить зону отдыха в виде кованой скамьи с мягкими подушками. Не забудьте дополнить ее журнальным столиком и продумать освещение.

Варианты создания зимнего сада:

  1. Самый простой и мобильный вариант — взять растения в горшках и разместить их на подставках с колесиками.
  2. С помощью кладки создаем клумбу непосредственно на полу. Облицовываем декоративным камнем, размещаем гидроизоляцию и дренаж, засыпаем грунт и высаживаем растения.
  3. С помощью кладки или искусственных камней (используют для создания альпинариев) имитируем горку с углублениями или уступами для цветов и облицовываем декоративным камнем. На один уз уступов можно поместить комнатный фонтан. В зимнем саду можно использовать любые интерьерные фонтаны. Остальную площадь декорируем цветами. 
Зимний сад с каменной кладкой, уступами и тропическими растениями.
Зимний сад с каменной кладкой, уступами и тропическими растениями.

Очень важно, чтобы место, где вы хотите создать зимний сад, было хорошо освещено, было теплым и защищено от сквозняков. Сложность композиции и объем зимнего сада будет зависеть от площади, которую вы сможете выделить для балконных прерий. И, конечно, от ваших финансовых возможностей.