Найти в Дзене
Теремок с оКошками

Строительство своего дома (продолжение)

Два этажа или один.

Итак, определившись с тем, какие помещения у нас будут в доме, мы стали думать над вопросом - два этажа или один. Строительные фирмы в один голос уверяли, что два этажа - это самый лучший вариант. Хорошо, уговорили. Будем строить два этажа.

Сколько я вариантов в инете пересмотрела - не в сказке сказать, не пером описать. Сколько я вариантов нарисовала в Кореле - тоже трудно поддаётся исчислению. Пол года я искала и рисовала, читала про плюсы и минусы.

Вот парочка моих варинатов:

В общем и целом я выяснила для себя, что:

  • любые эркеры/выступы стоят дополнительных денег,
  • самая дешёвая крыша - односкатная,
  • если делать двускатную, то дом только в форме прямоугольника,
  • коридоры отнимают полезные метры и стоят денег,
  • лестницы отнимают полезные метры и стоят больших денег,
  • любое отклонение от стандарта в форме и размере окна стоит денег,
  • разнос мокрых зон по всему дому стоит денег.

И это всё актуально для любого дома из любых материалов!

В конце концов, объехав кучу домов и офисов строительных фирм мы поняли, что дом у нас будет одноэтажный и из сип-панелей.

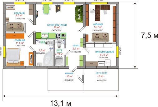
Окончательный вариант дома.
Окончательный вариант дома.

Почему мы сделали такой выбор?

Потому что самые дешёвые в плане строительства каркасные дома и дома из сип-панелей.

Влезать в дикие долги и строить конуру "на века" из кирпича - это садомазохизм в квадрате. А конуру потому, что за дом в 100 квадратов запрашивают просто нереальные деньги! Как будто кирпичи из золота высшей пробы!

Из бруса мы не захотели, потому что в нём не разбираемся. И отличить просушенный от сырого не сможем. Зато налюбовались на треснувшие по всей длине брёвна в построенных "хорошими строителями" домах у многих.

Из газо-бетонных блоков тоже не захотели. Там на защиту стен внутри и снаружи много денег потребуется. Не сильно то и дешевле они кирпичных.

Да и строить "на века" желания нет. Просто потому что дома морально устареют гораздо раньше. Сегодня вот такие материалы и планировки. А через тридцать-пятьдесят лет - совсем другие.

И пришли мы к двум вариантам, которые более-менее нам по карману - каркасный дом или дом из сип-панелей.

Каркасные дома довольно сложно контролировать в плане качества. Что там с чем соединили и чем/как утеплили - игра в русскую рулетку. Хотя бы сип-панели, при минимальном наличие мозгов у строителей, более просты и надёжны в плане возведения.

В общем, ещё пол года мы определялись с одноэтажным домом из сип-панелей. Почему так долго? Потому что, как пели в одном любимом мною спектакле: "Выгодно - купить, выгодно - продать, чтоб поменьше дать и побольше взять".

Способы уменьшения затрат на строительство дома без потери качества я опишу в следующий раз.

Выглядеть наш домик будет примерно так:

С просторов инета.
С просторов инета.

P.S. Дорогие читатели. Не стоит пугать меня мышами в стенах и опасностью для здоровья сип-панелей. Во первых, я не считаю мышей идиотами, которые будут жрать пенопласт. И во вторых, я училась в советской школе. И химию с физикой нам преподавали не так, как сейчас. А гораздо лучше.

Так что не тратьте ни моё, ни ваше время.