Добавить в корзинуПозвонить
Найти в Дзене
Realty

Идеальная квартира для большого города.

Что необходимо для комфортного проживания в городе? Частный дом позволить себе может не каждый, поэтому предпочтительный вариант - квартира. Квартира, в которой все есть. И мы, разумеется, нашли для вас такую! Мы предлагаем вашему вниманию шикарную 3-комнатную квартиру в центре Тюмени площадью 120 квадратных метров! Все это великолепие располагается на 7 этаже престижного 9-этажного дома. Подробнее В этой замечательной квартире 2 уютных спальни и гостиная, объединенная с кухней. Имеются 2 санузла, что очень удобно для большой семьи! Весь ремонт выполнен по индивидуальному дизайн-проекту, на материалах тоже не экономили, только экологически чистые и сертифицированные материалы. Потолки высокие - 3 метра, окна просторные и большие, благодаря чему получается хорошее естественное освещение. Что еще есть в доме? Дом очень престижный, а потому у вас будет свой закрытый двор с круглосуточной охраной и видеонаблюдением. В общем, с безопасностью все в порядке! Также можно похвастаться подземн
Оглавление

Что необходимо для комфортного проживания в городе? Частный дом позволить себе может не каждый, поэтому предпочтительный вариант - квартира. Квартира, в которой все есть. И мы, разумеется, нашли для вас такую!

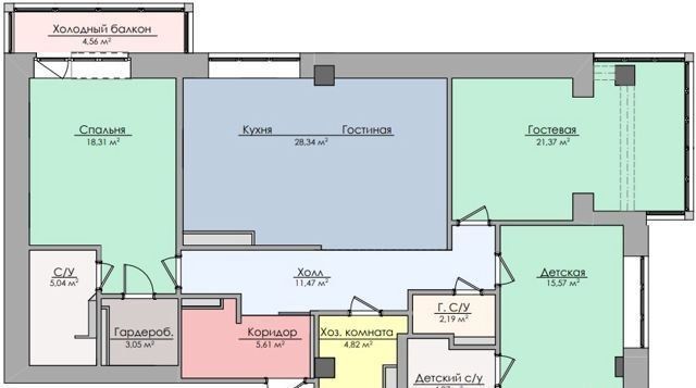
Мы предлагаем вашему вниманию шикарную 3-комнатную квартиру в центре Тюмени площадью 120 квадратных метров! Все это великолепие располагается на 7 этаже престижного 9-этажного дома.

План идеальной квартиры
План идеальной квартиры

Подробнее

В этой замечательной квартире 2 уютных спальни и гостиная, объединенная с кухней. Имеются 2 санузла, что очень удобно для большой семьи! Весь ремонт выполнен по индивидуальному дизайн-проекту, на материалах тоже не экономили, только экологически чистые и сертифицированные материалы. Потолки высокие - 3 метра, окна просторные и большие, благодаря чему получается хорошее естественное освещение.

Спать по-королевски
Спать по-королевски

Что еще есть в доме?

Дом очень престижный, а потому у вас будет свой закрытый двор с круглосуточной охраной и видеонаблюдением. В общем, с безопасностью все в порядке! Также можно похвастаться подземным паркингом с личным машино-местом. Приехали гости? Не беда, имеется гостевая парковка, здесь все продумано! К своей машине вы можете попасть прямиком из подъезда: лифт идет до парковки.

Здесь поместилось все
Здесь поместилось все

Бонусом

В шаговой доступности от вашего дома выход на набережную, а также множество магазинов, аптек, банков. Рядом находятся несколько школ и детских садов. В общем, всей необходимой инфраструктуры.

Держи себя в форме
Держи себя в форме

Попробуйте воспользоваться нашим сайтом banzai72.ru и найти уже готовую квартиру или дом!

Пожалуй, лучший сайт о недвижимости!
Пожалуй, лучший сайт о недвижимости!

P.S Дорогие друзья, подписывайтесь на наш канал, ставьте лайки и пишите комментарии! Мы стараемся для вас!