Добавить в корзинуПозвонить
Найти в Дзене
Z500 Архитектурное бюро

Zx151 Проект современного двухэтажного дома с большой площадью остекления

Zx151 представляет собой проект современного двухэтажного дома с большой площадью остекления. Преимущества проекта Zx151: Проект Zx151 и другие готовые проекты домов с размерами более 150 м2, разработанные компанией Z500 характеризуются удобством планировок, оригинальным дизайном экстерьера и высочайшим качеством. Понравился проект? Пишите комментарии. Посмотреть другие проекты вы можете на сайте.

Zx151 представляет собой проект современного двухэтажного дома с большой площадью остекления.

Преимущества проекта Zx151:

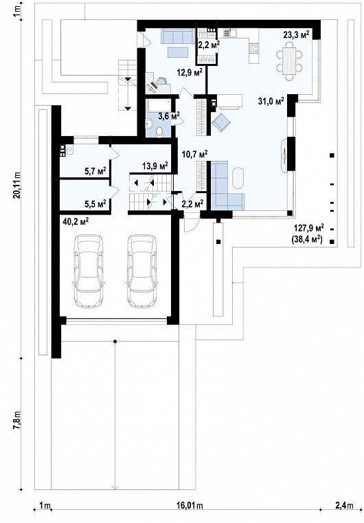
  • Наличие просторного гаража для хранения двух авто является огромным плюсом для больших семей, живущих загородом.
-2
  • Дневная зона благодаря панорамному освещению и совмещению гостиной, кухни и обеденной зоны в одно пространство визуально выглядит еще просторнее.
-3
  • Из каждого помещения дома предусмотрен выход на террасу или балкон, что представляет собой огромное преимущество для тех, кто любит часто проводить время на природе.
  • В зоне сна спроектировано три спальни. Одна комната оснащена просторным гардеробом, индивидуальной ванной и имеет выход на террасу со ступеньками, ведущими в сад.

Проект Zx151 и другие готовые проекты домов с размерами более 150 м2, разработанные компанией Z500 характеризуются удобством планировок, оригинальным дизайном экстерьера и высочайшим качеством.

Понравился проект? Пишите комментарии.

  • Заказать проект можно  ЗДЕСЬ!
  • Все подробности о данном проекте Вы найдете ЗДЕСЬ!

Посмотреть другие проекты вы можете на сайте.