Найти в Дзене

Алюминиевые композитные панели - вентилируемый фасад

Монтаж алюминиевых кассет из композита
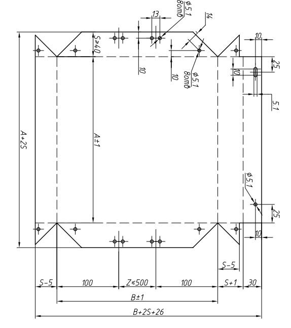
Технологическая карта раскроя композита
Наша компания "Оптима Фасад" предлагает композитные алюминиевые кассеты для фасадов и интерьеров зданий проектов любой сложности с применением систем навесных вентилируемых фасадов, производит работы по изготовлению кассет из алюминия и перфорации с помощью высокоточного оборудования и лазерной обработки листового
Оглавление

Монтаж алюминиевых кассет из композита

Технологическая карта раскроя композита
Технологическая карта раскроя композита

Наша компания "Оптима Фасад" предлагает композитные алюминиевые кассеты для фасадов и интерьеров зданий проектов любой сложности с применением систем навесных вентилируемых фасадов, производит работы по изготовлению кассет из алюминия и перфорации с помощью высокоточного оборудования и лазерной обработки листового материала.

Фасады из композита по типу Alucobond
Фасады из композита по типу Alucobond

Любое решение вашего фасада выполнить работу с композитной кассетой зависит от дизайна-проекта фасада и его геометрии. Мы проводим расчёты конструкции (подсистемы) определяем нужные и экономически правильные размеры кассеты по лицу, предлагаем вариант композита под дерево, металл, камень, зеркальный и медный композит. Вариантов может быть масса!

Проектирование, производство, комплектация и поставка во все регионы Российской Федерации и страны СНГ!

Наша компания работает по всей России, мы ведём поставки по всем городам с креплением композитных листов на открытый тип, закрытый тип или комбинированный вариант, который зависит от реализации конкретного здания!

Виды подсистемы и состав композита

Салазка алюминиевая Оптима-КП
Салазка алюминиевая Оптима-КП

Композитная система состоит из левой и правой (верхней и нижней икли) если мы говорим о реализации здания из алюминиевого композита с простой геометрией фасада прямоугольных кассет по вертикальной или горизонтальной схеме архитектурного решения, или расстановку в шахматном порядке.

Икля левая и правая икля под композитную кассету (панель)
Икля левая и правая икля под композитную кассету (панель)

Любое решение фасада определяется размерами по лицу кассеты и зависит от размеров листового материала (заготовки) под кассету. В случае же открытого крепления - монтаж возможен на заклёпку или вальцовку только части листового формата материала - это все зависит от задачи на фасаде при проектировании.

Запас на изготовление кассеты (скрытое крепление на икли) считает инженер проектировщик или квалифицированный монтажник, который имеет опыт фрезеровки композитных кассет на объекте.

Крепление (раскрой) под иклю. (Монтаж икли)
Крепление (раскрой) под иклю. (Монтаж икли)

Можно выполнить работы как на объекте закупив листы 0,4 мм., композита, чтобы выполнить работу по установке. Однако будьте внимательны при выборе данного материала, вот почему!

Композитные листовые материалы выпускаются сразу в нескольких вариантах по группе горючести от Г1 (Слабогорючие) до Г4 (сильногорючие). Для фасада используется только Г1 или FR, FR+ композитный лист, также есть доработанное решение под FR+ и КОНСТРУКТОР панели (прошел испытания под НГ*)
Виды композитных кассет
Виды композитных кассет

Стоит отметить виды кассет как композитных, так и стального композита, где верхний слой будет выполнен из фактуры под дерево, сталь нержавейку, латунь (бронзу), медь, стареющую сталь (ржавчину) или вообще накатку под камень, любую фактуру УФ-печати.

Собрать такие кассеты по технологии не сложно, все они имеют конструктив простой сборки с простой геометрией, однако если мы говорим про фасады сложных форм (оригами - треугольные фасады, трапеции и.т.д) Сложности возникнут если не проработать такой проект фасада заранее.

Наша компания "Оптима Фасад" выполняет проектирование навесных вентилируемых фасадов из композитных панелей, производит консультации и выезд на объект, проводит испытание на вырыв на объекте и имеет опыт реализации более 50 проектов из композитной кассеты!

Состав подсистемы из алюминия под композит

  • Кронштейн несущий от 70 мм.
  • Кронштейн опорный от 70 мм.
  • Прокладка
  • Профиль вертикальный
  • Профиль угловой (внешний) соединительный ровнополочный
  • Икля левая
  • Икля правая
  • Ползун или салазка
  • Заклёпка под узлы соединения кронштейна и профиля
  • Заклёпка для крепления икли с салазкой
  • Анкеры

В оцинкованных подсистемах с окрашиванием и нержавеющих конструкциях применяется такой же конструктив, только кронштейн как правило определяется по проекту одного состава по пятке несущей. Также конфигурация салазки выполнена по типу С-образной вставки скользящей по С-образному профилю на встречу друг-другу.

Крепление композита на  F-профили из алюминия
Крепление композита на F-профили из алюминия

Вариант имеет места быть и крепежа стаканного типа (бортовое крепление кассеты с торца) или установка на заклёпку (открытый тип крепления листового материала.

Заказать комплектующие под композитную подсистему можно у нас со склада в Москве, есть магазин где можно посмотреть стенды и определить тип удобного крепления или посоветоваться с инженером-проектировщиком.

Композит - под золото*
Композит - под золото*

Как правильно замерять кассету под композит

Заказать нужный оттенок этого изделия под золото с отделкой фасада или интерьера очень просто, нужно знать краевое расстояние от левого угла здания до входной группы или окна (проёма витража, окна, конструкции) чтобы определить его - можно провести геодезическую съемку и построить развёртки фасада правильно или замерять лазерной рулеткой или вообще отмерять рулеткой ручной (что крайне не удобно при замере фасада)

Впрочем, композит бывает не только фасадный, а ещё применяется:

  1. Как рекламный для баннеров
  2. Как отделочный или интерьерный
  3. Как декоративный для откосов и отливов
  4. Для подшивки цоколя и потолков
  5. Для отделки стен
  6. Изготовления вывесок и рекламы
  7. Отделки транспорта