Добавить в корзинуПозвонить
Найти в Дзене
Мир инженера

Кронштейн анкерный

В этой статье также будем говорить о кронштейне, но только чуть другой конструкции и он будет называться кронштейн анкерный.
Из чего же состоит кронштейн анкерный, и какие материалы используются для его проектирования и строительства? Для наглядности и понимания, прикладываю чертеж.

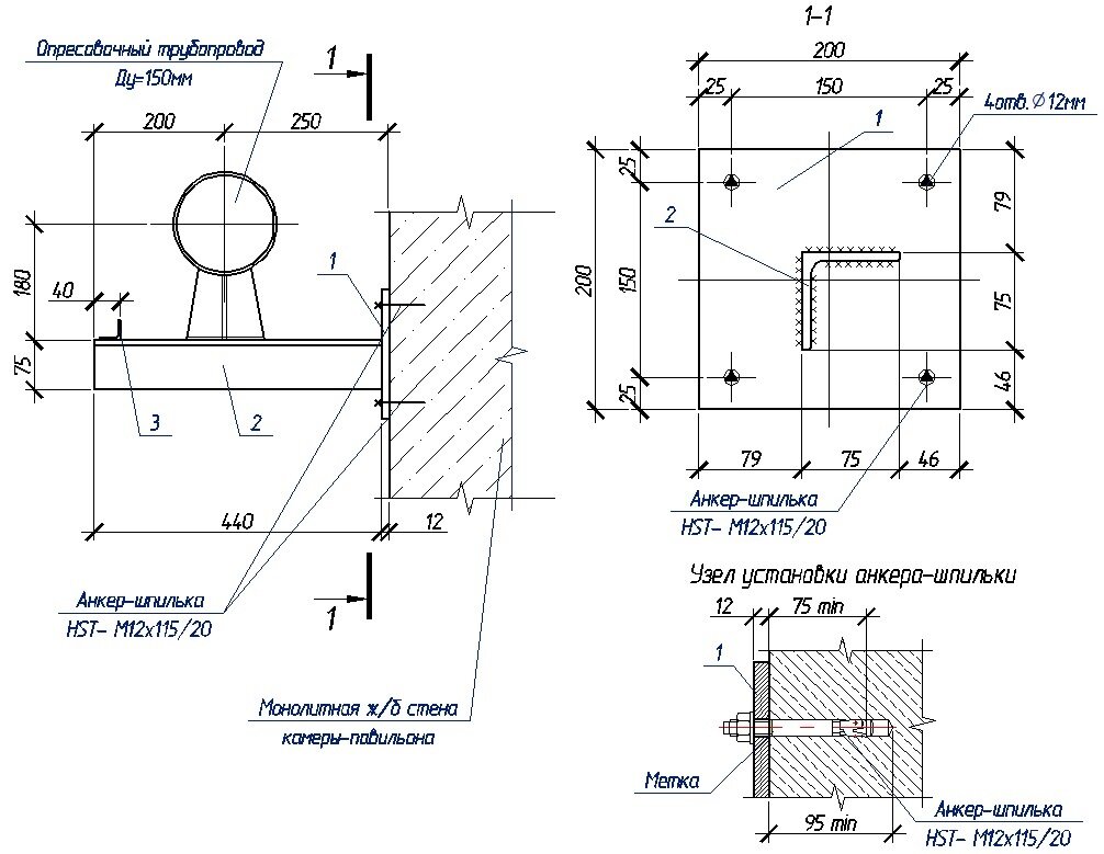
В прошлой статье, я рассмотрел один из вариантов кронштейна для трубопроводов (см. статью “Кронштейн для труб”). В этой статье также будем говорить о кронштейне, но только чуть другой конструкции и он будет называться кронштейн анкерный.

Из чего же состоит кронштейн анкерный, и какие материалы используются для его проектирования и строительства? Для наглядности и понимания, прикладываю чертеж кронштейна.

Чертеж кронштейна
Чертеж кронштейна

Аналогично предыдущей статье, главные элементы кронштейн настенный:

1) 1 – стальной лист по ГОСТ 19903-2015

2) 2 – уголок 75х75х7 вес 1 метра составляет 7,96 кг.

3) 3 – уголок 32х32х4 вес 1 метра составляет 1,91 кг.

4) 4 – анкер шпилька 4 штуки, так как крепится к стене на 4 отверстиях.

Кронштейн анкерный (спецификация)
Кронштейн анкерный (спецификация)

Кронштейн на стену крепится стальным листом и анкерами. К стальному листу приваривают уголок. Данный кронштейн, очень похож на предыдущий кронштейн для труб, только этот кронштейн для крепления на стену используют анкера, поэтому и возникло название кронштейн анкерный. Его также можно использоваться как кронштейн для кондиционера, так как анкерный кронштейн очень надежный.

ГОСТ 8509-93 Уголки стальные горячекатаные равнополочные очень удобен тем, что в нем есть вес для всего сортамента уголков, которые производятся и поставляются на объекты в нашей стране. Так что всегда рекомендую и советую работать с нормативной литературой, чтобы было понимание, откуда и что берется. Без этого в нашем деле никак нельзя.

Класс прочности стали по ГОСТ 27772-2015 для этого случая используется С235, конструктора решили, что этого вполне хватает, так что смотрите ГОСТ 27772-2015 Прокат для строительных конструкций. Общие технические условия.

Где массы уголков смотреть, мы подробно разобрали в прошлой статье, но забыли поговорить про массу стального листа.

Масса стального проката

Сейчас это исправим. Масса стального листа определяется так:

m = V*ρ

V = S*h

Объем же, вполне соответствует перемножению всех сторон листа a*b*c.

Так что чтобы найти массу стального листа надо все стороны и высоту (толщину) стального листа перемножить и умножить на плотность металла. Плотность стали равна 7,85 г/см3, либо 7850 кг/м3.

Анкер шпилька

Для крепления нашей металлической конструкции к стене используется анкер шпилька, которую подбираем из каталога Hilti. Для нашего случая подходит анкер шпилька Hilti HST M12x115/20, вот ее и будем закладывать в проект.

Так как, данная опора разрабатывалась в 2015 году, скажу сразу, что с 2016 года компания Hilti обновила линейку механических распорных анкеров Hilti HST (см. письмо на сайте Hilti исх.№07541 от 01.05.2016г.). Теперь обозначение Hilti HST заменяется на Hilti HST3, которое имеет увеличенное значение несущей способности, уменьшенные минимальные краевые и межосевые расстояния по сравнению с анкерами HST.

Так что, наш анкер шпилька Hilti HST M12х115/20 заменяется на HST3 М12х115 40/20.

Дополнительные объемы работ и пояснения

Что можно добавить к вышесказанному?

  1. Опору устанавливать с шагом не более 4,0 м.
  2. Сварку производить электродом Э-42А ГОСТ 9467-75*. Сварные швы выполнить по ГОСТ 5264-80*.
  3. Высоту сварного шва принять равной 6 мм.
  4. Металлоконструкции окрасить кремнийорганической краской КО-8101.

Вот такой вот нехитрой конструкции получился кронштейн настенный для крепления труб.