Добавить в корзинуПозвонить
Найти в Дзене
Мир инженера

Кронштейн для труб

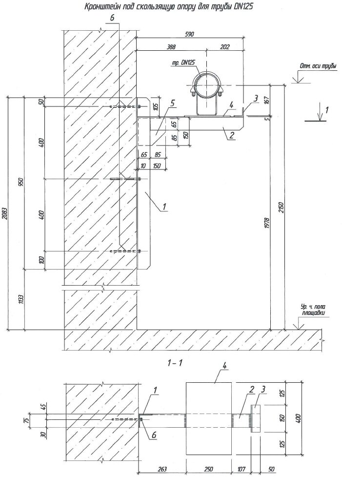
Когда я слышал, слово кронштейн, у меня всегда возникала аналогия, что это нечто подобное как кронштейн для полки на стене, либо кронштейн для микроволновки. Для понимания, чтобы все было не на словах и по делу, приведу чертеж кронштейна и вид сборку на кронштейн настенный.

Часто встречаются в последнее время возникают ситуации, когда необходимо предусматривать кронштейн для трубопроводов. Когда я слышал, слово кронштейн, у меня всегда возникала аналогия, что это нечто подобное как кронштейн для полки на стене, либо кронштейн для микроволновки. Для понимания, чтобы все было не на словах и по делу, приведу чертеж кронштейна и вид сборку на кронштейн настенный из одного проекта.

Из чего же состоит кронштейн, и какие материалы используются для его проектирования и строительства?

Кронштейн для труб
Кронштейн для труб

Как мы видим по рисунку или чертежу кронштейна, он состоит их уголков – это позиции 1, 2, 3, которые крепятся к стене и держатся, за счет крепления под названием самоанкерующийся болт (позиция 6), также стальных листов – позиции 4, 5. Все металлические части кронштейна покрываются антикоррозионной эмалью, а отверстия в стене заделываются цементом.

Для данного чертежа кронштейна используются:

1) Уголок 75х75х5 вес 1 метра которого составляет 5,80 кг.;

2) Уголок 50х50х5 вес 1 метра которого составляет 3,77 кг.;

3) Болты самоанкерующиеся распорные БСР ГОСТ 28778-90;

4) Стальной лист ГОСТ 19903-2015.

Спецификация кронштейна для труб
Спецификация кронштейна для труб

Уголок 50х50х5

Как же я определил вес уголка 75х75х5 за метр и вес уголка 50х50х5 за метр и откуда такие цифры? Все на самом деле очень просто, и Вы сами самостоятельно научить сейчас, определять массу уголков.

Есть ГОСТ 8509-93 Уголки стальные горячекатаные равнополочные, в котором в таблице 1, указан параметр b – это и есть размер уголка, а параметр t – толщина уголка. Для примера, уголок 50х50х5 – находим параметр b со значением 50 мм и значение толщины t равное 5 мм и в самом последнем столбике этой таблицы масса уголка 50х50х5 длиной в 1 м составляет 3,77 кг.

Если же требуется найти вес уголка 50х50х5 длиной L=200 мм, что составляет 0,2 м при переводе из мм в м, то получаем:

3,77 кг * 0,2 м = 0,754 кг.

Аналогично, можно посчитать и заполнить вес уголков, для всей таблицы спецификации.

Еще скажу пару слов, про прокат для стальных конструкций. Класс прочности стали по ГОСТ 27772-2015 для данного случая используется С245, про который более подробно почитайте в ГОСТ 27772-2015 Прокат для строительных конструкций. Общие технические условия.

Из подобных уголков возможно даже самому сделать, например, кронштейн для кондиционера или кронштейн для колонок, это выйдет гораздо дешевле, нежели покупать кронштейн настенный. Будет нечто подобное уголок кронштейн.

Самоанкерующийся болт

Болт самоанкерующийся распорный - БСР имеет свой стандарт ГОСТ 28778-90 Болты самоанкерующиеся распорные. В ГОСТ всего 8 типоразмеров БСР от М6х65, до М24х300. В данном примере используется самоанкерующийся болт М12х110 с заклинивающим элементом (ЗЭ) исполнения УЗ, которое применяется для фундаментных болтов. М12 значит, что номинальный диаметр резьбы составляет 12мм, а 110 – это длина болта (L), а длина заклинивающего элемента 75мм. Все размеры даны в этом ГОСТ, включая и вес болтов 1000 шт. Такие вот болты для крепления кронштейна довольно популярные.

Сталь листовая ГОСТ 19903-2015

Для данного кронштейна используются 2 стальных листа толщиной оба по 5 мм и размерами 250х400 и 150х150 мм с классом прочности стали С245. Что еще добавить, они свариваются к уголкам, как это видно по чертежу.

Надеюсь, что статья вышла интересной и познавательной. И вы самостоятельно уже узнали, сколько весит уголок 75х75х5 1 метр в длину.

Данных материалов вполне достаточно, чтобы сделать кронштейн для крепления труб.

Надеюсь, понятно теперь стало, что же такое кронштейн настенный.