Найти в Дзене

Звукоизоляция в новостройке 100 кв.м. за 1 млн.руб.!

Сколько может стоить грамотная звукоизоляция в квартире нового монолитного дома? Именно таким вопросом я и задался, так как на начальном этапе реализации проекта квартира с "головой" решения по звукоизоляции также относятся к инженерным и просто обязаны быть выполнены хотя бы в каком-то минимальном объеме. Но, обо всем по порядку.

Сколько может стоить грамотная звукоизоляция в квартире нового монолитного дома? Именно таким вопросом я и задался, так как на начальном этапе реализации проекта квартира с "головой" решения по звукоизоляции также относятся к инженерным и просто обязаны быть выполнены хотя бы в каком-то минимальном объеме. Но, обо всем по порядку.

Комплекс решений по звукоизоляции от Acoustic Group.
Комплекс решений по звукоизоляции от Acoustic Group.

Для подсчета цены вопроса я обратился в компанию "Акустик Групп" (производитель материала Шуманет и др.). Предоставил им проект квартиры и попросил подготовить решение по звукоизоляции всех зон квартиры с использованием материалов компании и привлечением услуг их профессиональных монтажников. Общая смета (материал + работа) выползла за один миллион рублей, что меня сильно удивило и заставило разбираться, из чего складывается такая цена?

Квартира "с головой". Вид из зоны кухни.
Квартира "с головой". Вид из зоны кухни.

1) Пол в двух детских и спальне родителей.

№3 - родительская спальня, №6 и №10 детские.
№3 - родительская спальня, №6 и №10 детские.

Под стяжку было предложено положить слой звукоизолирующего материала Шумопласт. Это такие маленькие голубые шарики, которые затвердевают на отрытом воздухе через двое суток, образуя единую прослойку толщиной в 2 см между плитой перекрытия и будущей стяжкой. Над слоем шариков Шумопласта должен быть слой обычной стяжки минимум в 6 см.

Сразу сомнение: я планирую менять отопительные приборы на внутрипольные конвектора и, соответственно, будут проложены трубы горизонтальной системы отопления от коллекторного щита к отопительным приборам (трубы пойдут по полу и с учетом изоляции, они явно будут больше 20 мм).

Получается, что слой Шумопласта их не перекроет? А если делать его толще, то тогда вырастет толщина всего пирога стяжки. В районе порога в квартиру высота стяжки будет приблизительно 8-10 см. Не уверен, что решение с Шумопластом мне подойдет, так как поднимать стяжку выше 10 см я бы не хотел. Сейчас высота потолков 3,0 м.

Скорее всего, данное решение подходит для тех случаев, когда поверхность пола свободна от коммуникаций или их толщина не выходит за предел в 20 мм. Но, тем не менее, по материалу на три помещения получилось на 26 719 руб. и по работам 40 205 руб. (в сумме 66 996 руб.).

2) Пол в остальных помещениях (кроме с/у).

№1 - прихожая, №2 - коридор, №4 - гардеробная, №8 - кухня/гостиная, №9 - венткамера.
№1 - прихожая, №2 - коридор, №4 - гардеробная, №8 - кухня/гостиная, №9 - венткамера.

Здесь было предложено уложить на плиту перекрытия просто рулонный материал Шуманет-100Комби толщиной 5 мм. Материал выходил на 22 207,5 руб., а работа на 47,8 квадратах составила бы 40 630 руб. (вместе 62 837,5 руб.).

3) Звукоизоляция полов в двух санузлах.

№5 и №7 - санузлы.
№5 и №7 - санузлы.

Подход аналогичен решению, описанному выше, только используется материал Шуманет-100Гидро. Материал: 4 433,5 руб. Работа: 5 950 руб. (итого 10 383,5 руб.)

4) Потолок в детских комнатах и родительской спальне.

Для отсекания шумов от соседей сверху предложено использовать бескаркасную технологию ЗИПС-III-Ультра. Это сэндвич-панель толщиной 42 мм, плюс к ней идет лист ГКЛ 12,5 мм.

Терять, как минимум, 5 см на опуск для звукоизоляции со стороны потолка не хочется. Вся разводка кабелей и, возможно, вентиляция пойдут как раз под потолком. Это займёт точно 100 мм по высоте. Может быть, не по всей площади потолка (видимо, будут отдельные зоны, где потолок будет занижен), но, все равно, моё мнение, что расходовать 5 см высоты для звукоизоляции потолка в данном случае - непозволительная роскошь.

Материал финишного потолка планируется ГКЛ, который так или иначе будет смонтирован на каркасе из профиля. Мне кажется, имеет смысл подумать о применении какого-то "лайт" решения по звукоизоляции, как раз в рамках этого каркаса.

Цена предложенного решения: материал - 159 261,5 руб., работа (47,3 кв.м.) - 66 220 руб. (итого: 225 481,5 руб.).

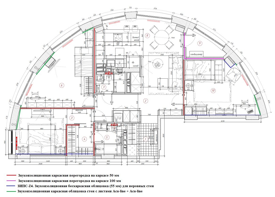
5) Самое востребованное место для звукоизоляции в квартире - смежные стены с соседними квартирами.

Смежные стены с соседями выделены цветом.
Смежные стены с соседями выделены цветом.

Главная неприятность в данной ситуации - это выступающие за предел газобетона прямоугольные колонны. В помещении №3 колонна выступает внутрь помещения на 9 см, а в детской (№10) на 2-3 см.

Выступающие несущие колонны в детской комнате.
Выступающие несущие колонны в детской комнате.

"Акустик Групп" предложили для обоих смежных стен использовать решение на сэндвич-панелях ЗИПС-Z4. Это самое "продвинутое" решение компании для бескаркасной звукоизоляции стен, одновременно с их выравниванием. Только для меня оно никак не подойдет для помещения №3, ибо колонна выступает на 90 мм, а панели ЗИПС-Z4 допускают неровности только до 50 мм.

За счет дополнительных накладок на выступающие опорные элементы данная сэндвич-панель может перекрывать неровности стены в 50 мм.
За счет дополнительных накладок на выступающие опорные элементы данная сэндвич-панель может перекрывать неровности стены в 50 мм.

Если требуется использовать на изолируемой с помощью ЗИПС-Z4 стене розетки-выключатели, компания предлагает специальные подрозетники. Цена на них легко переплюнет стоимость розеток вместе с рамкой от большинства европейских производителей (1 350 руб. - 3 550 руб.), но внешне они выглядят вполне убедительно. Сразу могу сказать, что на каждой из стен в моей ситуации будет, как минимум, по 6 подрозетников.

Для спальни (помещение №3) мне придется планировать каркасную звукоизоляцию, а пока приведу цифры по стоимости решений на ЗИПС-Z4. Материал: 138 361,5 руб. Работа: 61 560 руб. Итого: 199 921,5 руб.

6) Звукоизоляция вентиляционной камеры.

Небольшое треугольное помещение по задумке архитекторов сначала было зимним садом, потом неотапливаемой лоджией. В итоге, выложили ленточку из блоков на полу - делайте здесь, что сами захотите. Я захотел венткамеру.
Небольшое треугольное помещение по задумке архитекторов сначала было зимним садом, потом неотапливаемой лоджией. В итоге, выложили ленточку из блоков на полу - делайте здесь, что сами захотите. Я захотел венткамеру.

На общей с детской комнатой (№10) стене в вентиляционной камере будет смонтирована приточно-вытяжная установка, которая по моей задумке будет включена постоянно, а это какой-никакой шум и вибрация. Специалисты компании подготовили на этот случай решение по сооружению звукоизоляционной каркасной перегородки 100 мм с заполнением плитами Шуманет-ЭКО толщиной 50 мм.

Помимо обшивки каркаса ГКЛ еще предусматривается установка трехслойных панелей Саундлайн-dB. Итого материалы: 52 161,74 руб. Работа: 22 800 руб. В сумме: 74 961,74 руб.

7) Прочая каркасная звукоизоляция внутренних и наружных стен.

Под этот раздел попадают все стены на первой картинке в самом начале статьи, отмеченные красным и зеленым цветом. Конструкции схожие: одинаковые профиля, одно и тоже заполнение звукоизоляционными плитами, но разные по своим свойствам листы ГВЛ.

Получилось, что дополнительная изоляция всех внутренних перегородок тянет на 339 505,54 руб. (материал + работа). А каркасная облицовка наружных стен - 112 741,86 руб.

Подведем итог.

Сводная таблица стоимостей по помещениям.
Сводная таблица стоимостей по помещениям.

Компании "Акустик Групп" большое спасибо. Работа была проделана большая. Видно, что к решению моей задачи они подошли профессионально. То, что получалась такая итоговая стоимость... ну, видимо, такие сейчас цены.

Просто я морально не готов платить миллион за звукоизоляцию. Да кого я обманываю? Я и полмиллиона считаю слишком высокой ценой. Мой сосед сверху, например, вообще не использовал никаких решений по звукоизоляции. Здесь можно сказать так - у каждого свои "фетиши".

Кому-то нужна приточно-вытяжная вентиляция с очисткой воздуха и контролем его параметров, а кто-то может просто держать открытой фрамугу окна. У меня, например, есть такой пунктик в голове, что электрика и сантехника должны быть качественными, немецкими. Звукоизоляция в квартире нужна, это даже не обсуждается. Но за какую цену?

Теперь, когда я сам немного погрузился в эту тему, я хочу собрать альтернативное решение и сравнить их по стоимости. Самый близкий кандидат для этой задачи - это компания Knauf. В любом случае, необходимо учитывать, что в цене решений по звукоизоляции скрывается еще и часть расходов, которую все равно пришлось бы потратить на выравнивание имеющихся стен. Все нужно считать и не по одному разу.

Продолжение следует...