Добавить в корзинуПозвонить
Найти в Дзене

Узкий скандинав 120кв.м. с 3-мя спальнями.

Для любителей планировок скандинавских архитекторов без коридоров.
Фасады дома.

Всем привет! Вы на канале Частный дом и жизнь в нем, подпишитесь

Я не проектировщик и не строитель. Я увлеченный любитель. На канале я собираю понравившиеся мне планировки частных домов под любые условия и нужды людей, которые только собираются строиться. Может быть кому-то помогут мои публикации.

Для любителей планировок скандинавских архитекторов без коридоров.

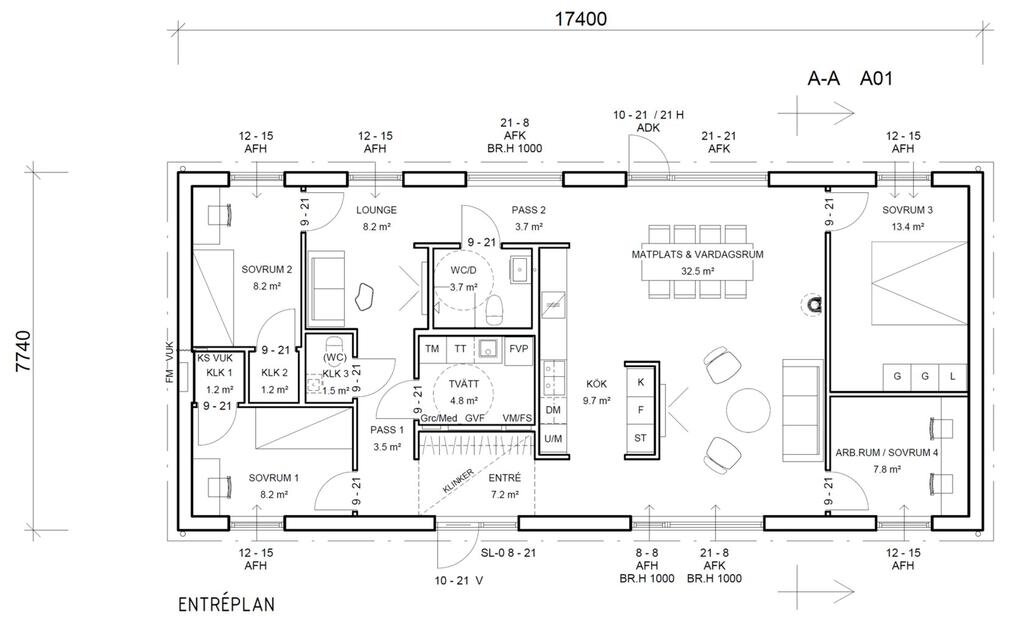
Планировка скандинава:

Планировка дома
Планировка дома

Положительные моменты планировки:

1) Нет коридоров - полезная площадь использована максимально рационально. Эта планировка дома воплощение скандинавской функциональности при минимальных площадях.

2) Большая кухня-гостиная. 32,5кв.м + 9,7кв.м., вместятся не только члены семьи, но и любой праздник вы сможете провести в своем доме, позвать множество родни и гостей.

Кухня-столовая
Кухня-столовая

3) Дополнительная общая комната для детей 8,2кв.м. Помню из детства, когда к нам приходили гости с детьми, то взрослые праздновали в гостиной, а детей размещали в одной из наших детских спален, было тесно, дети сидели на кровати, на полу, на пуфиках. Было бы не плохо иметь общую детскую как раз для таких вот посиделок.

4) спальные комнаты хоть и малых размеров, но у каждой есть встроенный шкаф для одежды и сезонной обуви.

5) Детская часть отделена от взрослых комнат. Очень большой плюс, когда дети уже не грудные, родителям хочется уединиться в своем пространстве, соседство детских спален и взрослой не самое удачное решение.

6) Для тех, кто работает дома, предусмотрен кабинет не большого размер.

7) Если очень узкий участок по фасаду, отличный вариант, ведь вам понадобится участок всего 23,7мх15,74м.

Минусы планировки:
1) Входная группа.
Мне не нравится вход, хочется либо большой навес, либо вход утопленный под крышу, необходим большой гардероб при входе, а не маленький шкаф.

2) Родительская спальная комната с входом из общей зоны гостиной-столовой.

3) Маловаты спальные комнаты для детей, нужно хотя бы 10кв.м. при условии, что есть встроенные шкафы.

-4

Что вы думаете о планировке? Построили бы себе такой дом? Нравятся ли вам скандинавский планировки или все таки это не российский вариант?

Читайте также:

Одноэтажный каркасник 120кв.м. с 3-мя спальными комнатами.

Большой одноэтажный 140кв.м с 3-мя спальнями + 1.

"Растущий" дом