Найти в Дзене

Z77 Проект просторного одноэтажного дома

Экстерьер великолепного песочного оттенка даже визуально придаёт дому теплоты и уюта.

Разработка Z77 представляет проект просторного одноэтажного дома с возможностью обустройства мансарды (при условии внесения в проект соответствующих изменений).

  • Экстерьер великолепного песочного оттенка даже визуально придаёт дому теплоты и уюта. Это настроение поддерживает внутренняя планировка.
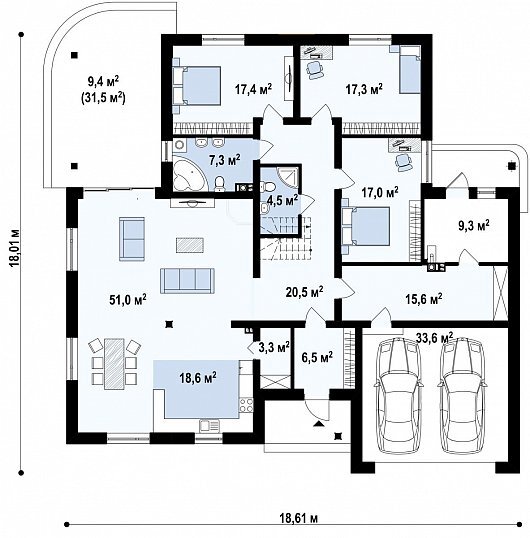
  • Все необходимые помещения спланированы на первом уровне.
  • Дневная зона открытого типа вынесена к фронтальной части.
  • Из гостиной с угловым камином предусмотрен выход на террасу.
-2
  • В дальнем блоке расположена ночная зона.
  • Одно из преимуществ планировки — две ванные комнаты, расположенные у спален.
  • Хозяйственная часть с гаражом и подсобными помещениями спроектирована справа.
  • В данном проекте на мансарде можно устроить помещения по желанию хозяев.
-3

Понравился проект? Пишите комментарии.

  • Заказать проект можно ЗДЕСЬ!
  • Все подробности о данном проекте Вы найдете ЗДЕСЬ!

Посмотреть другие проекты вы можете на сайте.