Добавить в корзинуПозвонить
Найти в Дзене
WORL3D | Сделай сам 🛠

Прощай, интернет по электропроводке! Наконец-то нашёл мощный и доступный по цене роутер, которым доволен на 100%

Некоторое время назад на канале я опубликовал статью с названием "Интернет по электропроводке 220 Вольт, чтобы стены не сверлить. Пользуюсь уже несколько лет". В ней я рассказывал о сложной организации сети у себя в квартире 🤕
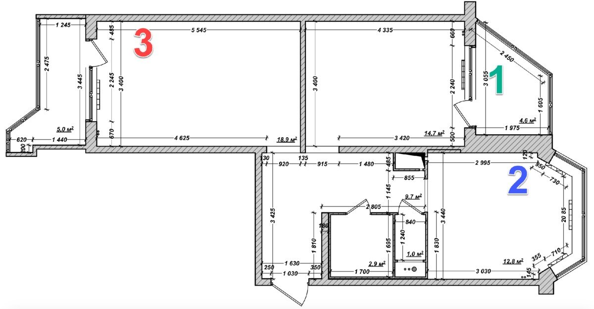
План двухкомнатной квартиры
Ссылку на статью я обязательно оставлю в конце этой публикации. Но если коротко, то суть в том, что я никак не мог получить
Оглавление

Всем привет :) Некоторое время назад я опубликовал статью с названием "Интернет по электропроводке 220 Вольт, чтобы стены не сверлить. Пользуюсь уже несколько лет". В ней я рассказывал о сложной организации сети у себя в квартире 🤕

План двухкомнатной квартиры
План двухкомнатной квартиры

Ссылку на статью я обязательно оставлю в конце этой публикации. Но если коротко, то суть в том, что я никак не мог получить качественный интернет в точке 3. Кабель от провайдера приходит на балкон в точку 1, где установлен главный роутер ASUS RT-N56U и сетевое хранилище с данными (NAS). И его мощности хватает только на данную комнату и немного на кухню.

Wi-Fi роутер ASUS RT-N56U
Wi-Fi роутер ASUS RT-N56U

До кухни (точка 2) проложен кабель и там стоит второй роутер. Его мощности хватает на кухню и коридор с ванной :) К нему ещё подключен коммутатор с PoE портами, к которому подключены две камеры видеонаблюдения.

Эта модель роутера идет со встроенными антеннами, но я не поленился и сделал две внешние антенны, в надежде, что его мощности хватит, чтобы накрыть всю квартиру. Но не тут-то было. В диапазоне 5 Ггц данная модель оказалась никакой, а диапазон 2,4 Ггц забит сетями под завязку.

Поэтому, чтобы обеспечить самую дальнюю комнату (точка 3) интернетом, я решил использовать PLC-адаптеры, благодаря которым данные передаются по обычной электропроводке. Один адаптер я воткнул в розетку рядом с роутером на кухне и соединил их кабелем. А второй адаптер воткнул в розетку в точке 3 и к нему уже подключил третий роутер, а заодно и сетевой принтер и стационарный ПК 😂

На фото вместо роутера подключен коммутатор, но, поверьте, там был ещё и роутер, пока не уехал на дачу :)))
На фото вместо роутера подключен коммутатор, но, поверьте, там был ещё и роутер, пока не уехал на дачу :)))

Но в итоге, мне всё это надоело, так как приходилось постоянно переключаться между Wi-Fi сетями, да и торчащие кругом устройства с проводами не добавляли эстетики. И я решил предпринять ещё одну попытку купить хороший и мощный роутер, который сможет обеспечить нормальный интернет в любой точке квартиры. В первую очередь, в диапазоне 5 Ггц, так как у меня вокруг всего два соседа сидят на этой частоте.

И я его нашёл! Правда этого я не знал на момент покупки, но решил поверить на слово товарищу, который мне его рекомендовал.

Знакомьтесь, Wi-Fi роутер Xiaomi Mi Wi-Fi Router Pro!

Wi-Fi роутер Xiaomi Mi Wi-Fi Router Pro
Wi-Fi роутер Xiaomi Mi Wi-Fi Router Pro

Коробка выглядит очень солидно. Внутри всё самое необходимое. Вот прям только самое необходимое!😀 Роутер, блок питания и мини-инструкция. Даже переходник под европейскую розетку не положили :)) Но меня этим не напугаешь, главное, чтобы он мощным оказался!

Wi-Fi роутер Xiaomi Mi Wi-Fi Router Pro. Внутри коробки.
Wi-Fi роутер Xiaomi Mi Wi-Fi Router Pro. Внутри коробки.

Пока я решил использовать новый роутер в качестве Wi-Fi точки доступа, то есть оставить главным роутером Asus (выключив в нём вай-фай), а Xiaomi будет отвечать исключительно за раздачу интернета по воздуху.

Разместил его в комнате, где установлен Asus, и соединил их кабелем. Внешне выглядит роутер просто отлично, а вот так вообще получились ретро-часы с функцией роутера :))

Настраивается данная модель совсем несложно. Вот самый простой способ, на мой взгляд. Включаем в розетку, но кабель от интернет- провайдера пока не подключаем.

Скачиваем на смартфон приложение MiWiFi. Регистрироваться необязательно, но желательно.

Скачиваем и нажимаем "Настроить новый роутер".
Скачиваем и нажимаем "Настроить новый роутер".

После этого приложение обнаружит роутер (он должен быть включен, но кабель сетевой пока в него НЕ ВТЫКАТЬ!). Можно будет настроить его как новый роутер или как повторитель (меня, напомню, интересовал именно второй вариант).

Что важно, первоначальная настройка происходит через приложение на русском языке и ничего сложного из себя не представляет. Просто вводим желаемое имя для Wi-Fi сети и пароль.

После этого вы сможете зайти на роутер по адресу http://192.168.31.1/ (если настраивали его как новый роутер). Я же зашел по адресу, который ему выдал мой основной роутер.

Сам интерфейс роутера доступен только на китайском языке, поэтому заходить на роутер рекомендую через Google Chrome. Нажимаем правую кнопку на странице с открытым интерфейсом и далее "Перевести на русский".

После этого все китайские иероглифы переведутся на русский.
После этого все китайские иероглифы переведутся на русский.

Теперь вы можете обновить роутер до последней прошивки и поменять каналы для каждого из диапазонов, чтобы выбрать наиболее свободный. Последнее необязательно, но крайне желательно, если у вас вокруг много сетей.

Ну и настал момент истины. Я подключился к роутеру (в диапазоне 5 Ггц) и ушел в самый дальний конец самой дальней комнаты. И запустил тест скорости интернета от Яндекса.

Вот такие скорости я получил через Яндекс.Интернетометр
Вот такие скорости я получил через Яндекс.Интернетометр

В общем, доволен я как слон 🐘! Однозначно рекомендую данное устройство к приобретению. Очень мощная штуковина оказалась 👍

А все эти PLC-адаптеры и шнуры как раз уместились в коробку из под нового роутера :)))

-11

P.S. Вот тут много информации по этому роутеру (без необходимости не советую экспериментировать с прошивками, и так всё отлично работает) - https://4pda.ru/forum/index.php?showtopic=810698

Жмите "палец вверх" 👍 и, конечно, пишите комментарии! 😉 А вот тут ещё много интересногo.