Добавить в корзинуПозвонить
Найти в Дзене
СТРОЙКА по УМУ

Полный проект дома 6х9 всего за 700 рублей

Хотите свой дом? Тогда статья для Вас!
Данный проект отлично подходит как для дачного дома, так и для постоянного проживания.
Внешний вид дома 6х9 м
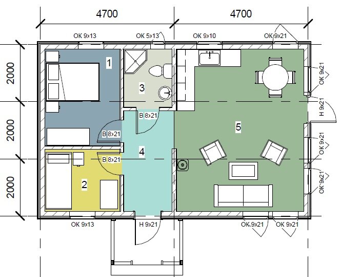
Проект имеет размеры 6000х9400 мм по наружным габаритам. Планировка простая и удобная, подойдет для проживания 3-ех человек:

Хотите свой дом? Тогда статья для Вас!
Данный проект отлично подходит как для дачного дома, так и для постоянного проживания.

Внешний вид дома 6х9 м
Внешний вид дома 6х9 м

Проект имеет размеры 6000х9400 мм по наружным габаритам. Планировка простая и удобная, подойдет для проживания 3-ех человек:

-2

Экспликация помещений:
1 - спальня 9 м2
2 - спальня 6 м2
3 - санузел 3,5 м2
4 - прихожая 6 м2
5 - гостиная-кухня 25,5 м2

Итого общая площадь по помещениям 50 квадратных метров. Площадь двухкомнатной квартиры.

Проект разработан архитектором со стажем более 10 лет.
За основу взят проект строительной компании из Швеции и доработан под условия России, основные изменения касаются размеров используемых пиломатериалов, т.к. в России и Швеции отличаются типоразмеры досок.

Технология строительства - каркасная. Вся рабочая часть по каркасу разработана в соответствии с СП 31-105-2002 Госстроя РФ.

Что входит в проект? Состав проекта видно на фото:

Что входит в проект
Что входит в проект

Проект изложен на 34 листах с раскроем всех стен, перекрытий и крыши.
Так же бонусом к проекту идет полный перечень с объемами материалов для строительства.

Стоимость материалов для строительства этого дома от 500 тыс рублей, зависит от типа фундамента и фасада, т.к. возможны разные варианты.

Внешний вид
Внешний вид

То есть вы получаете полный проект дома 6х9 всего за 700 рублей. Проект уже проверен, по нему был построен дом.
Полностью готовый проект, по которому можно построить дом самому или с помощью бригады.

Для получения проекта напишите мне в ВК https://vk.com/lumenec20

Оставляйте свои вопросы!