Добавить в корзинуПозвонить
Найти в Дзене
veloulregion

Минск представляет типовой проект велогаража

Согласно стратегическому плану развития велодвижения в Минске, в каждом районе города до 2020 года должно быть установлено не менее 7 гаражей для велосипедов. Активно возводят места для длительного хранения велосипедов в Заводском районе города, и, судя по темпам, уже в этом году они выполнят план. Администрации районов сами находят компании для строительства велогаражей. Но пока это довольно специфический рынок, на котором не хватает профессионалов. В итоге, возводимые гаражи не всегда удобны в использовании: велосипеды крепятся за колесо, а расстояние между стойками не позволяет расположить велосипеды у каждой стойки. Также остаются вопросы к внешнему виду строений. Минское велосипедное общество консультирует производителей велогаражей, чтобы они были удобны в использовании. В рамках проекта “Городское велодвижение в Баларуси”, нами был заказан типовой проект велогража, который доступен для скачивания бесплатно. Проект разработан ООО “Аверса-Групп”.  Документы для скачивания Велогара

Согласно стратегическому плану развития велодвижения в Минске, в каждом районе города до 2020 года должно быть установлено не менее 7 гаражей для велосипедов. Активно возводят места для длительного хранения велосипедов в Заводском районе города, и, судя по темпам, уже в этом году они выполнят план.

Администрации районов сами находят компании для строительства велогаражей. Но пока это довольно специфический рынок, на котором не хватает профессионалов. В итоге, возводимые гаражи не всегда удобны в использовании: велосипеды крепятся за колесо, а расстояние между стойками не позволяет расположить велосипеды у каждой стойки. Также остаются вопросы к внешнему виду строений. Минское велосипедное общество консультирует производителей велогаражей, чтобы они были удобны в использовании.

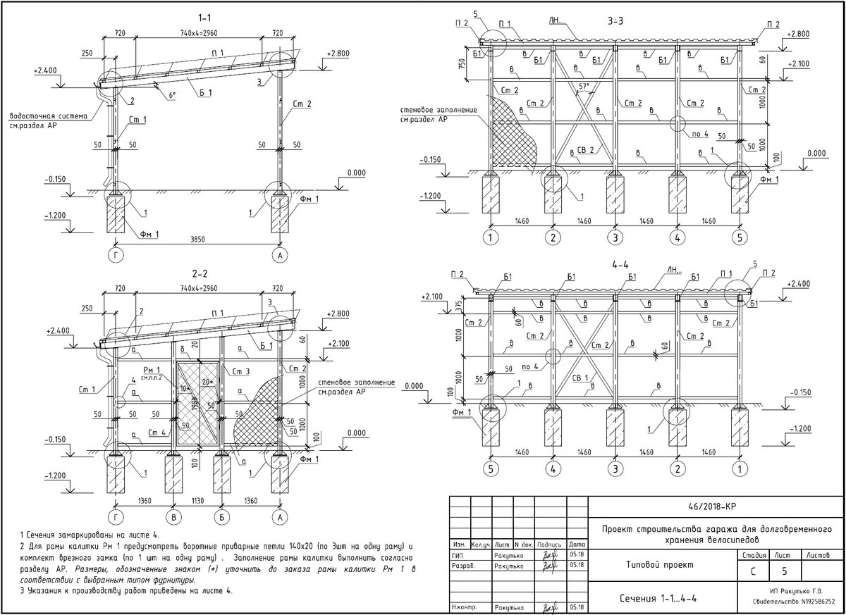
В рамках проекта “Городское велодвижение в Баларуси”, нами был заказан типовой проект велогража, который доступен для скачивания бесплатно. Проект разработан ООО “Аверса-Групп”. 

Документы для скачивания
Велогараж: архитектурные решения
Велогараж: конструктивные решения

Гараж рассчитан на 20 велосипедов, которые можно закрепить к П-образным стойкам. Расстояние между стойками и ширина прохода были взяты из датских рекомендаций для проектирования велогаржей. Внутри можно установить ящик с минимальным набором инструментов и насос. Количество мест может быть увеличено до 40 или 60 за счет удлинения строения.

Стены велогаража были сделаны светопрозрачными, чтобы избежать «неприятных граффити» и увеличить количество естественного света внутри строения. Низ фасада покрыт обработанным деревом, чтобы не допускать попадания грязи внутрь. Наружная отделка строения может быть изменена.

-2