Найти в Дзене
W

Строим дом на склоне: котельная в доме - зло

В предыдущих сериях)) Первый сезон, как вы помните, мы остановились на коробке под временной кровлей. Зиму домик постоял, и за зимние вечера решили окончательно и бесповоротно пристраивать котельную к дому. Перечитали кучу тем, где люди рассказывали о свое жизни в загородном доме и в большинстве своем вердикт один, что котельная в идеале должна быть вне дома. Даже в случае с газовым котлом существуют техногенные звуки которые слышны по ночам. А уж в случае с пеллетным котлом, пришлось бы обивать все стены и дверь звукоизоляцией. Про пеллетный котел упомянул, поскольку газ помахал ручкой... это к вопросу о вере при выборе участка о которой я писал раньше... так что будет у нас пеллетный котел(( Решили совместить котельную и тамбур в пристройке. Как позже оказалось – очень и очень удачно вышло! Потом там разместилась станция очистки воды, бойлер, пеллетный котел с бункером и рабочий стол с кучей стеллажей под инструмент. Вышла вполне себе мастерская, совмещенная с котельной. Загн

В предыдущих сериях))

Первый сезон, как вы помните, мы остановились на коробке под временной кровлей.

Зиму домик постоял, и за зимние вечера решили окончательно и бесповоротно пристраивать котельную к дому. Перечитали кучу тем, где люди рассказывали о свое жизни в загородном доме и в большинстве своем вердикт один, что котельная в идеале должна быть вне дома. Даже в случае с газовым котлом существуют техногенные звуки которые слышны по ночам. А уж в случае с пеллетным котлом, пришлось бы обивать все стены и дверь звукоизоляцией. Про пеллетный котел упомянул, поскольку газ помахал ручкой... это к вопросу о вере при выборе участка о которой я писал раньше... так что будет у нас пеллетный котел((

Решили совместить котельную и тамбур в пристройке. Как позже оказалось – очень и очень удачно вышло! Потом там разместилась станция очистки воды, бойлер, пеллетный котел с бункером и рабочий стол с кучей стеллажей под инструмент. Вышла вполне себе мастерская, совмещенная с котельной.

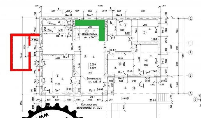
Пристроенная котельная показана красным
Пристроенная котельная показана красным

Загнал трактор и тот за несколько часов сравнял склон в один уровень с площадкой дома.

-2

Фундамент так же – плита. С Фундаментом дома не связан – проложили ЭППС между фундаментами.

-3
-4

Подняли стены. Стены как и фундамент касаются стен дома через проставки из ЭППС

-5

Крышу так же сделали не связанной. Подвели стропила под крышу дома и оставили 5 см. свободного хода. По факту получилось, что оба здания имеют свободный ход и не создаю друг на друга нагрузки.

-6
-7

to be continued...

Надеюсь... полезные советы)))

Выбор участка для собственного дома: правило трех P

Купили дом, который строили на продажу? Готовьтесь к сюрпризам...

Чего бы я не стал делать, если бы строил дом заново))

Муки выбора: одноэтажный или двухэтажный дом строить