Найти в Дзене

Интерьер 4-х комнатной сканди-квартиры с планировкой

Представляю вашему вниманию интерьер реальной квартиры, выполненной в скандинавском стиле. Простые формы мебели, светло - серая гамма делают квартиру очень стильной и светлой. А акценты в виде хромированного под золото смесителя на кухне и большого темно-синего дивана в гостинной придают квартире индивидуальности. Посмотрите сами! Прихожая зона: Сан. узел небольшой по габаритам, но вмещает в себя все необходимое: Кухня выполнена в светлых тонах с деревянными акцентами: Необязательно укладывать фартук плиткой. Тут представлен вариант оформления фартука накладками "под мрамор" как продолжение рисунка столешницы. Привычные икеевские рейлинги можно заменить деревянными крючками по всему периметру кухонного гарнитура: Маленькая и узкая детская комната оформлена таким образом, что вмещает в себя все необходимое для ребенка. Минимализм в отделке стен разбавляет оформление стены в столовой зоне. Тут мы видим очень текстурный и активный рисунок на обоях. Обратите внимание на шторы белого цвета

Представляю вашему вниманию интерьер реальной квартиры, выполненной в скандинавском стиле. Простые формы мебели, светло - серая гамма делают квартиру очень стильной и светлой. А акценты в виде хромированного под золото смесителя на кухне и большого темно-синего дивана в гостинной придают квартире индивидуальности. Посмотрите сами!

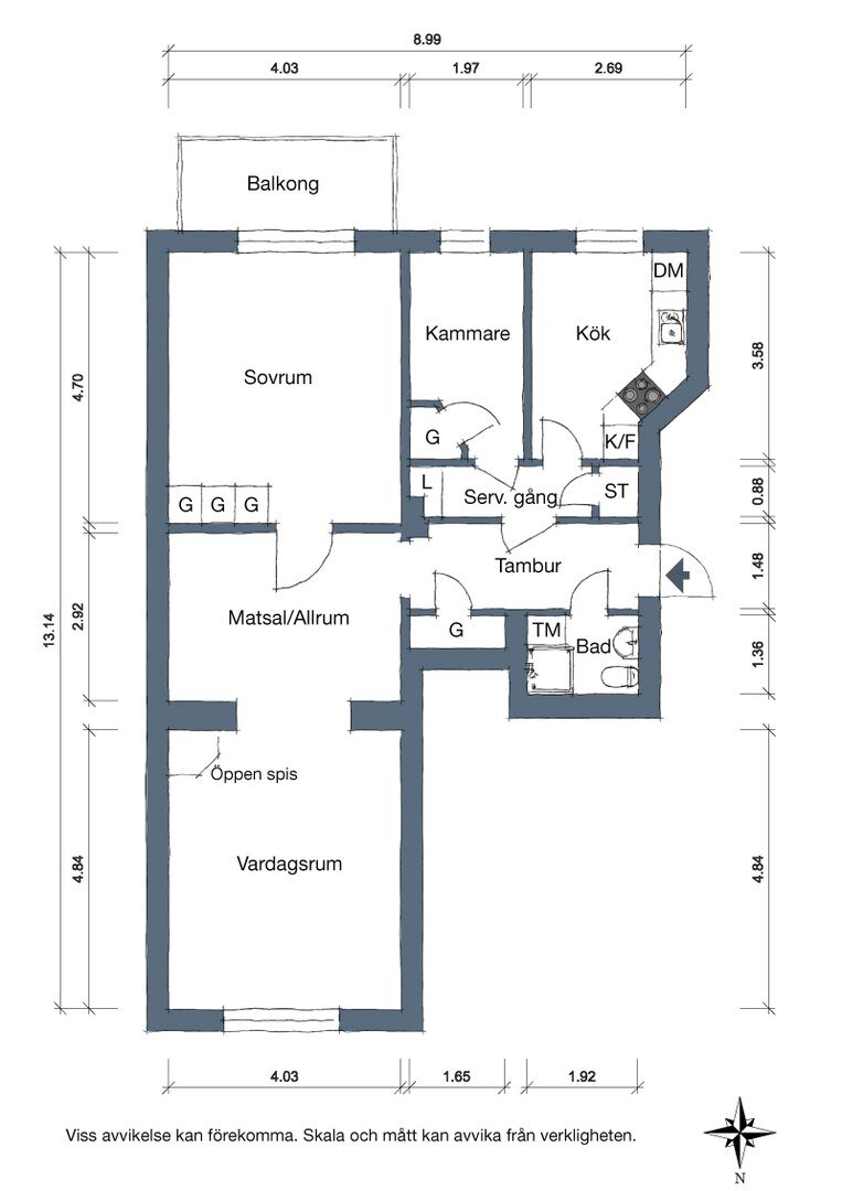
Планировка квартиры
Планировка квартиры

Прихожая зона:

Входная зона прихожей
Входная зона прихожей

Сан. узел небольшой по габаритам, но вмещает в себя все необходимое:

Вид на сан. узел
Вид на сан. узел
Душевая в сан.узле
Душевая в сан.узле

Кухня выполнена в светлых тонах с деревянными акцентами:

Вид на кухню
Вид на кухню

Необязательно укладывать фартук плиткой. Тут представлен вариант оформления фартука накладками "под мрамор" как продолжение рисунка столешницы.

Детали интерьера
Детали интерьера

Привычные икеевские рейлинги можно заменить деревянными крючками по всему периметру кухонного гарнитура:

Деревянные детали в интерьере
Деревянные детали в интерьере
Использование максимум пространства для хранения
Использование максимум пространства для хранения
Вид на кухню и детскую комнату
Вид на кухню и детскую комнату

Маленькая и узкая детская комната оформлена таким образом, что вмещает в себя все необходимое для ребенка.

Детская комната
Детская комната
Детская в спокойных серых тонах
Детская в спокойных серых тонах
Детали интерьера
Детали интерьера

Минимализм в отделке стен разбавляет оформление стены в столовой зоне. Тут мы видим очень текстурный и активный рисунок на обоях.

Вид со столовой зоны на входную дверь
Вид со столовой зоны на входную дверь
Оформление акцентными обоями столовой зоны
Оформление акцентными обоями столовой зоны

Обратите внимание на шторы белого цвета - сколько воздуха и пространства они отдают комнате.

Гостинная
Гостинная
Синий акцентный диван
Синий акцентный диван
Камин придает комнате загородного шарма
Камин придает комнате загородного шарма
Столовая зона
Столовая зона
Детали интерьера
Детали интерьера
Спальня
Спальня
Белые гардины наполняют комнату воздухом
Белые гардины наполняют комнату воздухом
Вид на балкон
Вид на балкон