Найти в Дзене

3 к кв. Интерьер в декоративном камне

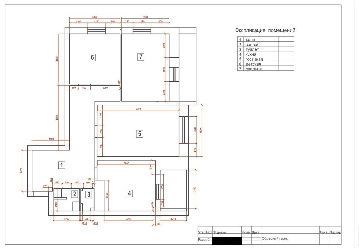
В современном дизайне интерьера все чаще используется отделка стен декоративным камнем и с каждым днем популярность этого материала растет. Стиль лофт, стиль минимализм или современная классика – не важно. Декоративный камень вписывается в любой интерьер. Это может быть частичная отделка стен гостиной, кухни, спальни, облицовка отдельных углов или колонн, либо полностью стены, например, в прихожей или на балконе. Интересным решением может быть отделка арок, оконных и дверных проемов. Декорировать искусственным камнем можно абсолютно любое помещение в квартире или доме, важно правильно подойти к этому вопросу, чтобы камень вписался в общий стиль интерьера, либо стал интересным акцентом. В этой квартире увеличили площадь санузлов за счёт коридора и объединили лоджию с кухней , тем самым увеличив площадь последней. На лоджии при этом поменяли остекление на зимнее, утеплили потолок и сделали электрический тёплый пол. Заказчики пожелали использовать при отделке декоративные матери

Декоративный камень-главная дизайнерская находка отделки квартиры
Декоративный камень-главная дизайнерская находка отделки квартиры

В современном дизайне интерьера все чаще используется отделка стен декоративным камнем и с каждым днем популярность этого материала растет. Стиль лофт, стиль минимализм или современная классика – не важно. Декоративный камень вписывается в любой интерьер. Это может быть частичная отделка стен гостиной, кухни, спальни, облицовка отдельных углов или колонн, либо полностью стены, например, в прихожей или на балконе. Интересным решением может быть отделка арок, оконных и дверных проемов. Декорировать искусственным камнем можно абсолютно любое помещение в квартире или доме, важно правильно подойти к этому вопросу, чтобы камень вписался в общий стиль интерьера, либо стал интересным акцентом.

-2

-3

-4

В этой квартире увеличили площадь санузлов за счёт коридора и объединили лоджию с кухней , тем самым увеличив площадь последней. На лоджии при этом поменяли остекление на зимнее, утеплили потолок и сделали электрический тёплый пол.

Заказчики пожелали использовать при отделке декоративные материалы. В кухне и в прихожей стены отделали декоративной краской и украсили фрагментами из искусственного камня. Благодаря этому, именно кухня и стала уютным и привлекательным местом в квартире, где чаще всего собирается вся семья. И не только поесть:)

-5

Кухня
Кухня

В спальне- декоративные настенные элементы добавили уюта
В спальне- декоративные настенные элементы добавили уюта

Гостинная в минималистском стиле
Гостинная в минималистском стиле

Санузел
Санузел

Уважаемые дамы и господа, друзья! Ставьте палец вверх, если понравился мой опус. Подпишитесь на канал, чтобы не пропускать обновления. Дальше будет еще интересней:)