Найти в Дзене

1 к.кв. Скандинавский стиль

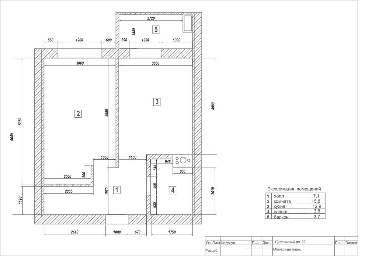
Скандинавский стиль в малогабаритной квартире-наилучшее сочетание полезности используемых площадей с общей эргономикой квартиры. Поэтому требование Заказчика оформить интерьер именно в таком стиле ставит целый ряд задач, для решения которых нужно использовать все современные технологии в строительстве и оформлении жилья. 1. Первоначальный план квартиры сразу предполагал изменения в планировке План квартиры для проведения перепланировки в скандинавском стиле Что было на первоначальном этапе: голые стены и утвержденный Заказчиком план Самое главное требование: особо выделить площади для хранения вещей и увеличение кухни-гостинной по площади без ущерба для остальных помещений. И вот результаты работы дизайнера. Кухня-гостинная. Выполненная в едином стиле холодных оттенков с цветовыми акцентами. Заказчик любит готовить, поэтому основной упор был сделан на качество рабочих поверхностей. В кухне-гостинной установлен полноценный обеденный стол и диван для просмотра большого

Скандинавский стиль в малогабаритной квартире-наилучшее сочетание полезности используемых площадей с общей эргономикой квартиры. Поэтому требование Заказчика оформить интерьер именно в таком стиле ставит целый ряд задач, для решения которых нужно использовать все современные технологии в строительстве и оформлении жилья.

1. Первоначальный план квартиры сразу предполагал изменения в планировке

-2

План квартиры для проведения перепланировки в скандинавском стиле

-3

Что было на первоначальном этапе: голые стены и утвержденный Заказчиком план

-4

-5

Самое главное требование: особо выделить площади для хранения вещей и увеличение кухни-гостинной по площади без ущерба для остальных помещений.

И вот результаты работы дизайнера. Кухня-гостинная. Выполненная в едином стиле холодных оттенков с цветовыми акцентами. Заказчик любит готовить, поэтому основной упор был сделан на качество рабочих поверхностей. В кухне-гостинной установлен полноценный обеденный стол и диван для просмотра большого настенного телевизора

-6

-7

Диван для гостей
Диван для гостей

Обеденный стол с подвесными светильниками
Обеденный стол с подвесными светильниками

Прихожая

-10

На небольшой площади санузла размещены: душевая кабинка, прачечный комплекс из стиральной и сушильной машин

Душевая кабина и прачечный комплекс
Душевая кабина и прачечный комплекс

Большая раковина для умывания

Раковина для умывания
Раковина для умывания

Унитаз с инсталяцией

-13

-14

Спальня украшена панно в скандинавском стиле. Оригинальные подвесные светильники дополняют уют.

-15

Полноценный шкаф-купе помимо гардеробной комнаты также установлен в спальне

-16

Дизайн квартиры и исполнение работ полностью удовлетворило Заказчика.

Подписывайтесь на наш канал и вы узнаете много интересного.

Все работы авторские. Дизайнер продолжает работу и принимает заказы на любые работы связанные с дизайном интерьеров квартир и загородных домой любой площади

Уважаемые дамы и господа, друзья! Ставьте палец вверх, если понравился мой опус. Подпишитесь на канал, чтобы не пропускать обновления. Дальше будет еще интересней:)