Найти в Дзене
dattan

Планировка, которая спасла много нервов

Сегодня я хочу показать на примере одной квартиры важность планировочного решения.Собственно, и сама покупка этой квартиры без предварительно проработанной планировки - скорее случайность... Мы работали с этим человеком не один год, дизайнеров он не боялся). Но после 2014 года была некоторая неразбериха с телефонами, и заказчик на время потерял мои контакты. Когда заказчик позвонил мне и сказал, что нужен дизайн-проект квартиры, первый вопрос который стоял перед нами - планировочное решение. Изначальный план квартиры был таков: Общая площадь квартиры 107 м.кв., жилая 52 м.кв. При входе в квартиру мы попадали в широкий и светлый (пока не было дверей в комнаты 1 и 2) холл, и этим квартира сильно подкупала. Для человека, ее купившего, было очень-очень важно, чтобы жилое пространство было большое, свободное, светлое и открытое. При этом, должны были быть предусмотрены закрытые места для хранения, и две спальни. И мы начали разрабатывать планировочные решения. Обычно это два вариант

Сегодня я хочу показать на примере одной квартиры важность планировочного решения.Собственно, и сама покупка этой квартиры без предварительно проработанной планировки - скорее случайность... Мы работали с этим человеком не один год, дизайнеров он не боялся). Но после 2014 года была некоторая неразбериха с телефонами, и заказчик на время потерял мои контакты.

Когда заказчик позвонил мне и сказал, что нужен дизайн-проект квартиры, первый вопрос который стоял перед нами - планировочное решение.

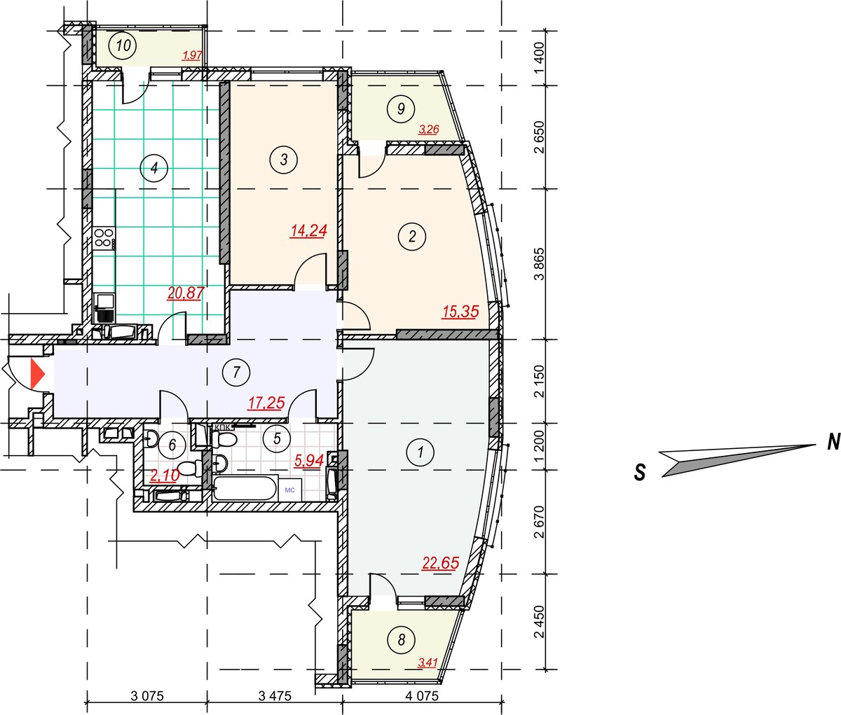
Изначальный план квартиры был таков:

Общая площадь квартиры 107 м.кв., жилая 52 м.кв.

При входе в квартиру мы попадали в широкий и светлый (пока не было дверей в комнаты 1 и 2) холл, и этим квартира сильно подкупала. Для человека, ее купившего, было очень-очень важно, чтобы жилое пространство было большое, свободное, светлое и открытое. При этом, должны были быть предусмотрены закрытые места для хранения, и две спальни.

И мы начали разрабатывать планировочные решения. Обычно это два варианта. и доработка какого-то из них.

Вариант 1.

Совсем небольшая кухня, не привлекающая много внимания, столовая зона и зона гостиной. Две гардеробные для двух спален. Он не зашел сразу, из-за зажатости гостиной и дробления общественной зоны на маленькие помещения.

-2

Вариант 2.

Во втором варианте общественная зона была значительно свободнее, но диван оставался зажат. Слишком сильно "лезть" в несущую стену не рекомендовалось.

-3

Вариант 3.

Перенос кухни - это не самое простое решение. Оно чревато отдельными согласованиями и не всегда возможно. Но мы попробовали.

-4

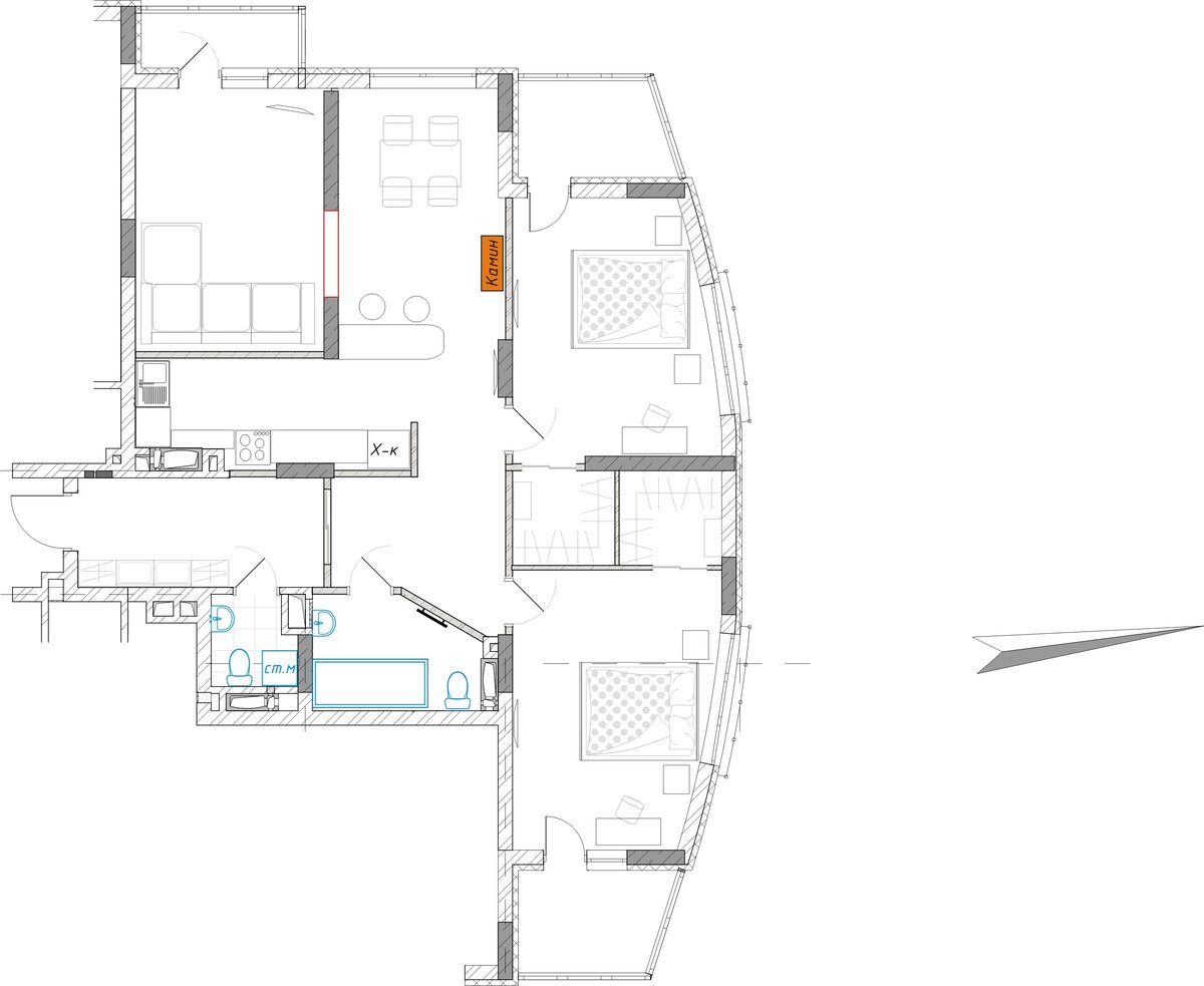
Это уже было ближе к желаемому. и мы решили его доработать.

-5

Мы даже визуализировали чистую планировку, предварительно избавившись от центральной кладовки.

-6

-7

-8

Это чтобы было понятно, какой объем работ был проведен.

Потому что, все наши наработки очень ясно дали почувствовать заказчику одну простую вещь - он будет чувствовать себя в этом квартире, как в туфлях, малых по размеру. Он понял, что привыкнуть к этому не может уже сейчас, и потом лучше не станет. Даже если мы "накрасим" квартире глаза.

И этот дизайн-проект был остановлен на стадии планировочных решений. Заказчик рассчитался снами, и вскоре продал эту квартиру, не потратив на нее годы времени, тысячи денег и километры нервов.

Больше моих проектов https://dattan2.wixsite.com/dattan

По вопросам сотрудничества dattan@rambler.ru

Я на Фейсбуке: https://www.facebook.com/dattanLuhansk/