Найти в Дзене
Журнал "Домовёнок"

Можно ли сделать лодку или катер из фанеры своими руками

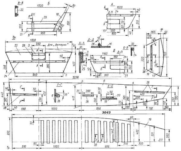
Прежде всего, давайте разберёмся, что называть моторной лодкой, а что – катером, ведь если двигатель будет съёмным, то это классифицируется, как лодка, а если его зафиксировать намертво, то такое плавсредство именуется катером. Как видите, отличия не принципиальные, поэтому речь пойдёт просто о фанерной плавающей конструкции, а вопросы о стационарности крепежа мотора вы уже решите самостоятельно. Что мы будем конструировать Плоскодонные плавающие средства типа «джонбот» очень распространенны на водных магистралях Северной Америки, считаются очень удобными и практичными, но в наших регионах почему-то до сих пор не получили широкого признания. И вот, несмотря на то, что у них относительно низкая цена при отличной плавучести и практичности, их внешний вид почему-то отпугивает покупателей. Тем не менее, давайте посмотрим, как построить лодку или катер такого типа из фанеры или орголита и досок. Варианты корпуса лодки Буква обозначения на схемеНаименование деталиКоличество штук
Оглавление

Прежде всего, давайте разберёмся, что называть моторной лодкой, а что – катером, ведь если двигатель будет съёмным, то это классифицируется, как лодка, а если его зафиксировать намертво, то такое плавсредство именуется катером. Как видите, отличия не принципиальные, поэтому речь пойдёт просто о фанерной плавающей конструкции, а вопросы о стационарности крепежа мотора вы уже решите самостоятельно.

 Фанерная лодка, из которой можно сделать катер
Фанерная лодка, из которой можно сделать катер

Что мы будем конструировать

 Конструкция нашей лодки
Конструкция нашей лодки

Плоскодонные плавающие средства типа «джонбот» очень распространенны на водных магистралях Северной Америки, считаются очень удобными и практичными, но в наших регионах почему-то до сих пор не получили широкого признания. И вот, несмотря на то, что у них относительно низкая цена при отличной плавучести и практичности, их внешний вид почему-то отпугивает покупателей.

Тем не менее, давайте посмотрим, как построить лодку или катер такого типа из фанеры или орголита и досок.

Варианты корпуса лодки

 Наружные кили
Наружные кили
  • В качестве материала для обшивки будем использовать строительную фанеру ФК или ФСФ толщиной 6 мм, а также можно для этого использовать авиационную БС-1, БП-1, БПС-1. Также, для наружной обшивки можно использовать 3-х миллиметровый стеклотекстолит или орголит. (см. также статью Как построить каноэ из фанеры своими руками)
 Обозначение деталей в таблице ниже
Обозначение деталей в таблице ниже

Буква обозначения на схемеНаименование деталиКоличество штукПараметры в ммДлинаШиринаТолщинаАБорт

2

1800

305

25

БКорма

1

864

205

25

ВРаспорка

3

864

100

25

ГСиденье

2

864

254

25

ДПалуба

1

914

305

6

ЕБруски для сиденья

4

254

25

25

ЖРейка решетки

8

1200

50

20

ЗБрусок для палубы

2

200

25

25

ИВесло (заготовка)

1

1200

140

35

КРучка

1

120

30

Размеры и численность нужных деталей

  • Помимо фанеры для реализации проекта нам понадобится обрезная доска толщиной 25 мм, причём её минимальная ширина может быть 305 мм, чтобы соответствовать параметрам, указанным в таблице выше. Конечно, катера из фанеры своими руками не могут претендовать на причисление их к идеальным плавсредствам, но хорошее судно может получиться всегда, если следовать нужной инструкции. (см. также статью Какие бывают размеры листа фанеры )
  • Все детали описываемого катера имеют достаточно простую форму и их легко вырезать, но, тем не менее, существует серьёзная опасность погрешности. Учтите, что даже один лишний или наоборот, недостающий миллиметр той или иной детали может вызвать перекос конструкции или нестыковку по швам. Поэтому, при распиловке тщательно придерживайтесь разметки, особенно, когда работаете дисковой пилой (электроциркуляркой), ведь здесь даже ваш поворот головы во время распиловки может по инерции потянуть за собой и линию реза.
Совеет. Сейчас нужно выбрать доски по виду древесины и для этого, как правило, используются хвойные породы, такие как кедр, лиственница, ель и сосна, но чаще всего доступны два последних.
Здесь опять же возникает синдром «палки о двух концах», так как ель больше подходит для обшивки из-за более низкой водопоглощаемости, но структура дерева такова, что доска может растрескаться от обычного гвоздя, который в неё забивают.
Поэтому вам придётся пожертвовать одним качеством на пользу другого и выбор останется за каждым из вас.
 Ещё один проект джонбота
Ещё один проект джонбота

Цифра обозначения на схемеНаименование деталиКоличество штукПараметры в мм1Киль (крепится клеем и саморезами)220x25x27602Транец из фанеры11320x403x63Транцевая оковка (сплав алюминия)1250x120x1,54Кормовая кница (крепится на гвоздях)2150x150x55Сиденье кормовое (крепится на гвоздях и клее)11170x500x56Листовая обшивка борта23250x440x57Подушка подуключины2150x70x168Подуключина--9Приформовка лентой стеклоткани (1-2 слоя снаружи, 3-4 слоя изнутри--10топтимберс. Крепить к детали 21 медными гвоздями и клеем)-450x60x2011Ьанка гребная (крепить к бортам саморезами через деталь 28)11150x250x2012Приформовка полупереборок--13Носовая полупереборка11020x15x514Сиденье носовое1620x1000x515Кница посовая из фанеры1150x180x516Форштевень (носовой транец)1720x320x517Бимс (приклеить к детали 16)1720x75x2018Рым для фалиня (второй устанавливается на корме)--19Лист для обшивки днища12780x950x520Рейка1870x75x1021Флор11000x60x2022Пиллерс1200x50x2023Планширь склеен из двух реек13400x40x18 (каждая)24Рейка опорная для сиденья11000x20x2025Доска подмоторная11320x190x2026Накладка из фанеры1250x135x827Кормовая полупереборка из фанеры11160x225x528Рейка опорная225x2529Рейка11100x35x2030Проволочная скрепка из меди--

Размеры и численность нужных деталей*

*Пояснение. В тех случаях, где толщина фанеры указана 5 мм, можно использовать также значение 6 мм для фанеры и 3 мм для орголита или стеклотекстолита.
 Такое плавсредство вполне надёжно и рассчитано на 1-2 человек
Такое плавсредство вполне надёжно и рассчитано на 1-2 человек
  • Катер такого типа, как на фото вверху, вряд ли вызовет особые затруднения при его сборке из готовых деталей, ведь они достаточно просты по форме и исполнению. Но полноценным плавающим средством монтируемое устройство сможет стать лишь в том случае, если все элементы будут точно вырезаны и также точно подогнаны друг к другу, что обеспечит пропорциональность и остойчивость судна, а также исключит образование щелей и зазоров.
    Чтобы на срезах досок и фанеры не возникало заусенцев, вам нужно пользоваться острыми инструментами, а также обрабатывать рез рашпилем или наждачной бумагой (шлифовка). (см. также статью
    Особенности шлифованной фанеры)

Покраска

 Олифу нужно кипятить
Олифу нужно кипятить
  • Для обработки собранной конструкции вам потребуется олифа, но покрывать нею древесину вам придётся не в обычном режиме. Для того чтобы жидкость прошла во все стыки и застыла там, образовав своеобразную влагоизоляционную плёнку, её нужно довести до кипения и только после этого наносить на поверхность лодки и в места стыковки деталей.
  • Вам обязательно понадобится щётка, чтобы жидкость проникла в стыки – валика будет недостаточно, и соединения останутся нетронутыми. А вот искусственные или натуральные ворсинки способны занести олифу в зазоры менее миллиметра толщиной. Перед покраской олифа должна высохнуть и на это может понадобиться до 5 суток – не спешите наносить краску до этого времени.
  • Для работы вам понадобятся масляные краски, которые тоже будут долго сохнуть, но такими средствами вы хорошо защищаете древесину от гниения. При оформлении можно разнообразить дизайн судна, например, до ватерлинии покрасить лодку в белый цвет, а выше – в зелёный.

Заключение

После сборки и покраски корпуса катера вам останется смонтировать на него двигатель, как того требует инструкция завода-изготовителя. Чаще всего на плавсредства таких размеров устанавливают подвесные моторы типа «Вихрь», «Ветерок» или «Нептун», так как их можно хранить отдельно от корпуса лодки, обеспечив тем самым сохранность технической части.

Читать далее...

Катера
7974 интересуются