Найти в Дзене
4living

Варшава: квартира 21,5 кв.м

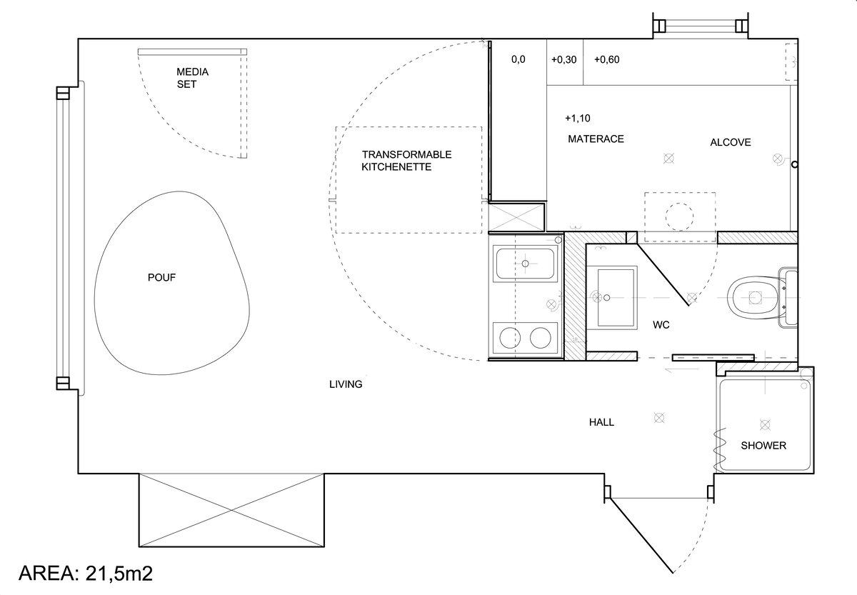
Когда разведенный папа проектирует квартиру для встречи с сыном, он, конечно же, хочет чтобы ребенку в ней понравилось. Но как сделать так, чтобы всем было весело и удобно, если все что у тебя есть – это 21,5 кв. метр?  На первый взгляд, эта малогабаритная квартира вообще слабо пригодна для жилья – всего 21,5 метр. В лучшем случае здесь поместится кровать, санузел и какая-никакая кухня. А поиграть-побегать-пострелять? А ведь это-то и есть самое главное, если квартира строится как плацдарм для встречи разведенного мужчины с сыном. Мальчишке должно здесь очень и очень нравится. Архитектором квартиры стал Якуб Шченсны из варшавской компании Centrala, зарекомендовавший себя большим оригиналом. Якуб сделал из пространства площадью 21,5 кв. метра отличную наноквартирку для двух мальчишек: маленького и большого. «В первую я ориентировался на два окна, что для такого скромного метража – настоящая роскошь». У большого окна он сделал гостиную, вполне приличных размеров – 14 кв. м. К маленько

Когда разведенный папа проектирует квартиру для встречи с сыном, он, конечно же, хочет чтобы ребенку в ней понравилось. Но как сделать так, чтобы всем было весело и удобно, если все что у тебя есть – это 21,5 кв. метр? 

На первый взгляд, эта малогабаритная квартира вообще слабо пригодна для жилья – всего 21,5 метр. В лучшем случае здесь поместится кровать, санузел и какая-никакая кухня. А поиграть-побегать-пострелять? А ведь это-то и есть самое главное, если квартира строится как плацдарм для встречи разведенного мужчины с сыном. Мальчишке должно здесь очень и очень нравится.

Архитектором квартиры стал Якуб Шченсны из варшавской компании Centrala, зарекомендовавший себя большим оригиналом. Якуб сделал из пространства площадью 21,5 кв. метра отличную наноквартирку для двух мальчишек: маленького и большого.

«В первую я ориентировался на два окна, что для такого скромного метража – настоящая роскошь». У большого окна он сделал гостиную, вполне приличных размеров – 14 кв. м. К маленькому – пододвинул кровать, которую оформил в лофт-стиле, на возвышении. Таким образом, он выиграл место для систем хранения и даже стиральной машины. Ну а главная затея – трансформирующаяся столовая-кухня. Когда она не используется это просто элегантный белый куб, ну а стоит открыть дверь и откинуть стол гостиная превращается в весьма симпатичную столовую. Получилось идеально: много места, много веселья, много красок и символичная кухня. Мальчикам большего и ненужно. 

-2

21 метр невозможно поделить так, чтобы не было тесно. Дизайн маленьких квартир предполагает неординарные решения, поэтому архитектор решил отделить только санузел, душ и кровать, которую поднял на подиум. Так ему удалось выкроить целых 14 метров под гостиную, которая "легким движением руки" с помощью откидного стола и превращается в удобную столовую с небольшой кухней. 

-3

Между прочим, сюда запросто можно приглашать гостей. За стол садятся четверо. Когда стол сложен, а дверь не закрыта, она превращается в перегородку отделяющую альков с кроватью от гостиной.  

Больше о проекте читайте на сайте 4living.ru

Статьи на тему:

1. Семья с двумя детьми в трешке: как распланировать пространство?

2. Как спланировать хай-тек-лофт на 43 «квадратах»