Добавить в корзинуПозвонить
Найти в Дзене
4living

Двушка в сталинском доме серии МТ-9

Сегодня сталинские постройки пользуются не меньшей популярностью, чем апартаменты в новых современных домах. Самые привлекательные особенности таких квартир — высокие потолки и отсутствие несущих стен. Эти преимущества позволяют осуществлять самые смелые дизайнерские задумки.  Сведения о квартире: двухкомнатная квартира площадью 53 кв. м на 5 этаже кирпичного 5-этажногосталинского дома серии МТ-9 в центре Киева. Владельцы квартиры: молодой человек. Пожелания клиентов: объединить кухню и гостиную, ванную и санузел, выделить место под гардеробную.  Планировка сталинок позволяет превращать квартиры старого фонда в удобное современное жилье. Как правило, все межкомнатные перегородки в них являются не несушими. А это значит, что можно менять внутреннюю конфигурацию квартир, подстраивая ее под нужды хозяев. Планировка сталинок обычно представляет собой деление квартиры на множество мелких помещений. Дизайнер решила изменить это и визуально максимально расширить жилое пространство. В с

Сегодня сталинские постройки пользуются не меньшей популярностью, чем апартаменты в новых современных домах. Самые привлекательные особенности таких квартир — высокие потолки и отсутствие несущих стен. Эти преимущества позволяют осуществлять самые смелые дизайнерские задумки. 

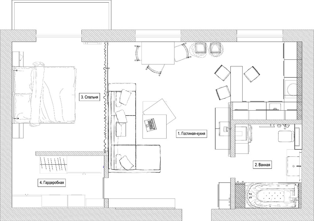
Сведения о квартире: двухкомнатная квартира площадью 53 кв. м на 5 этаже кирпичного 5-этажногосталинского дома серии МТ-9 в центре Киева.

Владельцы квартиры: молодой человек.

Пожелания клиентов: объединить кухню и гостиную, ванную и санузел, выделить место под гардеробную. 

-2

Планировка сталинок позволяет превращать квартиры старого фонда в удобное современное жилье. Как правило, все межкомнатные перегородки в них являются не несушими. А это значит, что можно менять внутреннюю конфигурацию квартир, подстраивая ее под нужды хозяев.

Планировка сталинок обычно представляет собой деление квартиры на множество мелких помещений. Дизайнер решила изменить это и визуально максимально расширить жилое пространство. В соответствии с пожеланиями владельцев квартиры были снесены все перегородки, вместо глухих стен появились или открытые проемы, или стеклянные раздвижные двери. Так запущенная квартира в сталинке получила новую жизнь в виде современного жилья. Интерьер получился светлым и открытым с сочными яркими акцентами. 

-3

Для разделения кухни и гостиной был использован метод визуального зонирования — две разноцелевые зоны выложены разными напольными покрытиями.

-4

Ярко красная стена в ТВ-зоне стала центром квартиры — она привлекает взгляд и придает светлому интерьеру динамику.

-5

Угловое размещение кухни позволило минимизировать загруженность помещения.

Подробнее о проекте квартиры в сталинке читайте на сайте 4living.ru

Статьи на тему:

1. Двушка в стиле прованс: проект Ольги Чебановой

2. Двухкомнатная квартира в современном стиле: мастерская Geometrium