Найти в Дзене
4living

Милан: квартира 15 кв.м

«Как келья» – классический образ маленького тесного и крайне аскетичного пространства. Дизайнер Сильвана Читтерио сумела доказать, что бывшая монастырская комната может быть комфортной и модной.  15 кв. м – площадь, подходящая для монастырской кельи, но никак не для квартиры молодой современной женщины. И все-таки итальянка Сильвана Читтерио, художница и дизайнер, сумела сделать невозможное, а именно превратить бывшую комнату в здании 1900 года постройки, (предположительно это была монастырская гостиница), в полноценную квартиру и доказать, что даже самая маленькая квартира может стать вполне пригодной для жизни. Ей удалось элегантно вписать в нее все необходимое: от большого санузла, до кухни, кровати queen size и … да-да, гардеробной! Эта очень маленькая квартира имеет одно неоспоримое преимущество – она находится в центре старого Милана, среди очаровательных магазинчиков, ресторанов, и основных культурных памятников. Здесь Сильвана ночует в будние дни, ее место работы расположено

«Как келья» – классический образ маленького тесного и крайне аскетичного пространства. Дизайнер Сильвана Читтерио сумела доказать, что бывшая монастырская комната может быть комфортной и модной. 

15 кв. м – площадь, подходящая для монастырской кельи, но никак не для квартиры молодой современной женщины. И все-таки итальянка Сильвана Читтерио, художница и дизайнер, сумела сделать невозможное, а именно превратить бывшую комнату в здании 1900 года постройки, (предположительно это была монастырская гостиница), в полноценную квартиру и доказать, что даже самая маленькая квартира может стать вполне пригодной для жизни. Ей удалось элегантно вписать в нее все необходимое: от большого санузла, до кухни, кровати queen size и … да-да, гардеробной!

Эта очень маленькая квартира имеет одно неоспоримое преимущество – она находится в центре старого Милана, среди очаровательных магазинчиков, ресторанов, и основных культурных памятников. Здесь Сильвана ночует в будние дни, ее место работы расположено буквально за углом.

Ощущения простора на 15 кв. метрах добиться невозможно a priori, но Сильване все же удалось избежать ощущения зажатости и крайней тесноты. Ее рецепт: точный расчет, многоуровневость и поочередное использование разных зон. Поскольку она ночует в квартире чаще всего одна, то легко предположить, что когда она сидит за столом, ей не нужна кухня, а когда готовит – она просто физически не может находиться на подиуме. Это позволило ей сделать часть подиума откидной. Если же муж тоже ночует в городе, то на время готовки, ему приходится ждать и не сновать вверх-вниз по лестнице. Компактность требует жертв. 

-2

Комната, из которой Сильвана сделала квартиру, вид до перепланировки. Совсем недавно здесь помещались только кровать и санузел.

-3

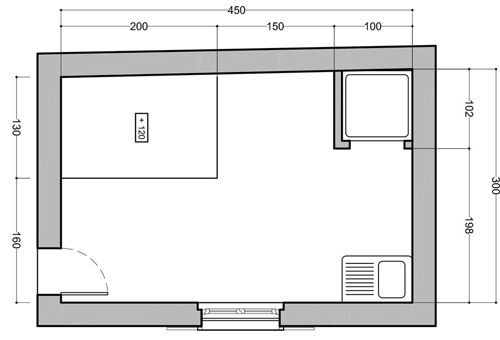
План после перепланировки: в торце расположена ванная, достаточно просторная для такой крошечной квартиры, на оставшихся десяти метрах – все остальное, необходимое для жизни. Справа – французское окно с балкончиком. 

-4

Главный козырь квартиры Сильваны – высокие потолки, это позволило ей разыграть зонирование на двух уровнях. Здесь – план первого уровня (уровень пола): санузел, гардеробная, лесенка на второй уровень. 

Подробнее о проекте читайте на сайте 4living.ru

Статьи на тему:

1. Париж: студия 15 кв.м

2. Скандинавский интерьер на 21 кв. м : проект Виктории Бондарчук