Добавить в корзинуПозвонить
Найти в Дзене
Lestnici

Нормативные требования к лестницам по пожарной безопасности: изучаем ГОСТ и СНиП

СНиП 21-01-97 Знакомство с документацией мы начнем со свода строительных норм и правил. Классификация лестниц Все предназначенные для эвакуации при пожаре лестницы делятся на три типа: При этом лестничные клетки могут быть обычными (типы Л1 и Л2, с открытыми или застекленными проемами в стенах или покрытии) и незадымляемыми. Ко второй категории относятся лестничные клетки типов: В отдельную категорию СНиП выносит конструкции, применяющиеся только для спасательных работ и тушения очагов возгорания. Они могут быть маршевыми и вертикальными. Обратите внимание: приведенные в документе требования к наружным пожарным лестницам ограничивают, в частности, их уклон. Он не должен быть более чем 6:1, или 75 градусов. Пути эвакуации Эвакуационные выходы здания не должны иметь турникетов, вращающихся и подъемно-опускных дверей. Двухуровневые квартиры на высоте больше 18 метров должны иметь как минимум два эвакуационных выхода— по одному с каждого этажа. Все двери по пути из здания долж

 Сегодня нам предстоит изучение нормативной документации
Сегодня нам предстоит изучение нормативной документации

СНиП 21-01-97

Знакомство с документацией мы начнем со свода строительных норм и правил.

Классификация лестниц

Все предназначенные для эвакуации при пожаре лестницы делятся на три типа:

  • Открытые внутренние;
  • Открытые наружные;
  • Размещенные в лестничных клетках внутренние.
 Внутренний лестничный марш в жилом доме
Внутренний лестничный марш в жилом доме

При этом лестничные клетки могут быть обычными (типы Л1 и Л2, с открытыми или застекленными проемами в стенах или покрытии) и незадымляемыми.

Ко второй категории относятся лестничные клетки типов:

  • Н1 — с входом с этажа через открытый переход;
  • Н2 — с подпором поступающего в лестничную клетку воздуха во время пожара;
  • Н3 — с входом через тамбур (выполняющий функцию препятствующего распространению дыма шлюза). Подпор воздуха в тамбуре может быть постоянным или организуемым при возгорании.

В отдельную категорию СНиП выносит конструкции, применяющиеся только для спасательных работ и тушения очагов возгорания. Они могут быть маршевыми и вертикальными.

Обратите внимание: приведенные в документе требования к наружным пожарным лестницам ограничивают, в частности, их уклон. Он не должен быть более чем 6:1, или 75 градусов.

 Комфортабельность пользования маршем при разных уклонах
Комфортабельность пользования маршем при разных уклонах

Пути эвакуации

Эвакуационные выходы здания не должны иметь турникетов, вращающихся и подъемно-опускных дверей. Двухуровневые квартиры на высоте больше 18 метров должны иметь как минимум два эвакуационных выхода— по одному с каждого этажа.

Все двери по пути из здания должны открываться в направлении предполагаемой эвакуации. Исключение — двери квартир и прочих помещений, в которых может одновременно находиться не больше 15 человек.

 Двери должны открываться в направлении эвакуации
Двери должны открываться в направлении эвакуации

Пути эвакуации должны иметь ширину не менее одного метра для помещений, в которых одновременно пребывает до 50 человек, и 1,2 метра для помещений с одновременным пребыванием большего количества людей. Впрочем: инструкция в нормативном документе допускает ширину эвакуационных путей всего в 70 см, если они ведут к отдельному рабочему месту.

Пол на пути эвакуации не должен иметь выступов и перепадов высоты более 45 сантиметров. При большей высоте перепад снабжается лестницей с тремя и более ступенями или пандусом с уклоном не более 1:6. Если эвакуационная лестница выше 45 см, она должна снабжаться ограждением и перилами.

Эвакуация по лестницам

В отдельном разделе СНиП изложены  пожарные требования к лестницам на путях эвакуации.

 Эвакуация при пожаре
Эвакуация при пожаре

Минимальная ширина лестничного марша имеет следующие значения:

Описание помещенияШирина лестницы, смДетские сады, ясли, спальни интернатов, дома престарелых и прочие помещения, в которых могут находиться люди с ограниченными физическими возможностями135Здания с количеством людей на одном этаже (кроме первого) больше 200120Прочие здания90

 Минимальная и оптимальная ширина лестницы
Минимальная и оптимальная ширина лестницы

Обратите внимание: и в этом случае ведущая к отдельному рабочему месту лестница может иметь ширину в 70 см.

Уклон лестничных маршей на эвакуационных путях не должен быть больше, чем 1:1 (для ведущих к отдельному рабочему месту — 2:1). Рекомендованная ширина проступи ступени — 25 см (у криволинейных маршей минимально допустимы 22 см) при высоте не больше 220 мм;

 Оптимальные размеры ступени маршевой лестницы
Оптимальные размеры ступени маршевой лестницы

Открытые наружные лестницы должны изготавливаться из негорючих материалов и размещаться у огнестойких стен на расстоянии не меньше метра от ближайшего оконного проема;

 Лестница смонтирована на стене без окон
Лестница смонтирована на стене без окон

Подсказка: цена несоблюдения этого требования — невозможность эвакуации при пожаре в комнате, окно которой выходит на наружную лестницу.

Напротив эвакуационных выходов должны находиться лестничные площадки с шириной, равной как минимум ширине лестничного марша, и ограждением высотой 1,2 метра;

При перепаде высоты кровли больше метра, между разными уровнями крыши следует установить пожарную лестницу.

ГОСТ Р 53254-2009

Как мы уже выяснили, второй документ излагает требования к пожарным лестницам  на кровлю и чердаки, стационарно установленным снаружи здания.

Стандартом предусмотрено использование следующих типов лестниц:

ИзображениеТип пожарной лестницы

 Тип П1-1
Тип П1-1

П1-1 — вертикальная без ограждения (высотой не больше 6 метров).

 Тип П1-2
Тип П1-2

П1-2 — вертикальная с ограждением (высотой свыше 6 метров).

 Тип П2
Тип П2

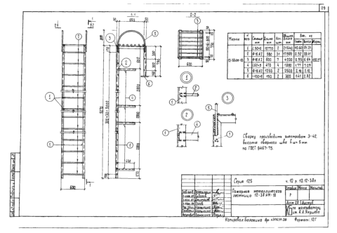
П2 — маршевая.

Любопытно: многие здания старой постройки оборудованы конструкциями типа П1-1 высотой гораздо больше 6 метров. Затрагивающие наружные пожарные лестницы требования ГОСТ изменились за последние десятилетия  в пользу большей безопасности.

 Пожарная лестница без ограждения в доме старой постройки
Пожарная лестница без ограждения в доме старой постройки

Эвакуационные лестницы должны иметь ступени шириной не менее 250 мм при ширине лестничного марша не меньше 900 мм. Минимальная высота ограждения маршей и  площадок — 1200 мм.

Вертикальные лестницы могут применяться при высоте кровли до 20 метров и устанавливаться между участками кровли с разной высотой.

 Размеры вертикальной конструкции
Размеры вертикальной конструкции

Здания выше 20 метров оборудуются лестницами типа П2 — маршевыми. Между соседними маршами и между ограждениями маршей должен быть зазор шириной как минимум в 75 мм.

 Обратите внимание на зазор между маршами и ограждениями
Обратите внимание на зазор между маршами и ограждениями

Проступь ступени и настил лестничной площадки могут быть изготовлены из:

  • Сплошного стального листа с рифлением для уменьшения скольжения (тип Ф);
 Лист с рифлением "ромб"
Лист с рифлением "ромб"
  • Из штампованных элементов (тип Ш);
  • Из стальных полос, установленных на ребро, и круглого прутка (тип Р);
  • Из установленных в одном направлении на ребро стальных полос (тип С);
  • Из просечно-вытяжного стального листа (тип В).
 Ступени из просечного листа
Ступени из просечного листа

Любопытно: в детских садах настилы площадок должны относиться к типу Ф, ступеней — к типам В или Ш.

Вот, распространяющиеся на пожарные лестницы технические требования ГОСТ:

Сварные швы и элементы конструкции маршей, площадок и ограждений должны быть зачищены от острых выступов, окалины и ржавчины;

Конструкция должна быть окрашена по грунту;

 Грунт и краска защищают сталь от ржавчины
Грунт и краска защищают сталь от ржавчины

Не допускаются разрывы металла и трещины в заделке балок;

Каждая ступенька должна выдерживать вертикальную нагрузку в 180 кгс;

Ограждение лестничного марша, площадок и кровли должно выдержать горизонтальную нагрузку в 54 кгс;

 На фото — испытания ограждения кровли на горизонтальную нагрузку
На фото — испытания ограждения кровли на горизонтальную нагрузку

Испытания конструкции (в том числе на прочность) проводятся при приемке и не реже раза в пять лет.

Важно: при испытаниях на прочность нагрузку нельзя создавать своими руками, с использованием собственного веса. Технология проведения испытаний должна исключать нахождение человека под испытуемой конструкцией.

 Испытания ступени на прочность: нагрузка создается лебедкой с дистанционным управлением
Испытания ступени на прочность: нагрузка создается лебедкой с дистанционным управлением

Заключения

Будем считать наше знакомство с нормативными требованиями состоявшимся. Узнать больше о том, какие требования к испытаниям пожарных лестниц предъявляет ГОСТ, вам поможет видео в этой статье. Успехов!

Читать далее...