Найти в Дзене
ДНЕВНИК АРХИТЕКТОРА

5 вариантов расстановки мебели в спальне типовой квартиры П-44 Т

Рассмотрим 5 вариантов грамотной расстановки мебели в типовой спальне (серия дома П-44 Т) Случается, что произвести перепланировку невозможно и причины могут быть как в высоких затратах, так и в ограничениях (например квартиру приобрели в ипотеку). Согласно Ипотечному договору имущество, во время нахождения в залоге, не может быть видоизменено. Соответственно банк не разрешит производить перепланировку и в случае произведения самовольной перепланировки банк получает право требовать как штраф, так возврат средств, так и принудительное приведение объекта в исходное состояние. Этот запрет кажется нелогичным, но для банка, который предоставляет ипотечный займ, главное условие - это сохранность предмета залога, поэтому любые изменения характеристик квартиры могут повышать риски банка. Ведь известно, что реализовать квартиру с незарегистрированной перепланировкой практически невозможно. Сегодня посмотрим, как можно расположить мебель в комнате площадью 14,8 м2 в серии П-44Т. Эта комната — ме
Оглавление

Рассмотрим 5 вариантов грамотной расстановки мебели в типовой спальне (серия дома П-44 Т)

Дома серии П-44 Т
Дома серии П-44 Т

Случается, что произвести перепланировку невозможно и причины могут быть как в высоких затратах, так и в ограничениях (например квартиру приобрели в ипотеку).

Согласно Ипотечному договору имущество, во время нахождения в залоге, не может быть видоизменено. Соответственно банк не разрешит производить перепланировку и в случае произведения самовольной перепланировки банк получает право требовать как штраф, так возврат средств, так и принудительное приведение объекта в исходное состояние.

Этот запрет кажется нелогичным, но для банка, который предоставляет ипотечный займ, главное условие - это сохранность предмета залога, поэтому любые изменения характеристик квартиры могут повышать риски банка. Ведь известно, что реализовать квартиру с незарегистрированной перепланировкой практически невозможно.

Сегодня посмотрим, как можно расположить мебель в комнате площадью 14,8 м2 в серии П-44Т. Эта комната — меньшая по площади в двухкомнатной квартире и её назначение — спальня.

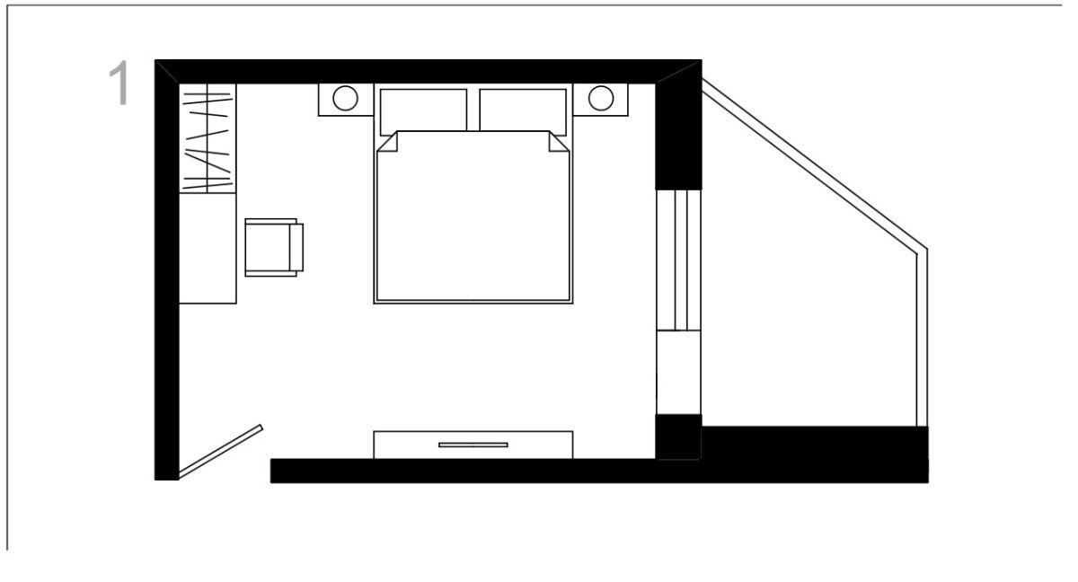
Первый вариант

-2

Большая кровать с матрасом (1 800 см х 2 000 см) расположена изголовьем у длинной стены. Расстояние до окна — 70 см, что обеспечивает удобный подход к кровати с обеих сторон.

Возле кровати — две тумбы, на которые можно поставить симпатичные светильники. Относительно центра кровати, на противоположной стене, находится консоль и мультимедиа-оборудование, телевизор. На другой стене расположен шкаф для хранения одежды и стол с удобным креслом.

Пространства много не бывает, и рабочий уголок лишним не станет.

Второй вариант

-3

Если требуется больше места для хранения одежды, то рабочим столом придётся пожертвовать: его место займёт платяной шкаф. Перед кроватью можно расположить пуф для сидения, в котором будет храниться постельное бельё, дополнительные подушки и пледы. К тому же на нём будет удобно сидеть.

Рабочее место мы организовали на лоджии, предварительно утеплив её, но оконный блок с дверью демонтировать нельзя, поскольку это уже считается перепланировкой. Получилось организовать новую комнату-кабинет, а для отопления лоджии используется электрический вариант.

Помните, что перенос радиаторов на вспомогательную часть квартиры строго запрещён.

Третий вариант

-4

Кровать расположена у другой стены, напротив кровати — вместительный шкаф со встроенным телевизором. Этот вариант интересен тем, что комната используется максимально: на лоджии организован кабинет «для него» (как во втором варианте), а напротив входной двери разместился макияжный столик с зеркалом и круглый стул «для неё».

Уверен, девушки этот вариант оценят, поскольку макияжный столик для них очень важен: там можно заниматься косметическими процедурами и хранить свои многочисленные средства для сохранения красоты.

Слева от столика, на стене, размещена полка: картины можно ставить на неё в любом порядке и часто менять композицию, при этом крепление картин к стене не требуется, что спасёт стены от сверления. В этом варианте личные зоны расположены максимально далеко для того, чтобы не мешать друг другу (пусть он сидит в обнимку с обогревателем на лоджии, а у неё в распоряжении будет вся комната).

Четвертый вариант

-5

Этот вариант подойдёт, если требуется отдельное рабочее место, а возможности и желания утеплять лоджию сейчас нет. Для этого можно разделить комнату высоким стеллажом, за которым будет расположено рабочее место.

Но помните, что стеллаж должен иметь заднюю стенку, которая нужна не только для организации приватности рабочего места, но и для сохранности вашего зрения.

Если телевизор расположить у окна, то зрение будет падать, потому что даже отражённый солнечный свет будет ярче, чем свечение самого телевизора. Можно плотно закрывать шторы, но готовы ли вы жить всё время при искусственном освещении? Почему бы не поэкспериментировать с прикроватными тумбами, разными по форме и стилю? Это ваша комната, и нравиться должна она в первую очередь вам.

Пятый вариант

-6

Если требуется много мест для хранения, то нужно использовать каждый квадратный сантиметр в комнате. Кровать с матрасом 1600 см х 2000 см интегрирована в шкафы, что позволяет увеличить их вместительность. Шкафы идут по двум стенам.

Для фасадных панелей используйте однотонные варианты со скрытыми ручками или системой открывания при нажатии — это позволит избежать ощущения нахождения в шкафу, поскольку однотонные панели светлых оттенков, близких к цвету стен, сделают шкафы незаметными.

Напротив кровати расположена большая консоль, которая является и местом для хранения, и рабочим столом. На утеплённой лоджии я организовал своего рода будуарную комнату для девушки. В комнате разместились: макияжный столик, кресло, напольное зеркало и полки для хранения. Круглый пуф у напольного зеркала отлично подойдёт для хранения сумок. В самой комнате тоже есть круглый пуф, только он более вместительный.

автор: Руслан Кирничанский

Я очень хочу, чтобы мои советы были полезны вам, а для того, чтобы быстрее всех получать новые статьи можно подписаться на мой канал "Дневник архитектора".

Ниже ссылки на группы в социальных сетях:

Вконтакте

Facebook

Youtube

А для того, чтобы узнать возможности законной перепланировки в типовой серии П-44 посмотрите эту статью.