Добавить в корзинуПозвонить
Найти в Дзене
4living

3-комнатная квартира в светлых тонах

Этот проект – прекрасная демонстрация лаконичного современного стиля. Светлая отделка служит отличным фоном для мебельных предметов в современном исполнении.  Сведения о квартире: 3-комнатная квартира площадью 120 кв. м. Владельцы квартиры: молодая семья из трех человек. Пожелания клиентов: максимально освободить жилое пространство, внести в интерьер легкость и прозрачность.  Дизайн проект 3-комнатной квартиры. В данном дизайн проекте 3-комнатной квартиры используется идея плавного перехода одного пространства в другое. Архитекторы «SNOU project» предложили избавиться от лишних перегородок и дверей, оставив изолированными только приватные комнаты — спальни и ванную. Все остальные помещения объединили в единое пространство, где холл плавно перетекает в гостиную, гостиная в столовую и кухню, а кухня в свою очередь — в лоджию с барной зоной. Тема плавного перехода решается и за счет пола: во всей квартире настелили пробковое покрытие. Стены в общественной зоне отделаны декоративной ш

Этот проект – прекрасная демонстрация лаконичного современного стиля. Светлая отделка служит отличным фоном для мебельных предметов в современном исполнении. 

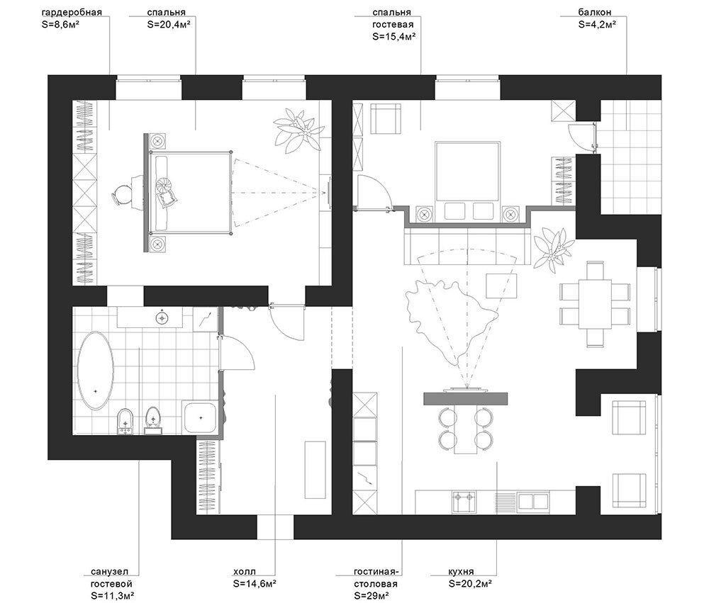
Сведения о квартире: 3-комнатная квартира площадью 120 кв. м.

Владельцы квартиры: молодая семья из трех человек.

Пожелания клиентов: максимально освободить жилое пространство, внести в интерьер легкость и прозрачность. 

-2

Дизайн проект 3-комнатной квартиры.

В данном дизайн проекте 3-комнатной квартиры используется идея плавного перехода одного пространства в другое. Архитекторы «SNOU project» предложили избавиться от лишних перегородок и дверей, оставив изолированными только приватные комнаты — спальни и ванную. Все остальные помещения объединили в единое пространство, где холл плавно перетекает в гостиную, гостиная в столовую и кухню, а кухня в свою очередь — в лоджию с барной зоной.

Тема плавного перехода решается и за счет пола: во всей квартире настелили пробковое покрытие. Стены в общественной зоне отделаны декоративной штукатуркой. Близкие по тону и фактуре материалы создают ощущение целостности пространства, и только ванная комната решена на контрасте к основному интерьеру.

Некая простота и прямолинейность смягчается за счет внедрения в интерьер предметов мебели и источников освещения бионических форм.  

-3

Благодаря светлой отделке и встроенным шкафам с зеркальными дверцами небольшая прихожая выглядит просторной и воздушной.

-4

Многоуровневая подсветка позволяет выстраивать разные световые сценарии.

-5

Для мягкого зонирования кухни и гостиной использована невысокая функциональная перегородка с закрепленной на ней ТВ-плазмой.

-6

Со стороны кухни в перегородку вмонтирована барная стойка для быстрых перекусов.

-7

Круглые зеркала визуально расширяют пространство спальни.

-8

Оформление спален в этой квартире имеют цветовую перекличку. В этой спальне основной цвет — глянцево белый, редкие цветовые акценты — насыщенно шоколадного оттенка. 

-9

Во второй спальне два цвета находятся примерно в одинаковой пропорции — во всяком случае, пока задернуты шторы.

-10

На фоне лаконичного интерьера спальни особо выделяется оригинальная кровать с широкими боковинами, которые можно использовать как прикроватные столики. 

-11

Ванная комната выбивается из общего интерьера квартиры — это настоящая релакс-зона!

-12

Стекло, бирюзовая плитка и космические формы сантехники превращают это помещение в гимн современного дизайна и архитектуры.