Найти в Дзене
Звезды Инт

Дом Ксении Бородиной и Курбана Омарова за 18,5 миллионов

Ведущая Дома-2 Ксения Бородина вышла второй раз замуж за бизнесмена Курбана Омарова. Ранее семья проживала в съемном жилище. У Ксении дочка от первого брака Маруся, дочка от Курбана Теона. У Омарова сын, который часто бывает с отцом. Поэтому Ксения и Курбан задумались о приобретении постоянного жилища. Они купили коттедж за 18,5 миллионов. Она находится в 20 минутах от МКАД в поселке "Павловские озера". Это не заброшенное место. Здесь живут обеспеченные люди. Неподалеку есть элитный фитнес-клуб, СПА-центр, школа верховой езды. Дом состоит из двух этажей. Это план первого этажа дома. На втором этаже в коттедже Бородиной находятся жилые комнаты, гардеробная, санузел. В доме вовсю идет ремонт. Но многие комнаты уже закончены. Так, сделана кухня в светлых оттенках. Есть вся бытовая техника. И хотя Ксения Бородина не любит стоять у плиты. по ее словам, на такой кухне так и тянет приготовить что-нибудь вкусненькое. Это лакированная лестница на второй этаж. Ее выложила в Инстаграм сама Ксени

Ведущая Дома-2 Ксения Бородина вышла второй раз замуж за бизнесмена Курбана Омарова. Ранее семья проживала в съемном жилище.

У Ксении дочка от первого брака Маруся, дочка от Курбана Теона. У Омарова сын, который часто бывает с отцом. Поэтому Ксения и Курбан задумались о приобретении постоянного жилища.

Они купили коттедж за 18,5 миллионов. Она находится в 20 минутах от МКАД в поселке "Павловские озера".

Это не заброшенное место. Здесь живут обеспеченные люди. Неподалеку есть элитный фитнес-клуб, СПА-центр, школа верховой езды.

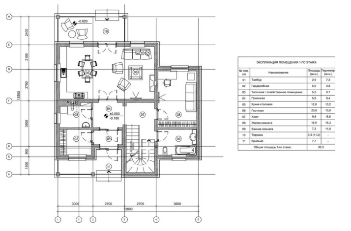
Дом состоит из двух этажей. Это план первого этажа дома. На втором этаже в коттедже Бородиной находятся жилые комнаты, гардеробная, санузел.

-2

В доме вовсю идет ремонт. Но многие комнаты уже закончены. Так, сделана кухня в светлых оттенках.

Есть вся бытовая техника. И хотя Ксения Бородина не любит стоять у плиты. по ее словам, на такой кухне так и тянет приготовить что-нибудь вкусненькое.

-3

Это лакированная лестница на второй этаж. Ее выложила в Инстаграм сама Ксения Бородина.

Если взглянуть справа, то можно заметить, что ремонт все еще продолжается.

-4

Семья уже вовсю обживает дом. И хотя они периодами проживают в Москве в съемной квартире, уже готовятся полностью к переезду.

-5

Пожалуйста, поставьте лайк и подпишитесь на канал. Это нужно для развития и дальнейшей публикации других статей. Будем благодарны!