Добавить в корзинуПозвонить
Найти в Дзене
Дом мечты / DreamerHouse

Строительство каркасника по финской технолочии. Часть 2.

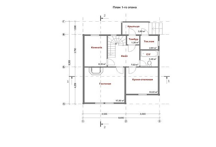
РАСЧЕТЫ ДЛЯ СТРОИТЕЛЬСТВА Перед тем как построить финский дом, необходимо создать его проект. При этом нужно учитывать пожелания всех будущих жильцов нового дома. Например, обустройство помещений для престарелых членов семьи, наличие маленьких детей, возможное прибавление семейства и все необходимые для этого требования. Для работающих дома, нужен будет кабинет или творческая мастерская. Короче говоря,  нужно не только определить количество комнат, но и их функциональность и размещение по сторонам света. Кроме перечисленного, каркасные дома по финской технологии должны планироваться с учетом климатического региона расположения постройки, рельеф местности, тип почвы и её состав. Эти факторы могут в значительной степени повлиять на выбор этажности, типа фундамента и др. Учитывая особенности местности можно начинать подбор материалов для строительства: вид дерева для возведения стен, вид утеплителя и кровельный материал, тип фундамента. Хороший и грамотный расчет убережет вас от лишни
Оглавление

РАСЧЕТЫ ДЛЯ СТРОИТЕЛЬСТВА

Перед тем как построить финский дом, необходимо создать его проект. При этом нужно учитывать пожелания всех будущих жильцов нового дома. Например, обустройство помещений для престарелых членов семьи, наличие маленьких детей, возможное прибавление семейства и все необходимые для этого требования. Для работающих дома, нужен будет кабинет или творческая мастерская. Короче говоря,  нужно не только определить количество комнат, но и их функциональность и размещение по сторонам света. Кроме перечисленного, каркасные дома по финской технологии должны планироваться с учетом климатического региона расположения постройки, рельеф местности, тип почвы и её состав. Эти факторы могут в значительной степени повлиять на выбор этажности, типа фундамента и др.

-2

Учитывая особенности местности можно начинать подбор материалов для строительства: вид дерева для возведения стен, вид утеплителя и кровельный материал, тип фундамента.

Хороший и грамотный расчет убережет вас от лишних трат времени, нервов и финансов. Кроме этого правильный расчет и следование ему позволит избежать нарушений технологии и других ошибок. Каркасный дом по финской технологии подразумевает первоначальный расчет подведения коммуникаций и разводку их по помещениям. Вы, при наличии необходимых знаний, можете составить рациональный проект самостоятельно, учитывая ваши индивидуальные потребности.

ВЫБОР ФУНДАМЕНТА ПОД ФИНСКИЙ ДОМ

-3

Каркасные дома относятся к относительно легким конструкциям, для строительства которых подходят фундаменты средней и малой мощности. Однако, если вы решили возводить жилье более чем в один этаж, то потребуется достаточно надежное основание с хорошим запасом прочности, способное выдержать многоэтажное строение. От того насколько хорошим будет фундамент здания, порой зависит срок эксплуатации всего дома в принципе, его прочность и внешний вид. Но самое главное – это безопасность для проживающих в доме людей.

Одним из типов основания, используемого при строительстве жилья по финской технологии, является буронабивной фундамент. Он представляет собой столбики из асбоцемента в сочетании с мелкозаглубленным ленточным фундаментом или с наполнением бетоном. Наиболее часто в настоящее время используется ленточный или свайный тип фундамента.

Источник: kakpostroitdomic.ru