Найти в Дзене
Просто Ремонт

«Драный» угол

Сегодня мы поговорим об очень актуальной проблеме — обдираемость внешнего угла. Сколько раз мы слышали вопросы: «Чем прикрыть стык обоев на внешнем угле? Помогите!» или «Что делать с углами? Дети, мужья, собаки и кошки так и норовят обтереть их попами!».
Что делать… Как всегда — подумать о проблеме заранее.
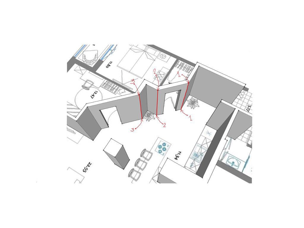
Традиционно начинаем с планировки. Стараемся избегать внешних углов, создавая новое пространство. Если избежать совсем не получается, стараемся увести от них постоянный транзит. 😉 Так, чтобы он был, но обтираться об него не хотелось. Смотрите пример. Углы 1, 2 и 3 — необтираемые, за счет того, что они в одну линию, да и фикус свою роль сыграл. 😉 Обтираемые внешние углы стараемся «убрать». Например, это можно сделать с помощью мебели. Вот та же планировка, угол 4 — обтираемый. Но мы можем убрать простенок, внешний угол тогда станет мебельным, а на мебель у нас принято натыкаться, а не обтирать. 😆 Смысл тот же, но обои не пострадают. 😆 Вот, угол 5 так убран комодиком. 😀 А если

Сегодня мы поговорим об очень актуальной проблеме — обдираемость внешнего угла. Сколько раз мы слышали вопросы: «Чем прикрыть стык обоев на внешнем угле? Помогите!» или «Что делать с углами? Дети, мужья, собаки и кошки так и норовят обтереть их попами!».

Что делать… Как всегда — подумать о проблеме заранее.

Традиционно начинаем с планировки. Стараемся избегать внешних углов, создавая новое пространство. Если избежать совсем не получается, стараемся увести от них постоянный транзит. 😉 Так, чтобы он был, но обтираться об него не хотелось. Смотрите пример. Углы 1, 2 и 3 — необтираемые, за счет того, что они в одну линию, да и фикус свою роль сыграл. 😉

-2

Обтираемые внешние углы стараемся «убрать». Например, это можно сделать с помощью мебели. Вот та же планировка, угол 4 — обтираемый. Но мы можем убрать простенок, внешний угол тогда станет мебельным, а на мебель у нас принято натыкаться, а не обтирать. 😆 Смысл тот же, но обои не пострадают. 😆 Вот, угол 5 так убран комодиком. 😀

-3
-4

А если все же никак не убрать. Дизайнерская такая задумка или же комодик вот вообще там не нужен. Что тогда?

Э-э-э-э… Тогда как-то эту задумку задумайте без обоев. 😉 Просто же! Придумываете планировку, расстановку мебели, цветовые решения — планируйте все в комплексе. Пусть у вас срабатывает WARNING! в случае внешнего угла и обоев.

Не сработал? Ну не видите вы на этой стене краску, дерево, ламинат, плитку и что угодно вандалоустойчивее обоев? Э-э-эх…. Ну тогда берите обои поплотнее и не стыкуйте полосы, загибайте полосу на угол. Ключевое тут — идеальный угол и аккуратность, тогда это выглядит нормально. Ну точно нормальней, чем махрящиеся обои. 🙈

Опять не то? Хочется стыка разных? Дизайн такой? Сорри, но без уголка тогда не обойтись, вписывайте его в дизайн, что уж тут поделать. Не пластиковый только уж, а деревянный, полиуретановый, каменный. Даже металлический  — элемент, скажем так, специфический, и далеко не во все стили вписывающийся, но это тоже вариант.

Ну и есть еще один, волнующий многих, тип внешнего угла. Угол с оконным откосом. Лично нам не очень понятно почему он должен обтираться, если его никто не трет. Если обои приклеить так плохо, что они отстают в местах стыков, то поверьте, отставать тогда они будут на всех стыках и проблему нужно решать не прикрытием внешнего угла. Но все же не ответить на ваш запрос мы не можем. 😀

-5

Тем более, что этот же прием можно использовать при оформлении внешних углов в проемах и нежелании ставить обрамление дверного проема (в народе «арку») туда. Наличник вообще и молдинг в частности — отличный прием как в классике, так и в скандинавии, так и в америкосии.

-6

Ставьте лайк, подписывайтесь на наш канал и полезную рассылку — там польза, скидки, вдохновение!

Ваш Просто Ремонт💓